QQ登录    

08我家网

2023兔年大吉

户型求指点

[复制链接]

171

帖子

0

原创值

358

金币

大三_装修里手

Rank: 3Rank: 3

积分
122
发表于 2010-09-16 10:42:30 | 显示全部楼层 |阅读模式
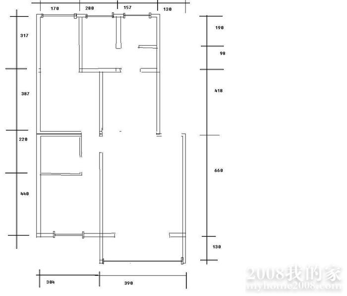
先谢过各位大大
自己准备把主卧的厕所准备打掉 做个大点的衣柜
有几个疑惑
1房间的主卧和客厅偏长 布局上怎嘛处理更合理呢
2餐厅偏窄 是不是加面镜子 加宽
3二个卧室对开门 是不是风水不好 墙都是能打的。能不能把门换个位置 更好的处理
4客房 及书房 都偏小 偏窄 希望能实现的功能再多点 能不能加入些和室
户型图.JPG

7878

帖子

0

原创值

3159

金币

荣誉版主

积分
7785

社区居民社区明星终身成就奖宣传大使奖优秀斑竹奖原创先锋奖忠实会员最爱沙发社区劳模原创达人

发表于 2010-09-16 11:31:41 | 显示全部楼层
欢迎参加周六08装修教室的活动
本期活动正好讲解设计
回复

使用道具 举报

171

帖子

0

原创值

358

金币

大三_装修里手

Rank: 3Rank: 3

积分
122
 楼主| 发表于 2010-09-16 11:37:04 | 显示全部楼层
周末 计算机等级考试
回复

使用道具 举报

118

帖子

0

原创值

1

金币

大三_装修里手

Rank: 3Rank: 3

积分
112
发表于 2010-09-16 14:35:26 | 显示全部楼层

回 1楼(nick) 的帖子

在哪里参加活动哦?
回复

使用道具 举报

7878

帖子

0

原创值

3159

金币

荣誉版主

积分
7785

社区居民社区明星终身成就奖宣传大使奖优秀斑竹奖原创先锋奖忠实会员最爱沙发社区劳模原创达人

发表于 2010-09-16 15:23:25 | 显示全部楼层

Re:回 1楼(nick) 的帖子

引用第3楼笑笑久于2010-09-16 14:35发表的 回 1楼(nick) 的帖子 :
在哪里参加活动哦?

请看帖子啊
08装修教室第三讲
设计·沟通
回复

使用道具 举报

171

帖子

0

原创值

358

金币

大三_装修里手

Rank: 3Rank: 3

积分
122
 楼主| 发表于 2010-09-16 20:40:46 | 显示全部楼层
求指点             
回复

使用道具 举报

您需要登录后才可以回帖 登录 | 立即注册

本版积分规则