QQ登录    

08我家网

2023兔年大吉

一个人的装修之路-重生之家

[复制链接]

186

帖子

0

原创值

442

金币

大三_装修里手

Rank: 3Rank: 3

积分
94
发表于 2015-07-15 00:51:12 | 显示全部楼层
加油,你不是一个人在战斗!
回复

使用道具 举报

745

帖子

0

原创值

877

金币

大四_装修达人

Rank: 4

积分
394

社区居民

发表于 2015-07-15 10:24:59 | 显示全部楼层
这应该算是三房八~ 加油~~~
回复

使用道具 举报

139

帖子

0

原创值

345

金币

大三_装修里手

Rank: 3Rank: 3

积分
74
 楼主| 发表于 2015-07-17 08:56:12 | 显示全部楼层
  昨夜参观了同户型的风格,在默默大师的支持下,坚决改图纸。两间房做成一个房。改。
回复

使用道具 举报

139

帖子

0

原创值

345

金币

大三_装修里手

Rank: 3Rank: 3

积分
74
 楼主| 发表于 2015-07-17 14:49:23 | 显示全部楼层
今天是2015年7月17日,中午十一点抵达现场,师傅已经将所要拆除的墙体敲完,今明两天就能垃圾清运出现场了。 照片 417.jpg
照片 418.jpg
照片 420.jpg
回复 收藏

使用道具 举报

2899

帖子

0

原创值

4223

金币

装修大学_博士生

Rank: 6Rank: 6

积分
1929

社区居民

发表于 2015-07-21 07:34:40 | 显示全部楼层
多看同户型已经装修了的,看看他们对这个户型的安排和布局,听听他们的吐槽,你的装修可以更加合理.实用加油,
回复

使用道具 举报

139

帖子

0

原创值

345

金币

大三_装修里手

Rank: 3Rank: 3

积分
74
 楼主| 发表于 2015-07-21 11:04:05 | 显示全部楼层
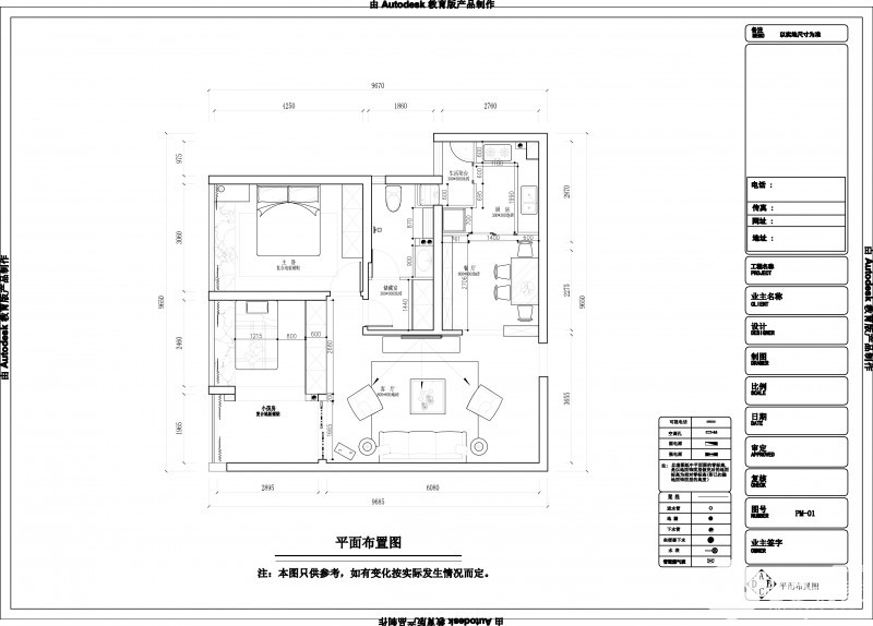
   在默默和妈妈的大力支持下,设计图纸重新修改了一下,最终稿定下来了,这个星期把墙砌了就开始走水电了咯,开心,正好赶上周末。电线已经朋友友情赠送,剩下的靠我自己了,加油,加油!女汉子附身!周一就离体
   平面布置图-最终.jpg

回复 收藏

使用道具 举报

480

帖子

0

原创值

1569

金币

大四_装修达人

Rank: 4

积分
241
发表于 2015-07-21 15:56:41 | 显示全部楼层
加油,幸福总会降临每个有心人身上的。
回复

使用道具 举报

126

帖子

0

原创值

172

金币

大三_装修里手

Rank: 3Rank: 3

积分
63
发表于 2015-07-22 11:26:24 | 显示全部楼层
佩佩加油噢~
回复

使用道具 举报

4871

帖子

0

原创值

518

金币

管理员

Rank: 20Rank: 20Rank: 20Rank: 20Rank: 20

积分
2622
发表于 2015-07-22 14:21:13 | 显示全部楼层
这是把能敲的墙都敲掉了啊!!!!好期待大改的杰作!
回复

使用道具 举报

139

帖子

0

原创值

345

金币

大三_装修里手

Rank: 3Rank: 3

积分
74
 楼主| 发表于 2015-07-27 16:07:10 | 显示全部楼层
本帖最后由 小佩818 于 2015-7-27 16:08 编辑

2015年7月24,清晨还在睡梦中,姜总就说水电师傅要定水电位置,原计划直接去公司,结果7点40分准时到瑞都,给师傅定水电位置。下班提前两个小时再次到了朋友的水电材料店,虽然地方不是那么豪华,东西还是货真价实,好吉利的数字800块。朋友友情价的金宇宙电线虽不及金杯那种大品牌,还是感谢不辞辛苦的袁总两次专车送到家。价格太友情,就不方便写价格了哦。
  2015年7月25日水电师傅正式开工,速度好神。我跟着我的邻居一起去了小邓去了汇亚,定客厅瓷砖款式,下周三再确定数量。蜜蜂元素的砖让我有点小纠结,颜色偏深,还是再去一次吧。下午3点包管260搞完。
  2015年7月26日清晨,砂子在我好邻居的帮助下,顺利抵达瑞都豪庭,女汉子附身一天的苦力开始了,多亏了我的12岁小侄儿和身体还不错的爸爸。砂子也上楼了70%。三趟材料补货共计295块。
   IMG_20150726_085742.jpg
IMG_20150725_171614.jpg

   晚上9点,老爸告诉我,水电搞完了,水压也试过了。泥工可以进场了。超乎想象的神速。准备买防水涂料了哦。
回复 收藏

使用道具 举报

您需要登录后才可以回帖 登录 | 立即注册

本版积分规则