QQ登录    

08我家网

2023兔年大吉

X7交房了

[复制链接]
  • 所在城市:长沙
  • 所在小区:悦湖山
  •  
  • 装修类型:新房装修
  • 装修户型:三房
  •  
  • 装修方式:
  • 装修风格:其它
  •  
  • 装修预算:10万—20万
  • 开工时间:2015-09-01
  • 前期设计
  • 主体拆装
  • 水电
  • 泥工
  • 木工
  • 油漆
  • 成品安装
  • 软装配饰
  • 毕业
已装修历时3721

190

帖子

0

原创值

430

金币

大三_装修里手

Rank: 3Rank: 3

积分
107
发表于 2015-08-15 16:18:59 | 显示全部楼层 |阅读模式

X7交房了

46.pic_hd.jpg


小区正门大厅外

1111交房了交房了,是好事!
1111嘿嘿,本人比较懒,在定夺选择这个楼盘前就只走过北辰三角洲和公司附近的一个然后则是悦湖山。悦湖山首先是戈先买了,考虑了几天我也下手了,过程省略。

2.jpg

允许我耍点小心机 嘿嘿 我和钥匙


1111我为什么选择悦湖山总结几点:
1.由于本人是省公积金,首选能用省公积金的盘(还能首付2成)
2.离我公司近,坐公交10分钟左右。
3.小区人车分流
4.小区环境不错,后面上图。
4.赠送面积超大,产权面积89,实际房内面积加公摊120。
5.小区底部抬高三层楼,进入必须从大厅两边电梯,以防小区外人乱进。
6.万家丽北路与福元路交界有地铁5号线、还有城际快线公交。
这几点就促使我省略了它的唯一缺点,周边配套设施不够齐全,缺少生活超市,还好有些水果蔬菜零食便利店,不然得跑到公司附近的大超市才行......

悦湖山外景
3.jpg

进入大厅前坪

4.jpg
小区外围的福元路、进去小区大厅刷门禁的电梯

5.jpg
福元路国防科大圈的新校区待开发中

6.jpg

大厅电梯上来进入小区的第一个景

7.jpg

小区四周是楼房中间是绿化带,茂盛的树和一个大水池

8.jpg

小区幽径

9.jpg

小区幽径

10.jpg

小区海沙沙滩和标牌

11.jpg

本楼其中一间将要变成loft的正面

12.jpg

楼底下又是抬高了2层楼、报箱快递自取箱都配备

13.jpg

再来两张俯视图

1111感觉还不错,今天先写到这,还在公司加班偷偷写的帖子,得工作了,明天再分享我的loft设计图纸。


190

帖子

0

原创值

430

金币

大三_装修里手

Rank: 3Rank: 3

积分
107
 楼主| 发表于 2015-08-15 16:22:31 | 显示全部楼层

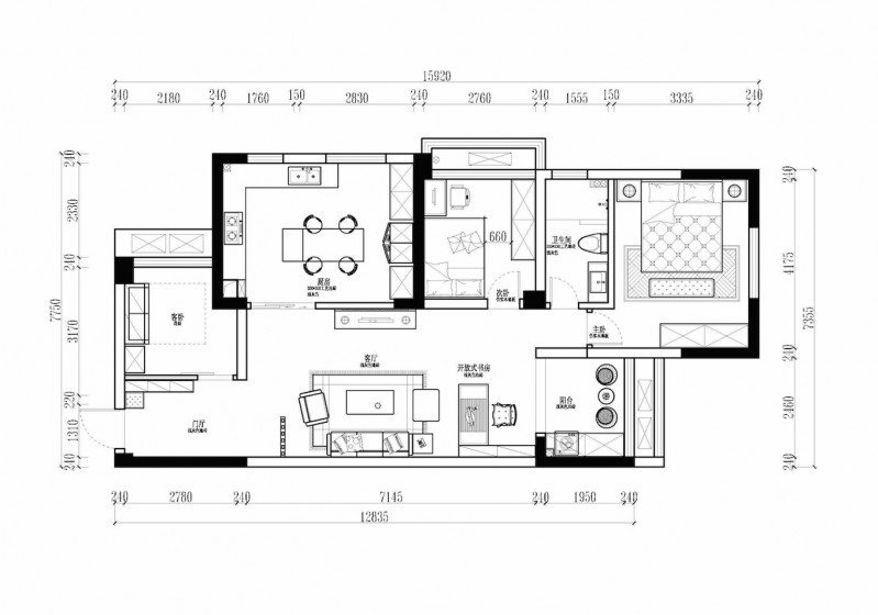
我的loft设计图纸

本帖最后由 ---X7--- 于 2015-8-15 16:38 编辑

屏幕快照-2015-08-15-下午4.26.08.jpg

1111房子是89平、最后实际有100平,经过朋友左介绍右介绍,我还是跟着戈走进了YZ,交了定金,开始图纸的设计路程,由于一直在加班中,开工一直在延后。

1111粉红色区域是赠送面积,不是蛮多,而是超级多,哈哈!我开始德想法就是房间有点多,又不大,干脆打掉一个不要了,不要四房就是这么大气。觉得厨房太小,干脆把厨房变大吧我也还喜欢做饭,就这么定了。请看图纸!
02.jpg

有来事了,晚上更....唉(加班都不能好好些帖子了!惆怅)



回复

使用道具 举报

190

帖子

0

原创值

430

金币

大三_装修里手

Rank: 3Rank: 3

积分
107
 楼主| 发表于 2015-08-15 16:24:37 | 显示全部楼层
板凳也要   晚点再来更
回复

使用道具 举报

1万

帖子

0

原创值

9607

金币

论坛元老

掰子姐

Rank: 15Rank: 15Rank: 15Rank: 15Rank: 15

积分
11275

吃货社区居民社区明星忠实会员最爱沙发新人进步奖幽默大师奖贴图大师奖原创先锋奖金点子奖特殊贡献奖宣传大使奖优秀斑竹奖终身成就奖灌水天才奖社区劳模原创达人

发表于 2015-08-15 22:20:42 | 显示全部楼层
弟弟不要新开帖了,放在一个日记帖里让我们看得更方便嘛~~
回复 回复(1)条

使用道具 举报

51

帖子

0

原创值

177

金币

大二_装修学长

Rank: 2

积分
26
发表于 2015-08-16 09:56:07 | 显示全部楼层
环境真心好~
回复

使用道具 举报

190

帖子

0

原创值

430

金币

大三_装修里手

Rank: 3Rank: 3

积分
107
 楼主| 发表于 2015-08-16 13:44:27 | 显示全部楼层
叽歪 发表于 2015-8-15 22:20
弟弟不要新开帖了,放在一个日记帖里让我们看得更方便嘛~~

这样是吧   我以为要单独写    哈哈    等哈我编辑下放一起去
回复

使用道具 举报

787

帖子

0

原创值

1836

金币

大四_装修达人

Rank: 4

积分
443

社区居民忠实会员

发表于 2015-08-21 17:50:03 | 显示全部楼层
RE: X7交房了 [修改]
回复

使用道具 举报

1万

帖子

10

原创值

1万

金币

装修大学_教授

Rank: 7Rank: 7Rank: 7

积分
5360

社区居民最爱沙发社区明星

发表于 2015-10-08 08:25:02 | 显示全部楼层
弟弟终于更新了,开工大吉啊
回复

使用道具 举报

237

帖子

0

原创值

308

金币

大三_装修里手

Rank: 3Rank: 3

积分
120

社区居民

发表于 2016-01-14 16:57:21 | 显示全部楼层
这么大赠送,,,
回复

使用道具 举报

96

帖子

0

原创值

200

金币

大二_装修学长

Rank: 2

积分
48
发表于 2016-10-13 14:30:46 | 显示全部楼层
回复看图纸
回复

使用道具 举报

您需要登录后才可以回帖 登录 | 立即注册

本版积分规则