QQ登录    

08我家网

2023兔年大吉

【2015日记大赛二等奖】平面设计师献给自己的不定义空间

  [复制链接]

2716

帖子

0

原创值

9337

金币

装修大学_博士生

Rank: 6Rank: 6

积分
1601

社区居民宣传大使奖社区劳模贴图大师奖新人进步奖社区明星原创先锋奖

 楼主| 发表于 2016-03-15 13:35:40 | 显示全部楼层

【安装季】楼上楼下硬装小结

本帖最后由 戈小孽 于 2016-3-16 17:12 编辑


楼上楼下硬装小结

       写在前面:             

       十一开工至今,已经过去5个多月了,在是一个慢性子纠结的人,在项目经理的催促下,很多东西不到最后一刻不得下定。图片中能看到的硬装品牌:福乐阁墙漆、亚材门窗、***木门、王力防盗门、新润成瓷砖、荣高陶瓷、非同石材、万象净醛板材、美巢400、百得防水、华润木器漆、金色罗曼五金、西蒙I7系列开关、伯爵冷凝炉等等隐藏的品牌。

        这大半年终于硬装收尾了,是一个纠结、闹心、奔波的一个过程。

        感谢远卓涂队耐心的施工、水电师傅小易、泥工师傅Pao嗲、木工李师傅、墙漆肖师傅&彭师傅、设计师刘武的设计规划、远卓客服橙子的不厌其烦的接听我电话,各个环节接洽到位顺利硬装完工。

        感谢08团,让我省了很多自己跑市场、策价、担心等一系列问题的时间。

        终于,我还是跨上了黑白灰的。木色与黑色的碰撞,简与繁的对比,高与低的落差空间、点线面的交叉构成,慢慢的不定义混搭风基本落成。

        O MY GOD。接下来是更加纠结的软装。头大了~~~~~


9.jpg


22.jpg


1.jpg


3.jpg


4.jpg


5.jpg


7.jpg


8.jpg


17.jpg


19.jpg


20.jpg


21.jpg


27.jpg


24.jpg


30.jpg

2.jpg


29.jpg


6.jpg


10.jpg


11.jpg


12.jpg


13.jpg


14.jpg


15.jpg


16.jpg


18.jpg


25.jpg


23.jpg


26.jpg


28.jpg


31.jpg


32.jpg


33.jpg


35.jpg


34.jpg











回复 收藏

使用道具 举报

656

帖子

0

原创值

952

金币

大四_装修达人

Rank: 4

积分
329
发表于 2016-03-15 13:52:37 | 显示全部楼层
哇   好赞! 怎么两个客厅呀
回复 回复(1)条

使用道具 举报

2716

帖子

0

原创值

9337

金币

装修大学_博士生

Rank: 6Rank: 6

积分
1601

社区居民宣传大使奖社区劳模贴图大师奖新人进步奖社区明星原创先锋奖

 楼主| 发表于 2016-03-15 13:53:54 | 显示全部楼层
namio_lucky 发表于 2016-3-15 13:52
哇   好赞! 怎么两个客厅呀

是我和弟弟家 户型一样的楼上楼下
回复

使用道具 举报

5201

帖子

0

原创值

6560

金币

管理员

Rank: 20Rank: 20Rank: 20Rank: 20Rank: 20

积分
4270

社区居民新人进步奖原创达人

发表于 2016-03-15 13:59:17 | 显示全部楼层
很有质感,,期待进家具哦。。就是灰尘多了点。。。
那啥,弟弟的日记你负责收尾吗?
回复 回复(1)条

使用道具 举报

2716

帖子

0

原创值

9337

金币

装修大学_博士生

Rank: 6Rank: 6

积分
1601

社区居民宣传大使奖社区劳模贴图大师奖新人进步奖社区明星原创先锋奖

 楼主| 发表于 2016-03-15 14:05:24 | 显示全部楼层
蔚蓝 发表于 2016-3-15 13:59
很有质感,,期待进家具哦。。就是灰尘多了点。。。
那啥,弟弟的日记你负责收尾吗?

弟弟的还是算了吧 那是回忆录~~~~莫追他的了~~~
回复

使用道具 举报

745

帖子

0

原创值

2047

金币

大四_装修达人

Rank: 4

积分
373
发表于 2016-03-15 14:45:31 | 显示全部楼层
教科书一样,按章索取,谢谢分享!
回复 回复(1)条

使用道具 举报

2716

帖子

0

原创值

9337

金币

装修大学_博士生

Rank: 6Rank: 6

积分
1601

社区居民宣传大使奖社区劳模贴图大师奖新人进步奖社区明星原创先锋奖

 楼主| 发表于 2016-03-15 14:56:28 | 显示全部楼层
wugh02006 发表于 2016-3-15 14:45
教科书一样,按章索取,谢谢分享!

多谢支持~~~嘻嘻~
回复

使用道具 举报

153

帖子

0

原创值

436

金币

大三_装修里手

Rank: 3Rank: 3

积分
79
发表于 2016-03-15 15:29:22 | 显示全部楼层
现场去看了,做的挺好。期待后期软装
回复 回复(1)条

使用道具 举报

2716

帖子

0

原创值

9337

金币

装修大学_博士生

Rank: 6Rank: 6

积分
1601

社区居民宣传大使奖社区劳模贴图大师奖新人进步奖社区明星原创先锋奖

 楼主| 发表于 2016-03-15 15:33:34 | 显示全部楼层
阿卡的翅膀 发表于 2016-3-15 15:29
现场去看了,做的挺好。期待后期软装

嘻嘻~~软装头疼啊~~
回复

使用道具 举报

2716

帖子

0

原创值

9337

金币

装修大学_博士生

Rank: 6Rank: 6

积分
1601

社区居民宣传大使奖社区劳模贴图大师奖新人进步奖社区明星原创先锋奖

 楼主| 发表于 2016-03-15 20:13:20 | 显示全部楼层

【安装季】我的大空间小收纳

本帖最后由 戈小孽 于 2016-3-16 13:39 编辑

我的大空间小收纳
       写在前面:
       收纳空间,其实对于我的个性来说是要在设计前就需要去纠结的,可是经历是在有限交给了设计师处理大体结构。对于结构我基本没有什么调整,只是阿姨来工地看的时候提醒了我一句:“你的柜子少了,以后会要很多储物柜的,柜子最好做到顶。”想起来也是,家居我可能不会买带储物功能的床什么的,确实是需要增加柜子的面积,于是现场做了很大的调整,全体柜子加高到顶。可是我的推拉门就变得无比异形高。呵呵~~算了吧就这样了~~~异形就异形~~

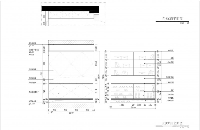
       入户门厅鞋柜收纳:
悦湖山5栋2304 布局1 (1)-12.jpg


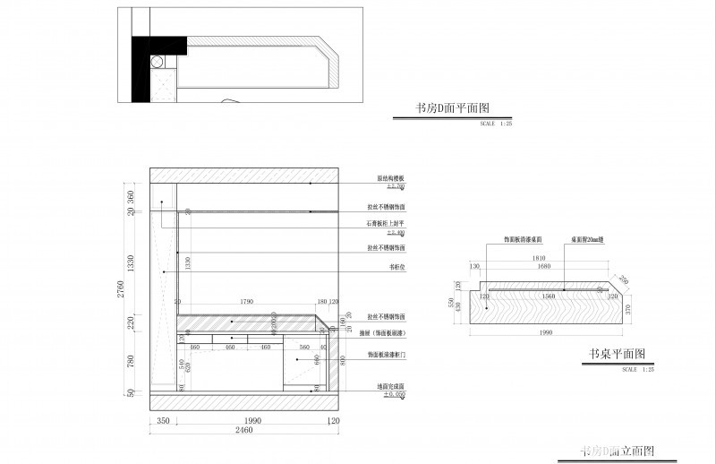
       工作书桌:
       哎,后来想起来不应该这么做,和我的风格太不搭了,应该取消抽屉直接台面即可和机箱柜。电脑主机我打算放在柜子里,够深,通风散热也处理好了。能减少一些灰尘对主机的影响,各种开孔,以后线怎么走都要提前想好。
悦湖山5栋2304 布局1 (1)-15.jpg



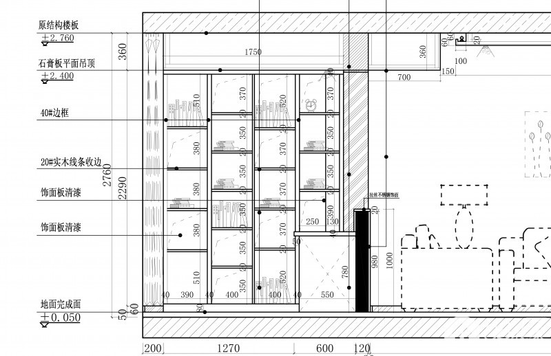
       异形书柜变对称书柜:
      个人喜欢异形格书柜,有不对称感,给人活跃的感觉。但是被我的暖气片给破坏了,只能装上半截,不能做全落地书柜。

悦湖山5栋2304 布局1 (1)-14.jpg


       电视机柜:
      木工原创小创意,之前就写过我的小创意。很喜欢这个,有一种破坏美,太完整的东西反而不美观,需要一些异形破坏格局会更佳。两抽,一柜格局。





       衣柜格局:
       衣柜格局是设计师设定的,我没有太多参与,只是最后我把他全部加高,只为了储物更多。


       床头靠背:
      储物可能不多,但是在放书的时候特地放了一个挡脚,反正震动过大掉东西下来,哈哈哈~~~


       橱柜的空间收纳费了点心,图纸还在设计中~

回复 收藏 回复(1)条

使用道具 举报

您需要登录后才可以回帖 登录 | 立即注册

本版积分规则