QQ登录    

08我家网

2023兔年大吉

[装修交流]【2015优秀毕业照】曦崽家暖暖的现代美式

  [复制链接]

278

帖子

0

原创值

359

金币

大三_装修里手

Rank: 3Rank: 3

积分
174

社区居民

发表于 2015-12-03 12:07:52 | 显示全部楼层
看看价格,现代美式很多同学都喜欢啊。
回复

使用道具 举报

182

帖子

0

原创值

160

金币

大三_装修里手

Rank: 3Rank: 3

积分
91
发表于 2015-12-03 12:51:11 | 显示全部楼层
好温馨的家,木工做得太好啦,求师傅号码,
回复

使用道具 举报

394

帖子

0

原创值

1087

金币

大四_装修达人

Rank: 4

积分
202
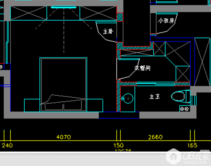
 楼主| 发表于 2015-12-03 14:29:32 | 显示全部楼层
BabyRare 发表于 2015-12-3 11:27
我也是这么构思的 能不能麻烦拍个图片看看 感觉图片少了 没看懂布局

CAD截个图,供参考
主卫图片.png
回复 回复(2)条

使用道具 举报

394

帖子

0

原创值

1087

金币

大四_装修达人

Rank: 4

积分
202
 楼主| 发表于 2015-12-03 14:32:03 | 显示全部楼层

谢谢点赞了
回复

使用道具 举报

411

帖子

0

原创值

537

金币

大四_装修达人

Rank: 4

积分
210
发表于 2015-12-03 15:59:46 | 显示全部楼层
曦曦家 发表于 2015-12-3 14:29
CAD截个图,供参考

非常非常感谢 哈哈哈!!!
回复

使用道具 举报

411

帖子

0

原创值

537

金币

大四_装修达人

Rank: 4

积分
210
发表于 2015-12-03 16:00:21 | 显示全部楼层
曦曦家 发表于 2015-12-3 14:29
CAD截个图,供参考

入住后觉得是不是很实用 我现在的主卧那个淋浴功能基本为零
回复

使用道具 举报

102

帖子

0

原创值

127

金币

大三_装修里手

Rank: 3Rank: 3

积分
52
发表于 2015-12-03 17:12:05 | 显示全部楼层
最喜欢的风格哦
回复

使用道具 举报

66

帖子

0

原创值

54

金币

大二_装修学长

Rank: 2

积分
33
发表于 2015-12-03 21:59:18 | 显示全部楼层
QSLX,美名远扬啊
回复

使用道具 举报

236

帖子

0

原创值

237

金币

大三_装修里手

Rank: 3Rank: 3

积分
119
发表于 2015-12-03 22:22:13 | 显示全部楼层
曦崽家暖暖的现代美式
回复

使用道具 举报

153

帖子

0

原创值

236

金币

大三_装修里手

Rank: 3Rank: 3

积分
77
发表于 2015-12-04 08:50:53 | 显示全部楼层
卫浴是哪里买的,楼主?
回复 回复(1)条

使用道具 举报

您需要登录后才可以回帖 登录 | 立即注册

本版积分规则