QQ登录    

08我家网

2023兔年大吉

[装修交流]金牌刘力荐木工,招聘试艺业主

[复制链接]

1067

帖子

0

原创值

672

金币

装修大学_研究生

Rank: 5Rank: 5

积分
882

社区居民

 楼主| 发表于 2011-02-10 18:31:21 | 显示全部楼层
郑重提示:这里“招聘”,仅限木工师傅,油漆刘和泥工王实在太抢手,但应聘业主可以通过木工胡师傅与之联系,毕竟他们都有推荐之责,情况允许的话,招聘业主应该会有优先权。
回复

使用道具 举报

192

帖子

0

原创值

16

金币

大三_装修里手

Rank: 3Rank: 3

积分
179

社区居民

发表于 2011-02-20 11:32:15 | 显示全部楼层
家里有些扫尾的木工活,不知道有没有师傅愿意做。可短我哦。
回复

使用道具 举报

1050

帖子

0

原创值

474

金币

装修大学_研究生

Rank: 5Rank: 5

积分
1093

社区居民社区明星

发表于 2011-02-21 10:03:16 | 显示全部楼层
我应征啊。。另外,我是新手,为什么我发不了站内信?这样我就无从获得他们的联系电话哦。。好想要这些金牌师傅的联系电话。。。。
回复

使用道具 举报

702

帖子

0

原创值

81

金币

装修大学_研究生

Rank: 5Rank: 5

积分
643

社区居民

发表于 2011-03-15 18:10:44 | 显示全部楼层
三个火枪手,呵呵
回复

使用道具 举报

96

帖子

0

原创值

4

金币

大三_装修里手

Rank: 3Rank: 3

积分
85

社区居民

发表于 2011-04-23 16:41:05 | 显示全部楼层
胡师傅现在我家,本月25号进场,我会随时上传现场图片
回复

使用道具 举报

96

帖子

0

原创值

4

金币

大三_装修里手

Rank: 3Rank: 3

积分
85

社区居民

发表于 2011-04-23 16:43:54 | 显示全部楼层
散包装修,真是心力交瘁,也许真的是缘分吧,我家水电工和泥工都是大浪所推荐的师傅,而我下决心散包也是看了大浪的帖子,施工到现在,前面的师傅都很让我满意,希望我家最重要的木工能同样圆满
回复

使用道具 举报

96

帖子

0

原创值

4

金币

大三_装修里手

Rank: 3Rank: 3

积分
85

社区居民

发表于 2011-04-23 16:49:47 | 显示全部楼层
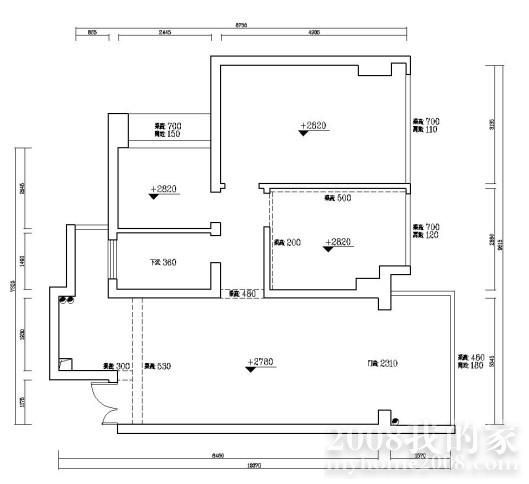
先来介绍下我家户型:房产面积89平米,带空中花园及阳台,空中花园封闭后为小三居、一厨一卫
未命名.jpg
回复

使用道具 举报

96

帖子

0

原创值

4

金币

大三_装修里手

Rank: 3Rank: 3

积分
85

社区居民

发表于 2011-04-23 16:53:04 | 显示全部楼层
因为面积小,所以设计很紧凑,隔墙基本都敲掉做了柜子,因此就不难理解为啥木工是我家最重要的项目,以后我会逐步把我家装修图上传,希望能对大家有所帮助。我家的板材是在旺德府进的,45张指接,7张大芯
回复

使用道具 举报

96

帖子

0

原创值

4

金币

大三_装修里手

Rank: 3Rank: 3

积分
85

社区居民

发表于 2011-04-24 10:29:06 | 显示全部楼层
今天不去工地,补了瓷砖,做厨房水泥地柜的,是在马王堆买的处理品,800X800的,18块钱一块,另外买了块600的切成10条做压条线
回复

使用道具 举报

96

帖子

0

原创值

4

金币

大三_装修里手

Rank: 3Rank: 3

积分
85

社区居民

发表于 2011-04-24 10:31:17 | 显示全部楼层
原来文件大了发不上
未命名.jpg
回复

使用道具 举报

您需要登录后才可以回帖 登录 | 立即注册

本版积分规则