QQ登录    

08我家网

2023兔年大吉

论工科男的装修自我修养----The new journey

  [复制链接]

152

帖子

0

原创值

321

金币

大三_装修里手

Rank: 3Rank: 3

积分
78
发表于 2016-06-03 15:31:56 | 显示全部楼层
我是来学习的
回复

使用道具 举报

208

帖子

0

原创值

326

金币

大三_装修里手

Rank: 3Rank: 3

积分
134

社区居民忠实会员

发表于 2016-06-03 16:24:46 | 显示全部楼层
看看什么样的
回复

使用道具 举报

113

帖子

0

原创值

303

金币

大三_装修里手

Rank: 3Rank: 3

积分
74

社区居民

发表于 2016-06-03 16:36:22 | 显示全部楼层
看图看图看图

回复

使用道具 举报

260

帖子

0

原创值

282

金币

大三_装修里手

Rank: 3Rank: 3

积分
178

社区居民忠实会员

发表于 2016-06-04 23:12:58 | 显示全部楼层
强贴,必须欣赏
回复

使用道具 举报

395

帖子

0

原创值

1451

金币

大四_装修达人

Rank: 4

积分
205
 楼主| 发表于 2016-06-05 20:13:15 | 显示全部楼层

好货清单-供水系统

本帖最后由 yanqinli2007 于 2016-6-7 01:20 编辑

看到之前很多留言都说这个装修花了不少钱,确实,从绝对数字来说确实不少-55w。但对于200平的使用面积来说,单位面积的价格应该不算高。要知道这些钱包括到所有的东西,甚至一个杯子,一双拖鞋。

省钱的方法有三:
1.不在无实用价值的地方花钱,如这里搞个柱子,那里搞个拱拱。
2.海外直邮或等618,1111等日子狂买(去年1111刷了4wrmb)。
3.家具全用IKEA。这是重点,也是妥协之举,本人给家具的预算只够人家买把好椅子。

这里我想关于IKEA多说两句,黑胡桃小牛皮什么的固然喜欢,但家具全套IKEA有三点考虑:

1.环保,跟广东家具厂相比,本人更相信瑞典人开的店子(这不妨碍我热爱我的祖国)。
2.便宜,999元的床架,1500块钱德国产的桌子,即使是中国产的2500块的沙发,好歹10年质保啊,2500块,十年,还要什么自行车类。
3.不丑,能看。至于质量什么的,等长沙IKEA开了再去全换一遍新的,都比美凯龙里的一个沙发便宜。

进入正题:
接下来我会时不时的分类更新,对之前买的一些东西,以及渠道进行介绍,希望能帮到大家。


     water supply system     


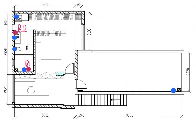
本案供水系统包括冷水供给,热水供给与饮用水供给三个部分,如下图所示。

截图 2016-06-05 18时57分09秒.jpg
水电B.jpg


1. 冷水供给

冷水供给处如平面图蓝点所示。家里三个卫生间,两个厨房,其中两个卫生间可淋浴。面盆龙头,花洒,厨房龙头,都从amazon.de采购的,其中高仪面盆龙头和两把厨房龙头可抽拉,主卧面盆龙头可翻转。厨房龙头和水槽配套购买。

特别提醒:海淘回来的龙头都是带的三分的软管,所以推荐再买些3分的角阀,我搞了10个汉斯格雅的角阀回来,几十块钱一个,比后来补买的号称toto的角阀便宜多了。

截图 2016-06-05 17时31分55秒.jpg
截图 2016-06-05 17时31分15秒.jpg
C15FB03E-28F8-4916-A54E-C761F18E1295.png
Hansgrohe 32053000.png
Hansgrohe 31607000.png
Hansgrohe 13902000.png


2. 热水供给

热水供给处如平面图红点所示,A1,A4,B1,B2处采用热水器+循环水泵供热水。A2,A3采用壁挂炉供热水,A5处采用小厨宝供热水,这样保证了两处淋浴能同时开启的同时,也避免了A5处太远造成的热水浪费。

截图 2016-06-05 17时38分37秒.jpg
截图 2016-06-05 17时38分08秒.jpg
截图 2016-06-05 19时54分06秒.jpg
Hansgrohe 27037400.png
截图 2016-06-05 17时35分32秒.jpg


3. 饮用水供给

饮用水采用前置过滤机器+储水式RO膜机器的形式,位于平面图绿色圆点处。
前置过滤为BWT-F1,带稳压功能,做工和价格都很美好。
RO机是APEC-WATER,美亚销冠,到手后做工对得起价钱,最后一级调PH值,呈弱碱性,改善直饮口感。

截图 2016-06-05 18时44分30秒.jpg
截图 2016-06-05 18时43分45秒.jpg









回复 收藏 回复(2)条

使用道具 举报

787

帖子

0

原创值

1836

金币

大四_装修达人

Rank: 4

积分
443

社区居民忠实会员

发表于 2016-06-06 16:33:34 | 显示全部楼层
RE: 【第八届装修日记上半年赛 NO.37】论工科男的装修自我修养-好货清单持续更新! [修改]
回复

使用道具 举报

437

帖子

0

原创值

1155

金币

大四_装修达人

Rank: 4

积分
219
发表于 2016-06-07 11:03:55 | 显示全部楼层
看看橱柜效果!
回复

使用道具 举报

805

帖子

0

原创值

1116

金币

装修大学_研究生

Rank: 5Rank: 5

积分
548

社区居民忠实会员

发表于 2016-06-08 12:57:30 | 显示全部楼层
工科男的好货清单
回复

使用道具 举报

55

帖子

0

原创值

172

金币

大二_装修学长

Rank: 2

积分
28
发表于 2016-06-08 13:20:51 | 显示全部楼层
你家好美,学习
回复

使用道具 举报

791

帖子

0

原创值

2813

金币

大四_装修达人

Rank: 4

积分
403
发表于 2016-06-11 15:05:54 来自手机 | 显示全部楼层
来参观的
回复

使用道具 举报

您需要登录后才可以回帖 登录 | 立即注册

本版积分规则