QQ登录    

08我家网

2023兔年大吉

[装修求助]平面布局求各位大神指导啊!!!

[复制链接]

20

帖子

0

原创值

29

金币

大一_装修新生

Rank: 1

积分
11
发表于 2016-07-17 11:21:28 | 显示全部楼层 |阅读模式
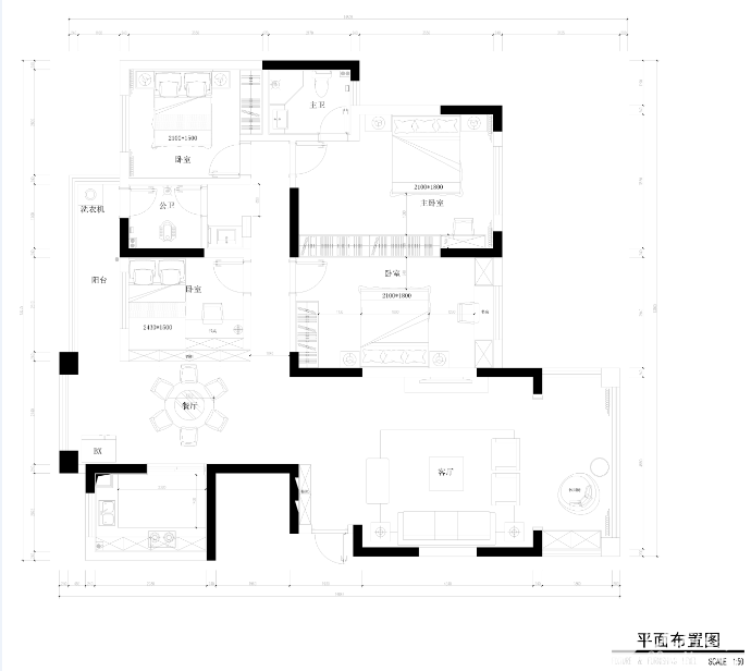
布局真的让我头疼的不行,求各位大神给我意见!!!
BYV(BE]AHVUL)U(6H1FP0HI.png

5201

帖子

0

原创值

6560

金币

管理员

Rank: 20Rank: 20Rank: 20Rank: 20Rank: 20

积分
4270

社区居民新人进步奖原创达人

发表于 2016-07-18 11:35:59 | 显示全部楼层
楼主把问题和需求说清楚下哦~
回复 回复(1)条

使用道具 举报

20

帖子

0

原创值

29

金币

大一_装修新生

Rank: 1

积分
11
 楼主| 发表于 2016-07-24 11:39:34 | 显示全部楼层
蔚蓝 发表于 2016-7-18 11:35
楼主把问题和需求说清楚下哦~

我想请大神看看,我这样布局合理不?主卧的空间是不是太浪费,有没有更好的意见!
回复

使用道具 举报

您需要登录后才可以回帖 登录 | 立即注册

本版积分规则