QQ登录    

08我家网

2023兔年大吉

如鱼得水,现代美式

  [复制链接]

51

帖子

0

原创值

31

金币

大二_装修学长

Rank: 2

积分
26
发表于 2017-02-08 22:20:26 | 显示全部楼层
期待你的效果哦!
回复

使用道具 举报

507

帖子

0

原创值

248

金币

大四_装修达人

Rank: 4

积分
254
发表于 2017-02-08 22:28:33 来自手机 | 显示全部楼层
看看美家的
回复

使用道具 举报

541

帖子

0

原创值

953

金币

大四_装修达人

Rank: 4

积分
283
发表于 2017-02-08 23:18:33 | 显示全部楼层
学习哈···欧耶
回复

使用道具 举报

541

帖子

0

原创值

953

金币

大四_装修达人

Rank: 4

积分
283
发表于 2017-02-08 23:19:52 | 显示全部楼层
你的这个初步打算我就是这么做的······美缝交给专业人士吧,洗碗机····可有可无
回复 回复(1)条

使用道具 举报

437

帖子

0

原创值

1155

金币

大四_装修达人

Rank: 4

积分
219
发表于 2017-02-09 09:15:21 | 显示全部楼层
看下,学习下设计
回复

使用道具 举报

541

帖子

0

原创值

830

金币

大四_装修达人

Rank: 4

积分
271
发表于 2017-02-09 09:24:19 | 显示全部楼层
看看你的装修
回复

使用道具 举报

152

帖子

0

原创值

257

金币

大三_装修里手

Rank: 3Rank: 3

积分
76
发表于 2017-02-09 09:26:54 | 显示全部楼层
好多隐藏内容啊
回复

使用道具 举报

725

帖子

0

原创值

1824

金币

大四_装修达人

Rank: 4

积分
371
 楼主| 发表于 2017-02-09 09:51:49 | 显示全部楼层
小黄医生 发表于 2017-2-8 23:19
你的这个初步打算我就是这么做的······美缝交给专业人士吧,洗碗机····可有可无

美缝+地砖+泥工的总价和贴木地板的花费差不多了
回复

使用道具 举报

725

帖子

0

原创值

1824

金币

大四_装修达人

Rank: 4

积分
371
 楼主| 发表于 2017-02-09 10:12:27 | 显示全部楼层

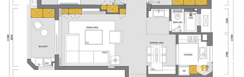
厨房、餐厅、卫生间的合理设计

本帖最后由 Okare 于 2017-2-9 10:22 编辑

厨房、餐厅、卫生间的合理设计

    与我家差不多的户型还是挺多的,在chh上看到o大的这套设计,感觉挺不错的。

屏幕快照 2017-02-09 07.06.04.png
屏幕快照 2017-02-09 07.02.13.jpg


    虽然图中的色调不符合我的简美调调,不过这种设计还是值得借鉴的,既做到了南北通透,又显得房子大气。

    此外,我还找到了另一种更易实现这效果的方案,请看下图。

    屏幕快照 2017-02-09 07.12.14.jpg

    相信大家已经看懂了,我也就不多说了,其中这个电视储物柜也类似于网红设计师逯薇家中最得意的设计了。

640-6.jpeg
640-5.jpeg


上图来源于《家的容器》

    最后,我自己最喜欢的方案是牺牲一个卫生间,做一个大大的半开放式厨房,可惜的是我不怎么做饭啊。我自己画了个草图,请轻喷!
    屏幕快照 2016-12-05 11.37.21.png


回复 回复(1)条

使用道具 举报

725

帖子

0

原创值

1824

金币

大四_装修达人

Rank: 4

积分
371
 楼主| 发表于 2017-02-09 10:13:34 | 显示全部楼层

占楼

本帖最后由 Okare 于 2017-2-9 10:16 编辑


最近这两周应该会把设计定下来,到时候分享上来,所以先占个楼。

回复 回复(1)条

使用道具 举报

您需要登录后才可以回帖 登录 | 立即注册

本版积分规则