登录
|
立即注册
首页
装修交流
APP下载
微信公众号
搜索
搜索
本版
帖子
用户
装修学院
装修日记
装修交流
装修毕业照
建材团购
建材团购
二手转让
省钱情报
加入装修交流群
08我家网
»
装修交流
›
站务管理
›
新手教程·发展建议
›
每日签到
›
老白同学来了,请众大神帮忙了
返回列表
老白同学来了,请众大神帮忙了
[复制链接]
我爱我家258
我爱我家258
当前离线
积分
35
66
帖子
0
原创值
76
金币
大二_装修学长
大二_装修学长, 积分 35, 距离下一级还需 15 积分
大二_装修学长, 积分 35, 距离下一级还需 15 积分
积分
35
关注
6
私信
发表于 2017-03-17 18:13:12
|
显示全部楼层
|
阅读模式
跪谢众大神了
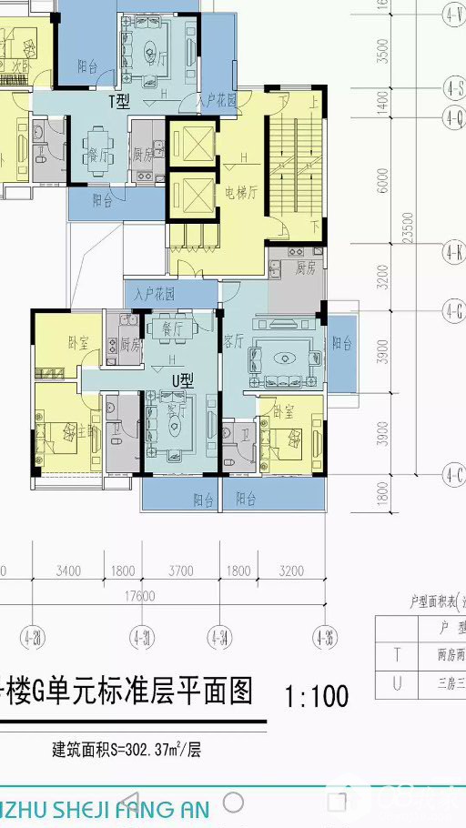
这是房子平面图,坐南向北,本是子母套,想改成一大套,跪求大家了
回复
使用道具
举报
提升卡
置顶卡
沉默卡
千斤顶
我爱我家258
我爱我家258
当前离线
积分
35
66
帖子
0
原创值
76
金币
大二_装修学长
大二_装修学长, 积分 35, 距离下一级还需 15 积分
大二_装修学长, 积分 35, 距离下一级还需 15 积分
积分
35
关注
6
私信
楼主
|
发表于 2017-03-17 18:15:50
|
显示全部楼层
错了,是坐北向南的.菜鸟菜鸟.还有入户花园的一片空地也是使用范围.
回复
使用道具
举报
我爱我家258
我爱我家258
当前离线
积分
35
66
帖子
0
原创值
76
金币
大二_装修学长
大二_装修学长, 积分 35, 距离下一级还需 15 积分
大二_装修学长, 积分 35, 距离下一级还需 15 积分
积分
35
关注
6
私信
楼主
|
发表于 2017-03-17 18:42:01
|
显示全部楼层
6月交房,现在是纠结客厅东西朝向还是南北朝向.还有大的厨房离餐厅太远,小的厨房又太小了.再还有就是入户花园狭长,很浪费空间,再再有就是入户花园左上角还有18平方,不知道怎么设计,跪求大神
们了
回复
使用道具
举报
返回列表
高级模式
Smilies
您需要登录后才可以回帖
登录
|
立即注册
本版积分规则
发表回复
回帖后跳转到最后一页
浏览过的版块
装修日记
装修口碑推荐
往期团购
装修交流
吃喝玩乐购