QQ登录    

08我家网

2023兔年大吉

[装修求助]设计第一步,平面方案出来了

[复制链接]

72

帖子

0

原创值

167

金币

大二_装修学长

Rank: 2

积分
39
发表于 2017-04-24 22:52:03 来自手机 | 显示全部楼层 |阅读模式
本帖最后由 杀猪刀 于 2017-9-5 15:56 编辑

请问主卧衣柜是一字形还是u字形,还是其他设计
temp_1493045424203.jpg


temp_1493045424086.jpg
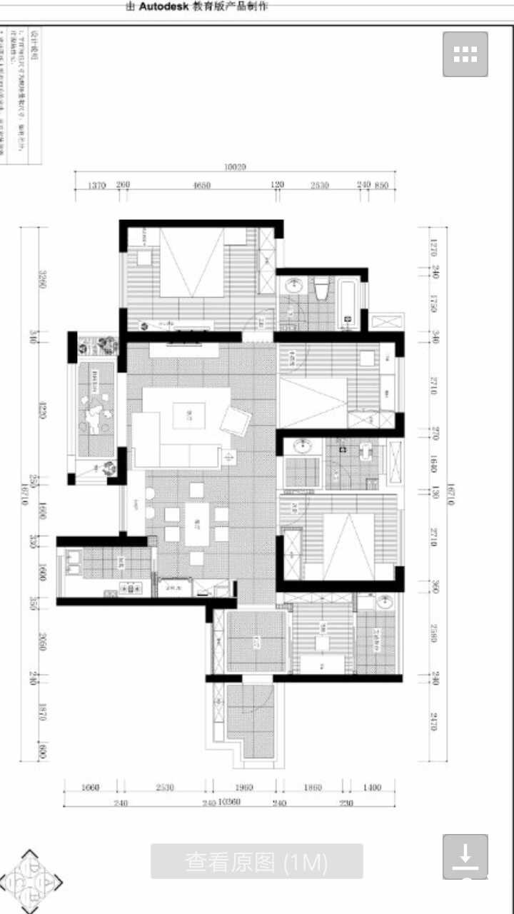
4.13_4.23,经过10天的等待平面方案出来了,辛苦了我的设计师!
因房子承重墙太多,所以房子改动的地方没什么,两套方案大同小异,设计师按照我们的沟通交流要求设计出了平面图纸,没什么很大的要改动的,因为在此图纸没出来之前,各个房间的平面布局我们已经在房子里现场量尺画样了,也许正因为这样,今天看平面方案我好像心情很平静呀。
图纸如下,请各位达人 temp_1493045407665.jpg
点评点评,希望能看到一些我们和我的设计师之外的建议。多谢!

4871

帖子

0

原创值

520

金币

管理员

Rank: 20Rank: 20Rank: 20Rank: 20Rank: 20

积分
2622
发表于 2017-04-25 09:23:42 | 显示全部楼层
这个平面方案看起来还不错呀。其实到底好不好,还是要看你家的具体情况了。需求更详细一点才好给建议。
回复

使用道具 举报

72

帖子

0

原创值

167

金币

大二_装修学长

Rank: 2

积分
39
 楼主| 发表于 2017-04-25 12:12:02 来自手机 | 显示全部楼层
瑞都默默 发表于 2017-04-25 09:23:42
这个平面方案看起来还不错呀。其实到底好不好,还是要看你家的具体情况了。需求更详细一点才好给建议。

谢谢版主大人
回复

使用道具 举报

您需要登录后才可以回帖 登录 | 立即注册

本版积分规则