QQ登录    

08我家网

2023兔年大吉

【2017日记大赛优秀奖】装修小记——我的小宅我的家

  [复制链接]

748

帖子

0

原创值

1343

金币

大四_装修达人

Rank: 4

积分
381

社区居民

发表于 2017-08-12 22:32:10 | 显示全部楼层
期待你封窗最后的选择
回复 回复(1)条

使用道具 举报

748

帖子

0

原创值

1343

金币

大四_装修达人

Rank: 4

积分
381

社区居民

发表于 2017-08-14 09:44:34 | 显示全部楼层
封窗选择纠结啊
回复

使用道具 举报

1459

帖子

0

原创值

1891

金币

装修大学_研究生

Rank: 5Rank: 5

积分
747
 楼主| 发表于 2017-08-15 21:15:00 | 显示全部楼层

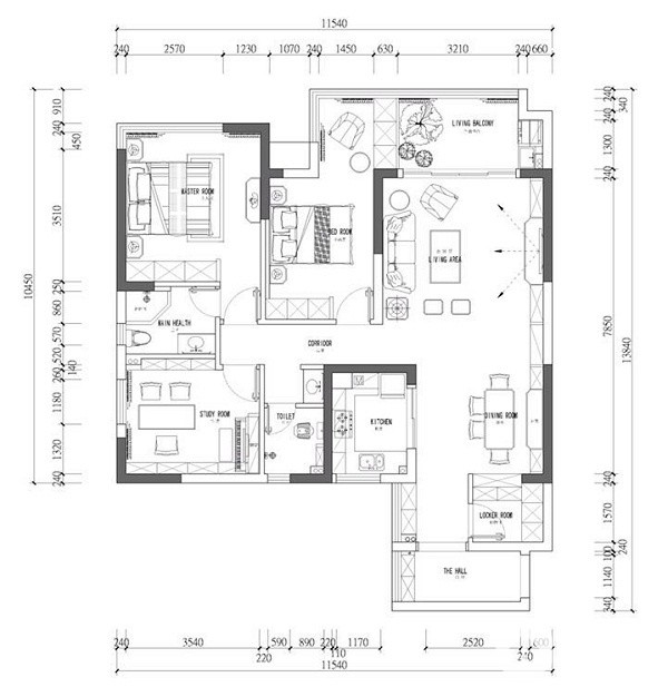
19.【设计篇】——举棋不定中,平面图初稿出台

本帖最后由 wing007 于 2017-8-15 21:27 编辑

       当初择房的时候考虑的因素有3点:一要靠近小区中央,避免吵闹;二要方位要好,避免西晒;三要视野佳,一览纵山小。于是踌躇中买下了这套同梯4户中单价最高的户型,小三房,130平,朝向偏西但位于内侧,视野较佳,小区中心。但现在看来考虑欠周,一来过道长,且不够明亮,二来三房对我来说确实小了点,很难凑出一个单独衣帽间和专用书房。

       附上原始户型图:
微信图片_20170815210920.jpg
       在这样一个小小的空间里面,我想要一个储藏间,想要一个书房兼钢琴间,想要多多的柜子,真的太难了。正所谓博观而约取,厚积而薄发,这个时候我想到了我这种户型是荣悦台的典型户型,小区里面已经在装修或正准备装修的不少,且大部分是请的HY、DYRS、DS公司的,何不参考借鉴(剽窃)他们的创意呢?为此,我开始了自己的扫楼行动,也得到了一些好的创意,第一版的平面图也就运势而生了:
微信图片_20170815210939.jpg

       从平面图可以看出,在入户花园上方又多了一个新的“入户花园”,其实这是消防通道,但没有任何消防设施,且是属于我这个户型专用,因此在设计时暂时考虑纳入。虽然平面图一定程度上解决了储物少的问题,但新的问题也再次摆在我面前,我要去哪里晾晒衣服,这个只能后期细细考虑再修改图纸了。

回复 收藏 回复(2)条

使用道具 举报

1459

帖子

0

原创值

1891

金币

装修大学_研究生

Rank: 5Rank: 5

积分
747
 楼主| 发表于 2017-08-15 21:16:58 | 显示全部楼层
么小茶 发表于 2017-8-9 12:03
恩 我家也是定的德瑞 原木柜门的话 打算用什么颜色 我家打算用白色 但是柜门用原木貌似没有模压白色好 纠结

哈哈,同是选择德瑞啊,你这纠结什么,模压比原木便宜多啦
回复

使用道具 举报

1459

帖子

0

原创值

1891

金币

装修大学_研究生

Rank: 5Rank: 5

积分
747
 楼主| 发表于 2017-08-15 21:17:44 | 显示全部楼层
how16 发表于 2017-8-9 13:38
求教,四居,套内149选什么系列,价格大概多少?

我买的不是中央空调啊,我是风管机,不知和你的选择是否一致?
回复

使用道具 举报

1459

帖子

0

原创值

1891

金币

装修大学_研究生

Rank: 5Rank: 5

积分
747
 楼主| 发表于 2017-08-15 21:18:17 | 显示全部楼层
树姨 发表于 2017-8-9 19:59
刚发现你把封窗写成了论文

论文还没有那个水平啦
回复

使用道具 举报

1459

帖子

0

原创值

1891

金币

装修大学_研究生

Rank: 5Rank: 5

积分
747
 楼主| 发表于 2017-08-15 21:18:53 | 显示全部楼层
猴小闲 发表于 2017-8-9 21:23
等男神装完估计博士毕业啦

女神现在就已经是博导了
回复

使用道具 举报

1459

帖子

0

原创值

1891

金币

装修大学_研究生

Rank: 5Rank: 5

积分
747
 楼主| 发表于 2017-08-15 21:19:07 | 显示全部楼层
ofa 发表于 2017-8-9 22:39
最重要的就是08团购

嘿嘿,没有说错吧
回复

使用道具 举报

1459

帖子

0

原创值

1891

金币

装修大学_研究生

Rank: 5Rank: 5

积分
747
 楼主| 发表于 2017-08-15 21:20:01 | 显示全部楼层

是啊,每搞定一个大项目我开心死了,我就纠结癌晚期了,最好任何材料都只有唯一选项,我最开心
回复

使用道具 举报

1459

帖子

0

原创值

1891

金币

装修大学_研究生

Rank: 5Rank: 5

积分
747
 楼主| 发表于 2017-08-15 21:20:23 | 显示全部楼层
幽南 发表于 2017-8-10 09:16
扫地僧。。嗯哼。我就不对号入座了。。。哈哈哈

哈哈,你懂的,高深莫测啊
回复

使用道具 举报

您需要登录后才可以回帖 登录 | 立即注册

本版积分规则