QQ登录    

08我家网

2023兔年大吉

[装修交流]装修小白的全包装修路,请各位大神多指点。

[复制链接]

96

帖子

0

原创值

136

金币

大二_装修学长

Rank: 2

积分
49
发表于 2017-05-28 15:15:12 来自手机 | 显示全部楼层 |阅读模式
本帖最后由 杀猪刀 于 2017-9-5 15:29 编辑

不多说直接上图
193718.jpg

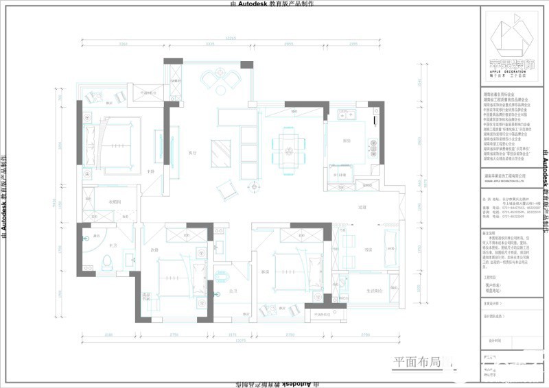
125平小四房,把进门处小房间改成书房加生活阳台。
898486.jpg

783789.jpg

264284.jpg

096536.jpg

第一次搞装修,很多地方都不懂,求08各路大神多多指教。主要是衣帽间的衣柜设计有点犯难,还有入户门鞋柜、客厅阳台的柜子设计也有点犯难。

2251

帖子

0

原创值

3283

金币

装修大学_博士生

Rank: 6Rank: 6

积分
1648

社区居民忠实会员最爱沙发社区明星

发表于 2017-05-28 18:07:14 | 显示全部楼层
可以把你的需求和目前的难点罗列出来,大家才能更好的帮你想出解决方法哦~
回复

使用道具 举报

96

帖子

0

原创值

136

金币

大二_装修学长

Rank: 2

积分
49
 楼主| 发表于 2017-05-28 23:44:37 来自手机 | 显示全部楼层
糖小肥肥 发表于 2017-05-28 18:07:14
可以把你的需求和目前的难点罗列出来,大家才能更好的帮你想出解决方法哦~

感觉文笔太差,词不达意的
回复

使用道具 举报

3992

帖子

0

原创值

8484

金币

荣誉版主

积分
2839

社区居民忠实会员社区劳模最爱沙发社区明星

发表于 2017-06-01 10:21:13 | 显示全部楼层
楼主图片太模糊了,白茫茫的一片呐················
回复

使用道具 举报

您需要登录后才可以回帖 登录 | 立即注册

本版积分规则