QQ登录    

08我家网

2023兔年大吉

盖楼写日记

[复制链接]

138

帖子

0

原创值

42

金币

大三_装修里手

Rank: 3Rank: 3

积分
127

社区居民

发表于 2011-04-12 14:32:56 | 显示全部楼层 |阅读模式
开始盖楼,写得了多少自己也不知道

动工也有几天了,今天突然想着还是写一点东西,留下点记忆,也给大家或多或少留点教训也好,经验也罢吧。


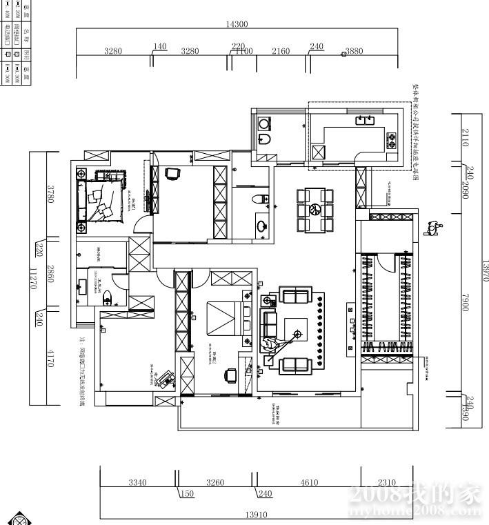
先上一张户型图


户型.jpg


接着上一张设计图

设计.jpg



这是去年收房时开发商准备砌间隔墙前拍的两张

001.jpg

002.jpg
  

前两天刚开始准备装修时试水,楼上楼下都没有开始,在自己家放水,楼上也放水,结果不到24小时自家和楼下都开始渗漏了。楼下的漏水情况也上两张,把情况反映给了开发商,要他们进行整改,估计楼下自己把防水做好就行了,他们能保证楼上改好,以后装修不要再试水就漏。

003.jpg

004.jpg


  
4月12日把砌好的墙敲了,重新砌单面墙。牺牲小孩房的部分空间留给了主卧室做衣柜,开始是准备上轻钢龙骨加隔音棉的,但想着还是红砖的承重好一些,以后挂个什么电视影响不大。

005.jpg


因为是单面墙,师傅说只能分三次砌,等下面的干了墙不会变形。这是砌第二次了,又得等明天了。
006.jpg


  

138

帖子

0

原创值

42

金币

大三_装修里手

Rank: 3Rank: 3

积分
127

社区居民

 楼主| 发表于 2011-04-12 14:33:59 | 显示全部楼层
一楼自己准备着,不要抢




一楼
回复

使用道具 举报

138

帖子

0

原创值

42

金币

大三_装修里手

Rank: 3Rank: 3

积分
127

社区居民

 楼主| 发表于 2011-04-12 14:34:21 | 显示全部楼层
二楼,自己准备着,不要抢


二楼
回复

使用道具 举报

138

帖子

0

原创值

42

金币

大三_装修里手

Rank: 3Rank: 3

积分
127

社区居民

 楼主| 发表于 2011-04-12 14:34:45 | 显示全部楼层
三楼,自己准备着,不要抢


三楼
回复

使用道具 举报

138

帖子

0

原创值

42

金币

大三_装修里手

Rank: 3Rank: 3

积分
127

社区居民

 楼主| 发表于 2011-04-12 14:34:59 | 显示全部楼层
四楼,自己准备着,不要抢


四楼
回复

使用道具 举报

138

帖子

0

原创值

42

金币

大三_装修里手

Rank: 3Rank: 3

积分
127

社区居民

 楼主| 发表于 2011-04-12 14:35:13 | 显示全部楼层
五楼,自己准备着,不要抢


五楼
回复

使用道具 举报

138

帖子

0

原创值

42

金币

大三_装修里手

Rank: 3Rank: 3

积分
127

社区居民

 楼主| 发表于 2011-04-12 14:35:26 | 显示全部楼层
六楼,自己准备着,不要抢


六楼
回复

使用道具 举报

138

帖子

0

原创值

42

金币

大三_装修里手

Rank: 3Rank: 3

积分
127

社区居民

 楼主| 发表于 2011-04-12 14:35:41 | 显示全部楼层
七楼,自己准备着,不要抢


七楼
回复

使用道具 举报

138

帖子

0

原创值

42

金币

大三_装修里手

Rank: 3Rank: 3

积分
127

社区居民

 楼主| 发表于 2011-04-12 14:35:52 | 显示全部楼层
八楼,自己准备着,不要抢


八楼
回复

使用道具 举报

138

帖子

0

原创值

42

金币

大三_装修里手

Rank: 3Rank: 3

积分
127

社区居民

 楼主| 发表于 2011-04-12 14:36:07 | 显示全部楼层
九楼,自己准备着,不要抢


九楼
回复

使用道具 举报

您需要登录后才可以回帖 登录 | 立即注册

本版积分规则