QQ登录    

08我家网

2023兔年大吉

纠结症、强迫症、拖延症:统统用日记来解决

[复制链接]
  • 所在城市:长沙
  • 所在小区:地泰.御璟苑
  •  
  • 装修类型:新房装修
  • 装修户型:三房
  •  
  • 装修方式:清包
  • 装修风格:
  •  
  • 装修预算:20万—30万
  • 开工时间:
  • 主体拆装2017-12-28
  • 水电
  • 泥工
  • 木工
  • 油漆
  • 成品安装
  • 软装配饰
  • 毕业
已装修历时2961天 ,共花费9315.00

153

帖子

50

原创值

525

金币

大三_装修里手

Rank: 3Rank: 3

积分
79

社区居民

发表于 2017-09-12 23:54:43 来自手机 | 显示全部楼层 |阅读模式
715996.jpg
查了黄历,今天日子还不错,就此作为日记的开篇之日,好好记录装修过程中的点点滴滴,欢喜与忧愁!

1万

帖子

0

原创值

9607

金币

论坛元老

掰子姐

Rank: 15Rank: 15Rank: 15Rank: 15Rank: 15

积分
11275

吃货社区居民社区明星忠实会员最爱沙发新人进步奖幽默大师奖贴图大师奖原创先锋奖金点子奖特殊贡献奖宣传大使奖优秀斑竹奖终身成就奖灌水天才奖社区劳模原创达人

发表于 2017-09-13 10:04:51 | 显示全部楼层
欢迎来到装修日记版记录自己的装修过程!
写日记治三症,好办法啊!

奉上装修日记书写攻略,可使用装修进度条及装修清单功能,让自己的日记更精彩哦~~
装修日记这么写——新手写日记补全攻略
http://www.08wojia.com/thread-97570-1-1.html
回复

使用道具 举报

4871

帖子

0

原创值

520

金币

管理员

Rank: 20Rank: 20Rank: 20Rank: 20Rank: 20

积分
2622
发表于 2017-09-13 14:29:09 | 显示全部楼层
哈哈,吉日开帖一切顺利!等你的散包记!
回复

使用道具 举报

1万

帖子

628

原创值

1万

金币

荣誉版主

积分
8155

社区居民忠实会员社区劳模最爱沙发社区明星

发表于 2017-09-20 11:46:29 | 显示全部楼层
吉吉很厉害啊。会看黄历!
回复

使用道具 举报

1338

帖子

0

原创值

2455

金币

装修大学_研究生

装修是一场渡劫,亦是一场修行;愿我遇到的都是好师傅。

Rank: 5Rank: 5

积分
672

社区居民

发表于 2017-09-20 13:24:30 | 显示全部楼层
挑好日子,哈哈
回复

使用道具 举报

153

帖子

50

原创值

525

金币

大三_装修里手

Rank: 3Rank: 3

积分
79

社区居民

 楼主| 发表于 2017-09-25 15:19:29 来自手机 | 显示全部楼层

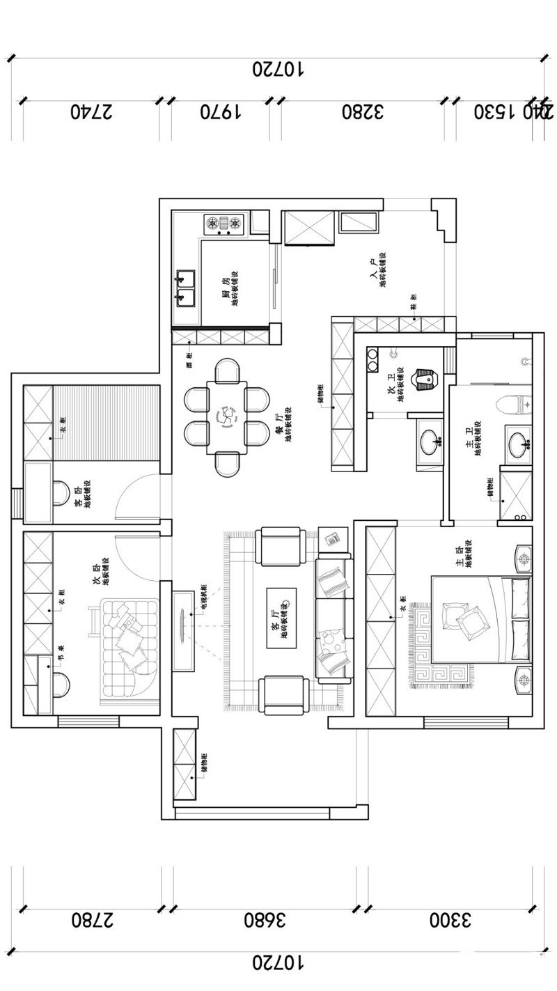
临近开工:还在纠结的户型设计

次卧门导致电视背景设计困难,冰箱导致厨房门朝向改动,同时又因这两个问题导致其它一系列问题产生,最终,设计图纸有如难产般诞生,但总觉得哪里不太对,现把图片呈上,盼各路大神指点一二!        

127633.jpg
393553.jpg
回复

使用道具 举报

153

帖子

50

原创值

525

金币

大三_装修里手

Rank: 3Rank: 3

积分
79

社区居民

 楼主| 发表于 2017-09-25 15:40:11 | 显示全部楼层

临近开工:还在纠结的户型设计

次卧门导致电视背景设计困难,冰箱导致厨房门朝向改动,同时又因这两个问题导致其它一系列问题产生,最终,设计图纸有如难产般诞生,但总觉得哪里不太对,现把图片呈上,盼各路大神指点一二!            
634635.jpg

设计图

设计图

回复 收藏

使用道具 举报

153

帖子

50

原创值

525

金币

大三_装修里手

Rank: 3Rank: 3

积分
79

社区居民

 楼主| 发表于 2017-12-28 21:45:18 来自手机 | 显示全部楼层

开工大吉

2017年12月28日9:18分,敲墙,搞起!!!鞭炮,炸起!开工大吉! 144781.jpg
353594.jpg
回复 收藏

使用道具 举报

153

帖子

50

原创值

525

金币

大三_装修里手

Rank: 3Rank: 3

积分
79

社区居民

 楼主| 发表于 2017-12-28 21:47:44 来自手机 | 显示全部楼层

开工大吉

2017年12月28日9:18分,敲墙,搞起!!!鞭炮,炸起!!!开工大吉!
回复 收藏

使用道具 举报

153

帖子

50

原创值

525

金币

大三_装修里手

Rank: 3Rank: 3

积分
79

社区居民

 楼主| 发表于 2017-12-28 21:50:44 来自手机 | 显示全部楼层

开工大吉

2017年12月28日9:18分,敲墙,搞起!!!鞭炮,炸起!!!开工大吉!!! 615919.jpg
263286.jpg
回复 收藏

使用道具 举报

您需要登录后才可以回帖 登录 | 立即注册

本版积分规则