QQ登录    

08我家网

2023兔年大吉

待装,先做前期学习记录。

[复制链接]
  • 所在城市:长沙
  • 所在小区:谷山庭苑
  •  
  • 装修类型:新房装修
  • 装修户型:三房
  •  
  • 装修方式:半包
  • 装修风格:
  •  
  • 装修预算:10万以内
  • 开工时间:
  • 前期设计
  • 主体拆装
  • 水电
  • 泥工
  • 木工
  • 油漆
  • 成品安装
  • 软装配饰
  • 毕业
已装修历时2858天 ,共花费11859.00

39

帖子

0

原创值

149

金币

大二_装修学长

Rank: 2

积分
21
发表于 2017-12-24 12:12:45 来自手机 | 显示全部楼层 |阅读模式
这是装的第三套房,但是,对于装修,我还是小白一枚。第一套是找的装修公司半包,第二套找的包工头全包。当经历了昨天08网的卫生间施工工艺讲解后,发现大公司也不过如此。最重要的还是自己要懂,不然被忽悠了还为别人打call。
言归正传
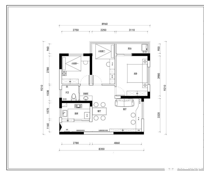
现在这套是三房一厅,奇葩户型,各个面积都极小。先上户型图
042903.jpg

房子主要用来陪小孩读书。居住人口为两大两小,想给两个小孩独立空间,同时需要书房,原户型是没有餐厅的,需要一个餐厅。因为主要是用来读书,所以,不需要太多储物空间。
风格倾向北欧和muji,色调黑白灰+原木。也就是性冷淡风。
目前自己还比较茫然,先留一贴,慢慢记录。

4871

帖子

0

原创值

520

金币

管理员

Rank: 20Rank: 20Rank: 20Rank: 20Rank: 20

积分
2622
发表于 2017-12-25 09:59:10 | 显示全部楼层
欢迎茜茜开帖写日记!
回复

使用道具 举报

4871

帖子

0

原创值

520

金币

管理员

Rank: 20Rank: 20Rank: 20Rank: 20Rank: 20

积分
2622
发表于 2017-12-25 10:03:28 | 显示全部楼层
我想到几个点,仅供参考!
1、主卧和紧邻的儿童房可以考虑调整格局,顺便把外阳台打通;
2、做开放式厨房,把靠近餐厅的墙打掉,这个位置可以做个餐桌。
回复

使用道具 举报

39

帖子

0

原创值

149

金币

大二_装修学长

Rank: 2

积分
21
 楼主| 发表于 2017-12-25 21:44:40 来自手机 | 显示全部楼层
瑞都默默 发表于 2017-12-25 10:03:28
我想到几个点,仅供参考!
1、主卧和紧邻的儿童房可以考虑调整格局,顺便把外阳台打通;
2、做开放式厨房 ...

嗯,有这样考虑。
现在想的是做开放式厨房,厨房,餐厅和入户做到一个空间。书房放客厅,做成书房式客厅。打算分一截阳台给最小的那个房间,从主卧开张门去阳台。
096401.jpg


目前只想到这样,想再琢磨一下有不有更好的方案。还在考虑是不是需要请一个设计师详细规划一下。
回复 回复(1)条

使用道具 举报

4871

帖子

0

原创值

520

金币

管理员

Rank: 20Rank: 20Rank: 20Rank: 20Rank: 20

积分
2622
发表于 2017-12-26 09:29:58 | 显示全部楼层
elsajam 发表于 2017-12-25 21:44
嗯,有这样考虑。
现在想的是做开放式厨房,厨房,餐厅和入户做到一个空间。书房放客厅,做成书房式客厅 ...

这样还挺合理的。
书房式客厅用得越来越多了,也可以成为亲子互动的空间。
而且这个学区房,电视和电视背景墙这个功能完全可以弱化。
儿童房卧室的衣柜可以考虑用成品衣柜。
回复

使用道具 举报

1万

帖子

0

原创值

9607

金币

论坛元老

掰子姐

Rank: 15Rank: 15Rank: 15Rank: 15Rank: 15

积分
11275

吃货社区居民社区明星忠实会员最爱沙发新人进步奖幽默大师奖贴图大师奖原创先锋奖金点子奖特殊贡献奖宣传大使奖优秀斑竹奖终身成就奖灌水天才奖社区劳模原创达人

发表于 2017-12-26 13:51:53 | 显示全部楼层
欢迎来到装修日记版记录自己的装修过程!

奉上装修日记书写攻略,可使用装修进度条及装修清单功能,让自己的日记更精彩哦~~
装修日记这么写——新手写日记补全攻略
http://www.08wojia.com/thread-97570-1-1.html
回复

使用道具 举报

39

帖子

0

原创值

149

金币

大二_装修学长

Rank: 2

积分
21
 楼主| 发表于 2017-12-27 12:32:16 来自手机 | 显示全部楼层
瑞都默默 发表于 2017-12-26 09:29:58
这样还挺合理的。
书房式客厅用得越来越多了,也可以成为亲子互动的空间。
而且这个学区房,电视和电视 ...

嗯。这次不打算在客厅放电视,准备搞个投影,看的时候才放下了。电视机柜都省了
回复

使用道具 举报

711

帖子

0

原创值

1156

金币

大四_装修达人

Rank: 4

积分
365
发表于 2017-12-27 12:51:19 | 显示全部楼层
先留个脚印
回复

使用道具 举报

39

帖子

0

原创值

149

金币

大二_装修学长

Rank: 2

积分
21
 楼主| 发表于 2018-02-10 00:52:16 来自手机 | 显示全部楼层
改了好几次的平面图
开放式厨房放弃了,燃气问题解决不了
这次做减法
493428.jpg
回复

使用道具 举报

39

帖子

0

原创值

149

金币

大二_装修学长

Rank: 2

积分
21
 楼主| 发表于 2018-05-05 15:24:16 来自手机 | 显示全部楼层
效果图和施工图终于出来了,要准备上路了……
1525504372644_0.png

1525504372774_1.png

1525504372905_2.png

最初的效果图设计师做得比较温暖,装饰性的东西多一点。但是我们想要的是简单干净,偏冷一点的。然后就改成了现在看到的样子。
回复

使用道具 举报

您需要登录后才可以回帖 登录 | 立即注册

本版积分规则