QQ登录    

08我家网

2023兔年大吉

女码农的林中小憩园

[复制链接]

40

帖子

0

原创值

121

金币

大二_装修学长

Rank: 2

积分
21
 楼主| 发表于 2018-05-28 21:43:49 来自手机 | 显示全部楼层

设计答案明天揭晓

尝试再发图,居然成功了!答案那就明天揭晓吧!太困了,晚安朋友们!
回复 收藏

使用道具 举报

1

帖子

0

原创值

23

金币

大一_装修新生

Rank: 1

积分
1
发表于 2018-05-29 00:03:57 来自手机 | 显示全部楼层
文采好等待大作出品
回复

使用道具 举报

1万

帖子

0

原创值

9607

金币

论坛元老

掰子姐

Rank: 15Rank: 15Rank: 15Rank: 15Rank: 15

积分
11275

吃货社区居民社区明星忠实会员最爱沙发新人进步奖幽默大师奖贴图大师奖原创先锋奖金点子奖特殊贡献奖宣传大使奖优秀斑竹奖终身成就奖灌水天才奖社区劳模原创达人

发表于 2018-05-29 10:11:31 | 显示全部楼层
马铃儿 发表于 2018-5-28 17:53
清晨,第一缕金色的阳光透过挂着露珠的香樟树叶,洒在院墙上,百米外的百熙小学不时传来银铃般的童 ...

原来是旺总的大姨,欢迎欢迎,哈哈!!
回复 回复(1)条

使用道具 举报

40

帖子

0

原创值

121

金币

大二_装修学长

Rank: 2

积分
21
 楼主| 发表于 2018-05-29 12:23:19 | 显示全部楼层
大神来访,蓬荜生辉啊!
回复

使用道具 举报

40

帖子

0

原创值

121

金币

大二_装修学长

Rank: 2

积分
21
 楼主| 发表于 2018-05-29 12:23:44 | 显示全部楼层
叽歪 发表于 2018-5-29 10:11
原来是旺总的大姨,欢迎欢迎,哈哈!!


大神来访,蓬荜生辉啊!
回复

使用道具 举报

40

帖子

0

原创值

121

金币

大二_装修学长

Rank: 2

积分
21
 楼主| 发表于 2018-05-29 21:44:41 来自手机 | 显示全部楼层

定蓝图记

1527600243213_0.png

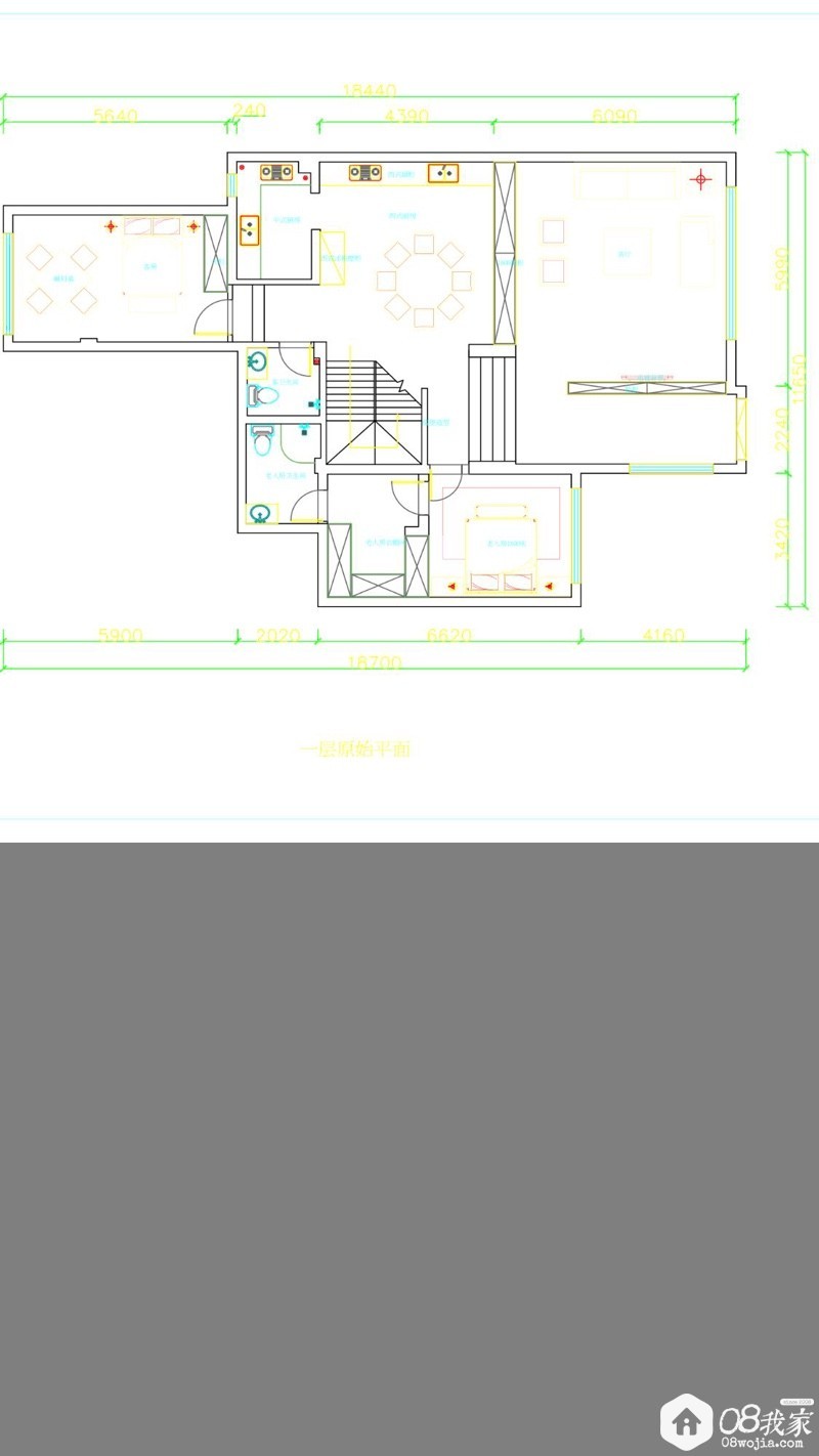
一楼平面图设计图:除了客厅、餐厅位置没有变,往错层餐厅的梯级位置挪了,入户门往外挪了,车库降下来一米多,共改出了两个卧室.
1527600766677_0.png

二楼平面设计图:填平了餐厅的挑空,封闭了露台和阳台,改出了四个带卫生间的套间和一个书房.
    至此,原来三个卧室都在二楼的三室二厅三卫,改成了六室三厅六卫,并且有两个卧室在一楼,可以供不愿爬楼梯的老人们住.
回复 收藏 回复(1)条

使用道具 举报

3992

帖子

0

原创值

8484

金币

荣誉版主

积分
2839

社区居民忠实会员社区劳模最爱沙发社区明星

发表于 2018-05-31 11:26:21 | 显示全部楼层
很久没看到如此行云流水的日记了····
回复 回复(1)条

使用道具 举报

4216

帖子

0

原创值

4306

金币

超级版主

Rank: 15Rank: 15Rank: 15Rank: 15Rank: 15

积分
2278

社区居民

发表于 2018-05-31 17:14:29 | 显示全部楼层
马铃儿 发表于 2018-5-29 21:44
一楼平面图设计图:除了客厅、餐厅位置没有变,往错层餐厅的梯级位置挪了,入户门往外挪了,车库降下来一 ...

谢谢分享,已推送至首页
QQ截图20180531171200.png


回复

使用道具 举报

2899

帖子

0

原创值

4223

金币

装修大学_博士生

Rank: 6Rank: 6

积分
1929

社区居民

发表于 2018-06-01 11:48:01 | 显示全部楼层
理工科女文笔真好。这样大的面积还是请多去邻居家实地看看已经装修好的,听听他们对房间使用和布局情况吧
回复 回复(1)条

使用道具 举报

40

帖子

0

原创值

121

金币

大二_装修学长

Rank: 2

积分
21
 楼主| 发表于 2018-06-02 12:02:08 | 显示全部楼层
乐喜 发表于 2018-6-1 11:48
理工科女文笔真好。这样大的面积还是请多去邻居家实地看看已经装修好的,听听他们对房间使用和布局情 ...

好的,工程庞大,压力不小,新中式or美式or地中海式,心里一直有15个吊桶在打水,所以,明天星期天,准备花一天时间参观我们08的网红队长涂队的别墅装修作品,请大家期待美图吧,我现在已经很憧憬了
回复

使用道具 举报

您需要登录后才可以回帖 登录 | 立即注册

本版积分规则