QQ登录    

08我家网

2023兔年大吉

[装修交流]无比郁闷中~~~~木工师父没找到

[复制链接]

129

帖子

0

原创值

10

金币

大三_装修里手

Rank: 3Rank: 3

积分
128

社区居民

发表于 2011-05-08 13:06:24 | 显示全部楼层 |阅读模式
我家现在已经进行到,瓷砖贴完,木工进场的地步,我家舅舅居然才说原先订的那个师父没空过不来了,没办法呀,只能另寻高手,但为什么高手这么难觅,而且高手为什么开价这么离谱!大家呀,如果有合适工期,合适价格的高手,请来找我吧。天啊,什么时候掉个木工师父让我捡到也好呀

129

帖子

0

原创值

10

金币

大三_装修里手

Rank: 3Rank: 3

积分
128

社区居民

 楼主| 发表于 2011-05-08 13:11:06 | 显示全部楼层
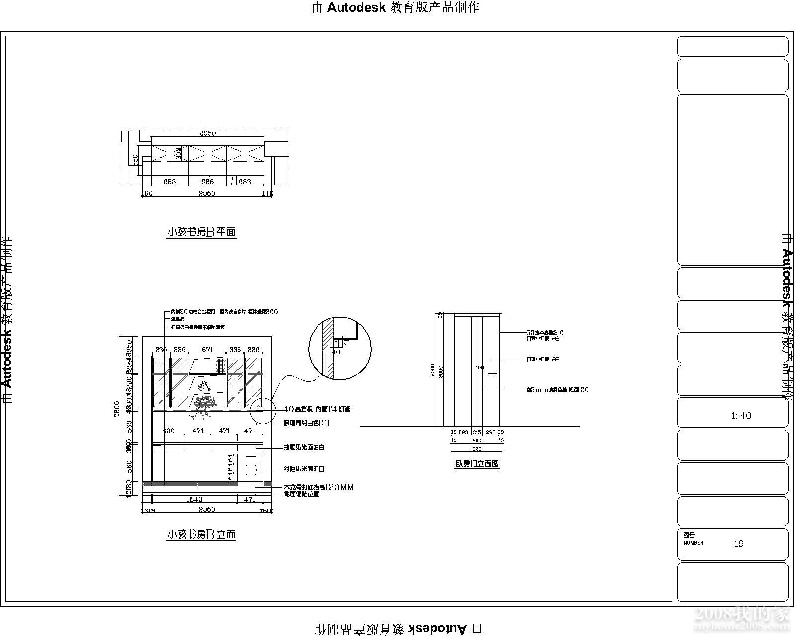
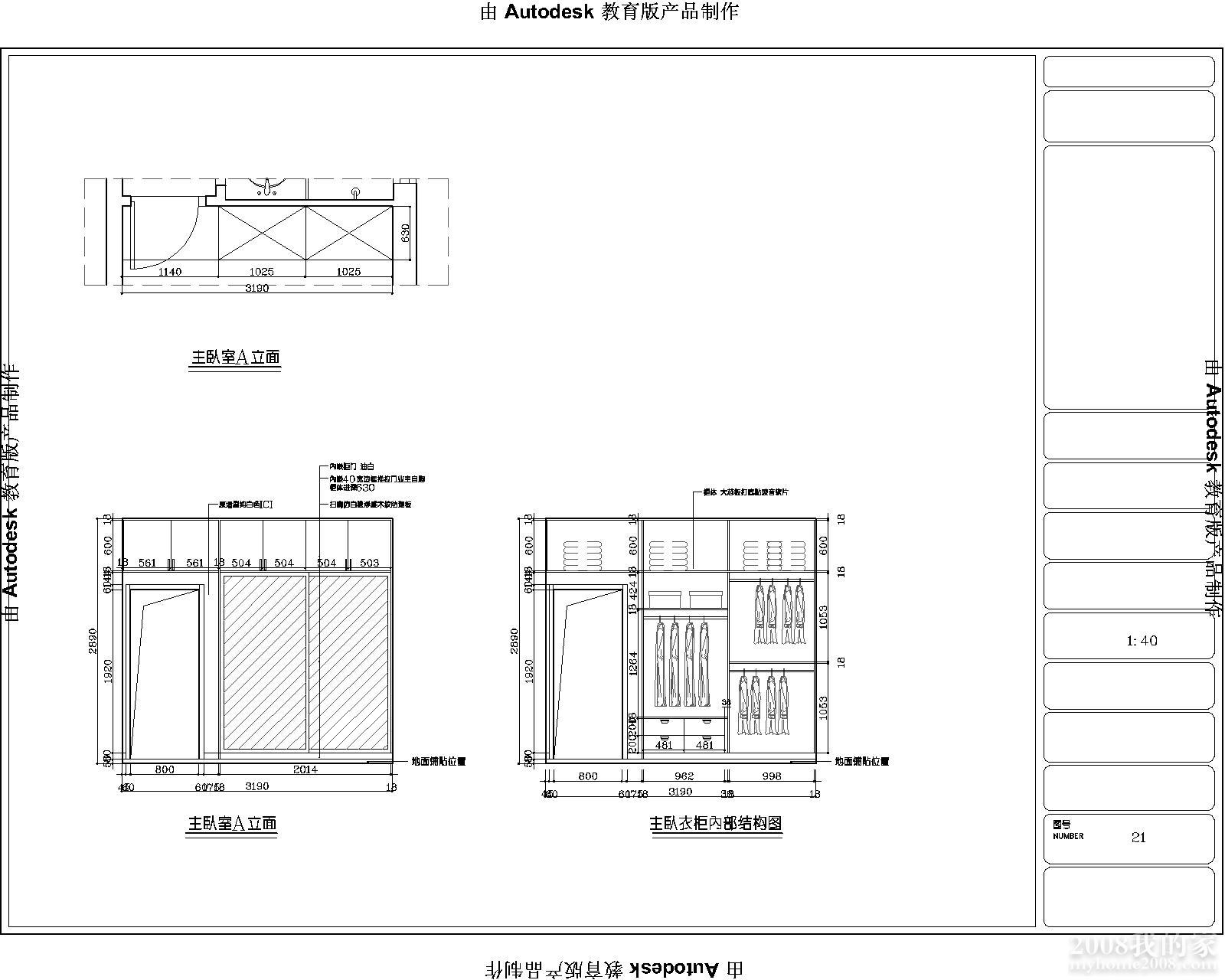
发下我家木工的施工图片,大家来帮我评评,木工这块,工资应该怎么算,谢谢!
湘江世纪城  施工图15.jpg
湘江世纪城  施工图17.jpg
湘江世纪城  施工图19.jpg
湘江世纪城  施工图21.jpg
湘江世纪城  施工图22.jpg
湘江世纪城  施工图-20.jpg
回复

使用道具 举报

129

帖子

0

原创值

10

金币

大三_装修里手

Rank: 3Rank: 3

积分
128

社区居民

 楼主| 发表于 2011-05-08 13:16:15 | 显示全部楼层
忘了说了,我家还有四个门要包门套,二个正规大小的门,二个比正常要大点的门哦,为什么没人答复我哦
回复

使用道具 举报

236

帖子

0

原创值

58

金币

大四_装修达人

Rank: 4

积分
223

社区居民

发表于 2011-05-08 13:27:38 | 显示全部楼层
我不会,友情回复下下
回复

使用道具 举报

49

帖子

0

原创值

3

金币

禁止发言

积分
5
发表于 2011-05-08 15:01:58 | 显示全部楼层
提示: 作者被禁止或删除 内容自动屏蔽
回复

使用道具 举报

7878

帖子

0

原创值

3159

金币

荣誉版主

积分
7785

社区居民社区明星终身成就奖宣传大使奖优秀斑竹奖原创先锋奖忠实会员最爱沙发社区劳模原创达人

发表于 2011-05-08 16:50:56 | 显示全部楼层
提醒楼主
08论坛与其他商业论坛有些区别
08论坛对于商家这块控制比较严格
我想论坛里潜着的商家有
但是潜着的装修师傅应该不多
所以楼主这么发帖难以找到木工

即便真有木工潜着
应该不会回复
而是会站内短消息联系楼主
楼主与其公开招聘木工
不如多看看清包TX的装修日记
自然会找到合适的木工
回复

使用道具 举报

129

帖子

0

原创值

10

金币

大三_装修里手

Rank: 3Rank: 3

积分
128

社区居民

 楼主| 发表于 2011-05-08 22:27:12 | 显示全部楼层
我看了很多篇日记,也知道很多手艺不错师父的电话,但是不是工期合不上,就是开价好高,我所不能承重的重中之重呀,哎
回复

使用道具 举报

20

帖子

0

原创值

5

金币

大二_装修学长

请问 为什么不能能站内短信

Rank: 2

积分
27
发表于 2011-05-25 16:13:53 | 显示全部楼层
可以把你知道的号码告诉我吗??谢谢
回复

使用道具 举报

35

帖子

0

原创值

1

金币

禁止发言

积分
4
发表于 2011-06-25 18:15:06 | 显示全部楼层
提示: 作者被禁止或删除 内容自动屏蔽
回复

使用道具 举报

您需要登录后才可以回帖 登录 | 立即注册

本版积分规则