QQ登录    

08我家网

2023兔年大吉

清包99平小三房 硬装预算6W 滚动直播中~~~~~~~~~~~

[复制链接]
  • 所在城市:
  • 所在小区:长盛岚庭
  •  
  • 装修类型:新房装修
  • 装修户型:三房
  •  
  • 装修方式:清包
  • 装修风格:现代简约
  •  
  • 装修预算:10万—20万
  • 开工时间:
  • 前期设计
  • 主体拆装
  • 水电
  • 泥工
  • 木工
  • 油漆
  • 成品安装
  • 软装配饰
  • 毕业
已装修历时5265

162

帖子

0

原创值

10

金币

大三_装修里手

Rank: 3Rank: 3

积分
151
发表于 2011-05-25 14:44:44 | 显示全部楼层 |阅读模式
               已经在08团泡了2、3月了,之前一直都是默默的观看着,默默的回应着,学习TX们的各种经验,其实内心很澎湃、很激动,一直很崇拜着清包,现在我的房子也交房了,看来之前的学习是必须的。
       小女子是新人来的,第一次发帖,如有什么不周到的,还请各位TX们,海涵、海涵~~~~~~~~~~~~~~~~~~~~~
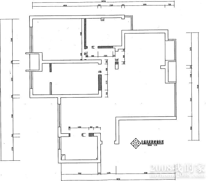
楼盘名称:长盛岚庭
        建筑面积:99平米
        户型:    三房两厅一卫内阳台(悲催的内阳台呀~)
        看看咱家的户型图吧~~

                设计师出来的平面图,因为是找好朋友设计的,没有出效果图,因为出效果图要米米,节约钱嘛,呵呵~
户型图-1.jpg
户型图.jpg

162

帖子

0

原创值

10

金币

大三_装修里手

Rank: 3Rank: 3

积分
151
 楼主| 发表于 2011-05-25 15:07:53 | 显示全部楼层
说起买房的经验,真的是呕心沥血的经验呀,09年就开始看房城南的房子被我们看了个遍,还前往去湘江世纪城,但我我们去的时候已经没有房源了  最开始看中的是中江.家境天城的房子,当时只要3600的均价,(还是二环内的)不限楼层不限楼,TX们,这是什么概念可想而知,然我们老板说(对房子很有研究,我认为)等一等,还会再降的,我们就鬼使神差的真的相信了,结果一个月不到立马涨1000/平,我那个痛呀~~  我只能捶胸,当时只能安慰自己说,咱与这房子无缘,算了吧~~~~~~  最终在10年1月17日选定了这套房子,直至2011年4月25日开交房。
回复

使用道具 举报

1467

帖子

0

原创值

103

金币

装修大学_研究生

Rank: 5Rank: 5

积分
1341

社区居民

发表于 2011-05-25 15:54:19 | 显示全部楼层
赶上直播了!
回复

使用道具 举报

162

帖子

0

原创值

10

金币

大三_装修里手

Rank: 3Rank: 3

积分
151
 楼主| 发表于 2011-05-25 16:03:19 | 显示全部楼层

回 2楼(昙昙) 的帖子

谢谢捧场,我真怕第一次发帖没人跟,那就真悲剧了。。。
回复

使用道具 举报

17

帖子

0

原创值

1

金币

大一_装修新生

Rank: 1

积分
17
发表于 2011-05-25 16:10:24 | 显示全部楼层
关注,美女,你有得辛苦了,勇敢的清包美女
回复

使用道具 举报

162

帖子

0

原创值

10

金币

大三_装修里手

Rank: 3Rank: 3

积分
151
 楼主| 发表于 2011-05-25 16:13:24 | 显示全部楼层
引用第4楼吃在长沙于2011-05-25 16:10发表的  :
关注,美女,你有得辛苦了,勇敢的清包美女
多多支持~~
回复

使用道具 举报

162

帖子

0

原创值

10

金币

大三_装修里手

Rank: 3Rank: 3

积分
151
 楼主| 发表于 2011-05-25 16:18:40 | 显示全部楼层

回 6楼(夏日阳光) 的帖子

广告也精彩?
回复

使用道具 举报

162

帖子

0

原创值

10

金币

大三_装修里手

Rank: 3Rank: 3

积分
151
 楼主| 发表于 2011-05-26 09:14:35 | 显示全部楼层
[这两天一直处在停歇的状态,因为水电工在其他地方还有最后一点没有完工,所以只能艰难的等待着。。。 5月22日进场,施工队放了鞭炮,水电工看了房子的结果,一起策了两小时才把材料单开出来(主要是房屋结构太纠结了),然后下午按单子去买了材料,等水电做完才一起上价格吧 前两天老公去订了迅达的厨房家电,因为有熟人,可以知道到长沙分公司开单、拿货 (分公司的人说我们太会选了,选的都是今年的新款,还是选最贵的,哈哈)本来纠结要不要买消毒柜的,昨天又去看了整体橱柜,算来算去还是买消毒柜划得来,所以今天就再去开个消毒柜的单,顺便把橱柜给订了~ 反正闲着也是闲着,先上上我喜欢的风格给各位看看吧~
餐厅.jpg
回复

使用道具 举报

162

帖子

0

原创值

10

金币

大三_装修里手

Rank: 3Rank: 3

积分
151
 楼主| 发表于 2011-05-26 09:17:18 | 显示全部楼层
解解馋吧~~~

超喜欢的墙壁颜色

超喜欢的墙壁颜色
T1H_4_XmpxXXaH_X6X.jpg
T1hKd_Xm8uXXaH_X6X.jpg

背景~~

背景~~
T1jg04XXFtXXaH_X6X.jpg
T1JYl5Xh0qXXaH_X6X.jpg
T1kWR5Xl8vXXaH_X6X.jpg
T1nEX4Xe8rXXaH_X6X.jpg
T1qFqXXfFzXXaH_X6X.jpg
回复

使用道具 举报

162

帖子

0

原创值

10

金币

大三_装修里手

Rank: 3Rank: 3

积分
151
 楼主| 发表于 2011-05-27 09:23:46 | 显示全部楼层
水电现在还没有进展,昨天中午去预定了橱柜,马王堆随便开价就是1350/套米或者1250/套米,咱家那厨房要4.5个套米了,感觉有些吃不消了~~~ 同事介绍我一家做橱柜的,远是确实有蛮远拉,不过价格确实比较便宜了,这是我看到的最便宜的一家了,石英石台面,贴皮的饰面板,因为设计师让我们选贴皮的饰面板,如果选实木的,咱可耗不起~~~   顶固的配件,杉木指接板,材料可是相当好的哟!!!!老板人非常好,比较老实,我们本来水电就进场了,所以比较急,要赶紧出厨房水电图纸,然后昨天下午老板就去我家量房了~~
回复

使用道具 举报

您需要登录后才可以回帖 登录 | 立即注册

本版积分规则