QQ登录    

08我家网

2023兔年大吉

装修回忆录——2011年送给家人的乐居之所

[复制链接]

711

帖子

0

原创值

90

金币

装修大学_研究生

Rank: 5Rank: 5

积分
1044

社区居民

 楼主| 发表于 2011-11-18 23:08:12 | 显示全部楼层
装修公司基本敲定的话,按照惯例,接下来应该就是谈优惠和折扣什么的了。可是,在他家我怎么就忘记了呢?我怎么就忘记了要使劲策尽可能多的优惠呢。
幸好,还有个家博会的优惠套餐,反正尽可能的把可以享受的优惠都给签上。
首先,是设计费打折加减现。最终,将各种优惠方案用下来,我家的设计费大概合50一平,真的不便宜啦。
不过,关于这个设计费,我还是认为是整个装修里最最不该省的。
至少,5年前的那次的简约装修,我最最满意的还是坚持选了那个设计师。家里的空间布局,墙面利用以及收纳的完美结合,还有整体风格的把握等等方面都不是我们非专业人士所能比的。虽然这么多年过去了,至少,最近那些第一次来我家的朋友都还在夸我家的装修很清爽和舒适。至少,经得起时间的考验,而且这么多年了,自己还没有审美疲劳。
回复

使用道具 举报

711

帖子

0

原创值

90

金币

装修大学_研究生

Rank: 5Rank: 5

积分
1044

社区居民

 楼主| 发表于 2011-11-18 23:18:26 | 显示全部楼层
晒晒小区的环境
小区环境2.jpg


小区环境3.jpg


小区环境5.jpg


小区环境1.jpg
回复

使用道具 举报

711

帖子

0

原创值

90

金币

装修大学_研究生

Rank: 5Rank: 5

积分
1044

社区居民

 楼主| 发表于 2011-11-18 23:19:12 | 显示全部楼层
引用第9楼广仔于2011-11-18 08:52发表的  :
http://www.08wojia.com/thread-6421-1-1.html    如何搭电梯

上传图片,用相机拍下来的图片空间比较大,上传不了。
你可以通过QQ截图重新保存,截图下来的图片空间小了很多,可以顺利上传的。  

谢谢广仔大大 正在努力研究学习
回复

使用道具 举报

711

帖子

0

原创值

90

金币

装修大学_研究生

Rank: 5Rank: 5

积分
1044

社区居民

 楼主| 发表于 2011-11-18 23:49:11 | 显示全部楼层
设计师和装修公司敲定以后
接下来就是量房,做平面方案还有设计出图
这个过程
彼此的沟通真的很重要很重要
各个细节
自己和家人的生活习惯
以及住家的常住人口的各种需求都要让设计师清楚地知道

但是不要直接去和设计师说
想要怎么来安排这些空间啥的
回复

使用道具 举报

711

帖子

0

原创值

90

金币

装修大学_研究生

Rank: 5Rank: 5

积分
1044

社区居民

 楼主| 发表于 2011-11-19 23:31:34 | 显示全部楼层
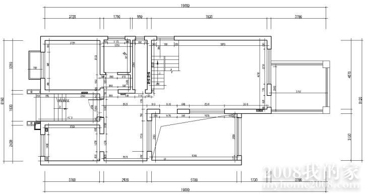
原始户型图上来看看
上南下北
左东右西
大家将就看吧

因为进门的方向就是这样
也就不旋转过来看了
一楼
户型图1-3.jpg


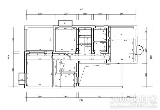
二楼
户型图2.jpg
回复

使用道具 举报

711

帖子

0

原创值

90

金币

装修大学_研究生

Rank: 5Rank: 5

积分
1044

社区居民

 楼主| 发表于 2011-11-19 23:57:43 | 显示全部楼层
照这个速度
我估计只有参加明年的日记大赛了

回复

使用道具 举报

711

帖子

0

原创值

90

金币

装修大学_研究生

Rank: 5Rank: 5

积分
1044

社区居民

 楼主| 发表于 2011-11-19 23:59:48 | 显示全部楼层
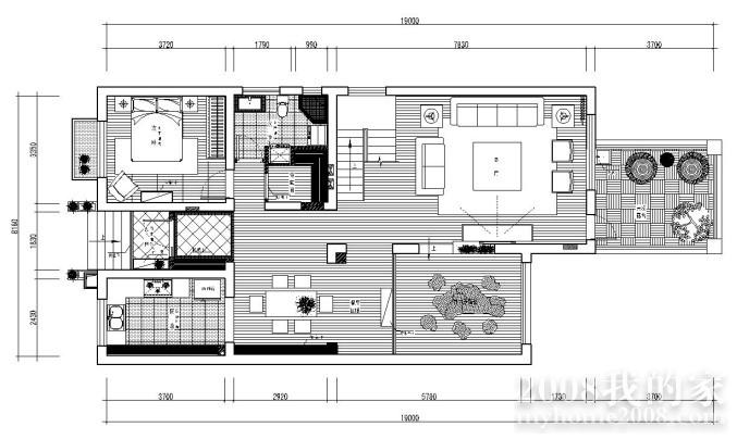
平面布置图

一楼

户型图1-2.jpg


二楼

户型图2-2.jpg
回复

使用道具 举报

711

帖子

0

原创值

90

金币

装修大学_研究生

Rank: 5Rank: 5

积分
1044

社区居民

 楼主| 发表于 2011-11-20 00:07:58 | 显示全部楼层
装修预算

设计方案出来后
设计师助手花了几天时间把我家预算方案做出来了
话说那天约好去看方案和预算

OMG
那个预算
直接把我家的硬装预算都花掉了
可是可是这还是半包的啊
我的主材还有厨卫米米到哪里去筹呢

只有叫设计师砍啊砍
把能不做的项目能不做的背景还有能不做的吊顶全部砍掉
总算预算下来了四分之一
感觉总算能够承受了
趁着公司统一上调价格之前把单给签了
回复

使用道具 举报

711

帖子

0

原创值

90

金币

装修大学_研究生

Rank: 5Rank: 5

积分
1044

社区居民

 楼主| 发表于 2011-11-20 00:10:21 | 显示全部楼层
签完单 其实我家还有土木需要先做的

要想开工 必须先收房

话说前面把验房报告交给物业以后

开发商把几个空鼓厉害的地方整改了

可是地面平整度超过3cm这个 他们坚持不改
咋办呢

这不是明摆着要我多出钱给装修公司找平?

那就去和物业和开发商策吧

策到他们出钱给装修公司找平也是个办法

可是 我和布袋天生就不善于策价啥的

最后最后反复努力才策到免一个月物业管理费

哪里够给装修公司加的找平费用呀

不过 有总比没有好的
回复

使用道具 举报

711

帖子

0

原创值

90

金币

装修大学_研究生

Rank: 5Rank: 5

积分
1044

社区居民

 楼主| 发表于 2011-11-20 00:26:29 | 显示全部楼层
土建1.jpg



土建2.jpg


土建3.jpg


土建4.jpg


土建5.jpg


土建6.jpg



为什么图片大小不一样呢?

这个土建工程不是装修公司搞的
是专门在小区里搞搭建的哥们给弄的
但愿安全可靠
回复

使用道具 举报

您需要登录后才可以回帖 登录 | 立即注册

本版积分规则