|
[paragraph] 前言
在写这篇日记之前,本人纠结了很久。 因为加入零八这个大家庭时间不是很长,只有短短的一个月样子,还在犹豫要不要写点啥的。但是一想到零八坛子里那些曾经帮助过我这个新人的TX们,泪奔了! 我感谢那些指教过我帮助过我的TX们! 我想也该写点什么,或者分享一下我的经历与大家交流一下经验,希望也能帮助那些刚刚加入这个大家庭的TX们。 OK,废话少说,装修终于在今天上午开始架场了,(具体时间不知道,师傅比我要早到,嘿嘿!)我也开始下水了。
温馨提示:
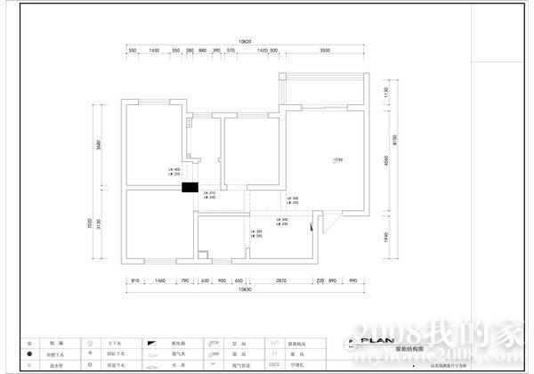
欢迎搭乘本次观光电梯,风景不好请轻拍!1、户型图 ---------------------------2楼。 2、水电改造 ------------------------13楼。 3、厨房靓照 ------------------------23楼。 4、厕所风景 ------------------------25楼。 5、简单木工 ------------------------28楼。 6、批墙图 --------------------------91楼。 7、衣柜篇 --------------------------93楼。 8、衣柜门 --------------------------94楼。 9、地板 ----------------------------95楼。 10、墙纸------------------------96-97 楼。 11、实用晾衣架 ---------------------98楼。 12、简约灯饰 ----------------------100楼。 13、客厅 --------------------------102楼。 14、电视背景 ----------------------103楼。 15、餐厅 --------------------------104楼。 16、厨房 --------------------------105楼。 17、书房 --------------------------107楼。 18、简单次卧 ----------------------108楼。 19、主卧 --------------------------109楼。 20、过道 --------------------------111楼。
|