QQ登录    

08我家网

2023兔年大吉

千呼万唤始出来-----我的最爱.美家开装

[复制链接]

7

帖子

0

原创值

2

金币

大一_装修新生

Rank: 1

积分
5
发表于 2011-11-25 11:21:18 | 显示全部楼层
     祝福楼主装修顺利
回复

使用道具 举报

359

帖子

0

原创值

231

金币

大四_装修达人

Rank: 4

积分
333

社区居民社区明星

发表于 2011-11-25 12:09:21 | 显示全部楼层
看看
回复

使用道具 举报

359

帖子

0

原创值

231

金币

大四_装修达人

Rank: 4

积分
333

社区居民社区明星

发表于 2011-11-25 12:17:34 | 显示全部楼层

回 8楼(空空空心菜) 的帖子

我会关注你的,我准备明年装修。
回复

使用道具 举报

76

帖子

0

原创值

10

金币

大三_装修里手

Rank: 3Rank: 3

积分
72
 楼主| 发表于 2011-11-25 12:56:29 | 显示全部楼层

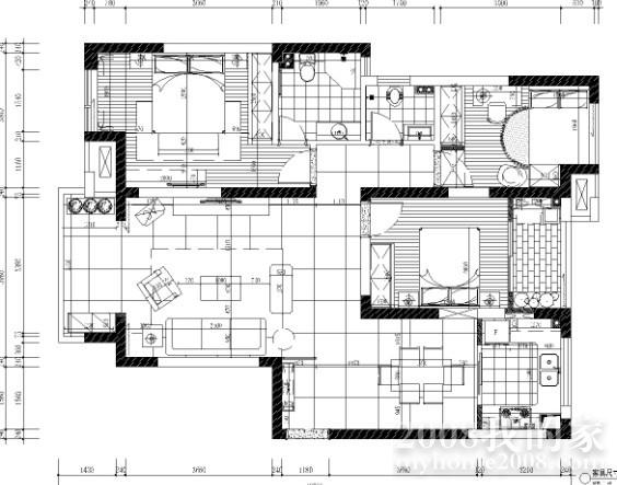
户型图

户型图
呵呵有人看了就先上个户型图,晚上再上更多。。。。
回复

使用道具 举报

76

帖子

0

原创值

10

金币

大三_装修里手

Rank: 3Rank: 3

积分
72
 楼主| 发表于 2011-11-25 12:57:02 | 显示全部楼层

回 13楼(yuehua妮子) 的帖子

呵呵,谢谢关注,一起探讨,一起进步哈
回复

使用道具 举报

2

帖子

0

原创值

2

金币

大一_装修新生

Rank: 1

积分
2
发表于 2011-11-25 13:26:43 | 显示全部楼层
和保利麓谷89的户型很像
回复

使用道具 举报

60

帖子

0

原创值

55

金币

大三_装修里手

Rank: 3Rank: 3

积分
77
发表于 2011-11-25 14:06:24 | 显示全部楼层
回复

使用道具 举报

22

帖子

0

原创值

3

金币

大二_装修学长

长沙网站制作 &nb

Rank: 2

积分
21
发表于 2011-11-25 14:34:25 | 显示全部楼层
速度也快啦 现在快要过年了 装修也开始冷了
回复

使用道具 举报

76

帖子

0

原创值

10

金币

大三_装修里手

Rank: 3Rank: 3

积分
72
 楼主| 发表于 2011-11-25 15:54:34 | 显示全部楼层
平面图:

未命名.jpg
呵呵,改动不少,两飘窗敲了,儿童房做榻榻米,生活阳台缩小把面积腾出给次卧,餐厅也挪了些空间到厨房,改动的都是钱啊
回复

使用道具 举报

76

帖子

0

原创值

10

金币

大三_装修里手

Rank: 3Rank: 3

积分
72
 楼主| 发表于 2011-11-25 16:12:39 | 显示全部楼层
国庆的时候定了安泊橱柜,不巧又赶上了赤那开了安泊的团,哈哈,又得了个团购价,附设计师刚出的平面图,基本满意

未命名.jpg
回复

使用道具 举报

您需要登录后才可以回帖 登录 | 立即注册

本版积分规则