QQ登录    

08我家网

2023兔年大吉

阳光温馨小窝筑巢记--看见云开了希望接下来就是月明了

[复制链接]

354

帖子

0

原创值

11

金币

大四_装修达人

Rank: 4

积分
324

社区居民

发表于 2012-03-29 10:39:03 | 显示全部楼层
邻居,我们两家结构一样啊。周日去物业第一次看到你家那栋楼,位置好啊。
回复

使用道具 举报

354

帖子

0

原创值

11

金币

大四_装修达人

Rank: 4

积分
324

社区居民

发表于 2012-03-29 10:39:52 | 显示全部楼层
看了你的价格,我家要是晚点装就可以一起买了。现在我家就剩灯了。
回复

使用道具 举报

4

帖子

0

原创值

2

金币

大一_装修新生

Rank: 1

积分
3
发表于 2012-03-29 10:54:05 | 显示全部楼层
回复看看
回复

使用道具 举报

865

帖子

0

原创值

215

金币

装修大学_研究生

Rank: 5Rank: 5

积分
970

社区居民忠实会员

发表于 2012-03-29 12:44:24 | 显示全部楼层
开工了没啊
回复

使用道具 举报

1467

帖子

0

原创值

103

金币

装修大学_研究生

Rank: 5Rank: 5

积分
1341

社区居民

 楼主| 发表于 2012-03-30 22:13:54 | 显示全部楼层
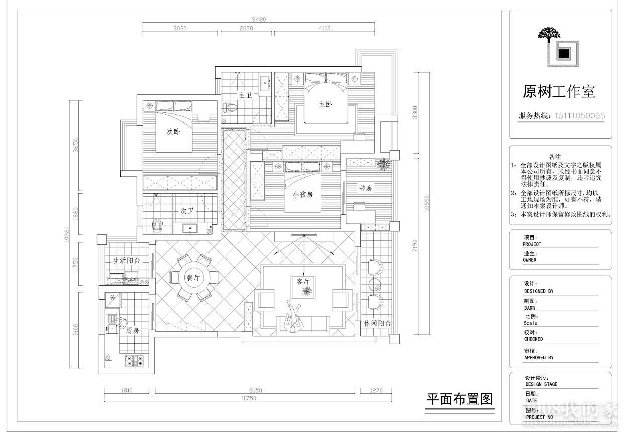
上次的平面图,大家给的意见是柜子太少,小孩床的床头跟客厅电视机共一面墙,最终定稿:
旋转 保利花园(潭姐)-Model.jpg
回复

使用道具 举报

1467

帖子

0

原创值

103

金币

装修大学_研究生

Rank: 5Rank: 5

积分
1341

社区居民

 楼主| 发表于 2012-03-30 22:14:52 | 显示全部楼层
大家给点意见啊!!!!!
回复

使用道具 举报

574

帖子

0

原创值

200

金币

装修大学_研究生

Rank: 5Rank: 5

积分
570

社区居民忠实会员社区明星

发表于 2012-03-30 22:21:14 | 显示全部楼层
顶啊!!政治任务!!!!!!!!
回复

使用道具 举报

166

帖子

0

原创值

147

金币

大三_装修里手

Rank: 3Rank: 3

积分
124

社区居民

发表于 2012-03-30 22:24:53 | 显示全部楼层
羡慕嫉妒恨,这么大的餐厅和厨房。。。。。。
你厨房为什么没做成U型??
回复

使用道具 举报

239

帖子

0

原创值

45

金币

大四_装修达人

Rank: 4

积分
226

社区居民

发表于 2012-03-30 22:37:23 | 显示全部楼层
坐等豪宅施工图。。。
回复

使用道具 举报

371

帖子

0

原创值

275

金币

大四_装修达人

装修要吃得苦,耐得烦!

Rank: 4

积分
353

社区居民

发表于 2012-03-30 22:46:58 | 显示全部楼层
又有个要圆餐桌的了 哈哈
回复

使用道具 举报

您需要登录后才可以回帖 登录 | 立即注册

本版积分规则