QQ登录    

08我家网

2023兔年大吉

阳光温馨小窝筑巢记--看见云开了希望接下来就是月明了

[复制链接]

215

帖子

0

原创值

71

金币

大四_装修达人

Rank: 4

积分
200

社区居民

发表于 2012-04-19 08:41:18 | 显示全部楼层
昙昙,优派,硅藻泥都超有兴趣的说
回复

使用道具 举报

328

帖子

0

原创值

5

金币

大四_装修达人

Rank: 4

积分
297

社区居民

发表于 2012-04-19 09:01:56 | 显示全部楼层
贴子实用,学习学习。
回复

使用道具 举报

115

帖子

0

原创值

96

金币

大三_装修里手

Rank: 3Rank: 3

积分
120

社区居民

发表于 2012-04-20 00:07:45 | 显示全部楼层
对富林地板感兴趣,但是周末有事不能去啊,能直接吃拌片不
回复

使用道具 举报

110

帖子

0

原创值

344

金币

大三_装修里手

科技创造未来.&#46

Rank: 3Rank: 3

积分
98

社区居民忠实会员

发表于 2012-04-20 01:17:17 | 显示全部楼层
来支持一下小昙!
回复

使用道具 举报

1467

帖子

0

原创值

103

金币

装修大学_研究生

Rank: 5Rank: 5

积分
1341

社区居民

 楼主| 发表于 2012-04-21 21:56:00 | 显示全部楼层
       硅藻泥确实是个好东西,高桥居然到处充满的刺鼻的气味,但是克洛斯威硅藻泥却没有什么气味。东西是个好东西,但是价格友情价都不便宜阿!
      
回复

使用道具 举报

2167

帖子

0

原创值

1313

金币

装修大学_博士生

Rank: 6Rank: 6

积分
1975

吃货社区居民忠实会员社区劳模最爱沙发

发表于 2012-04-21 22:06:14 | 显示全部楼层
好贴必跟!!!我也要铝合金门!
回复

使用道具 举报

1467

帖子

0

原创值

103

金币

装修大学_研究生

Rank: 5Rank: 5

积分
1341

社区居民

 楼主| 发表于 2012-04-22 21:12:21 | 显示全部楼层
       因为儿子喜欢卡乐屋的丛林迷踪系列,所以需要转掉松堡王国订单一张,折扣是龙猫团购折扣,但是因为我把赠品的小凳子策成了书桌凳,所以相对来说,折扣是更加低点的。
回复

使用道具 举报

1467

帖子

0

原创值

103

金币

装修大学_研究生

Rank: 5Rank: 5

积分
1341

社区居民

 楼主| 发表于 2012-04-23 08:11:07 | 显示全部楼层
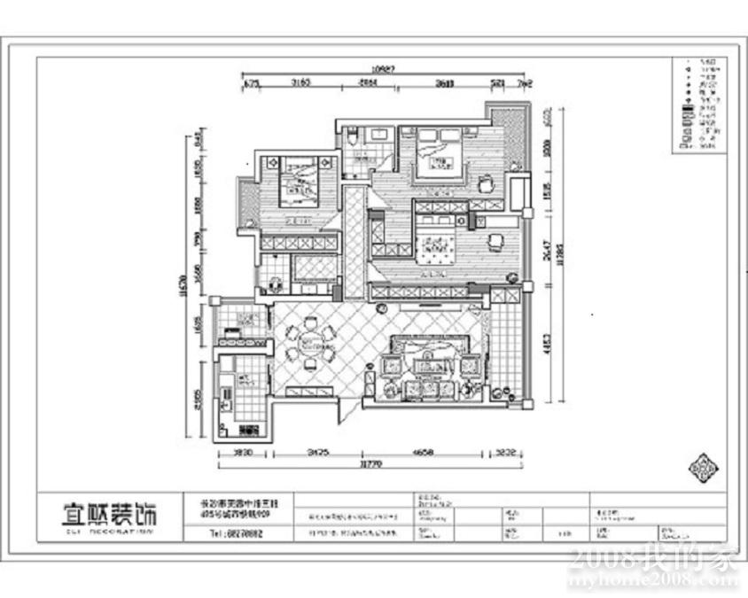
       下面这个图是我邻居闪灵的画的,因为我要求柜子要做多,他大胆的想到把原本不在一个水平面的参客厅改成在一条直线上面,但是客厅的宽由4200变成了3900,不知道用起来会不会太小。
回复

使用道具 举报

1467

帖子

0

原创值

103

金币

装修大学_研究生

Rank: 5Rank: 5

积分
1341

社区居民

 楼主| 发表于 2012-04-23 08:16:34 | 显示全部楼层
保利昙姐001-Model.jpg
回复

使用道具 举报

1467

帖子

0

原创值

103

金币

装修大学_研究生

Rank: 5Rank: 5

积分
1341

社区居民

 楼主| 发表于 2012-04-23 08:22:08 | 显示全部楼层
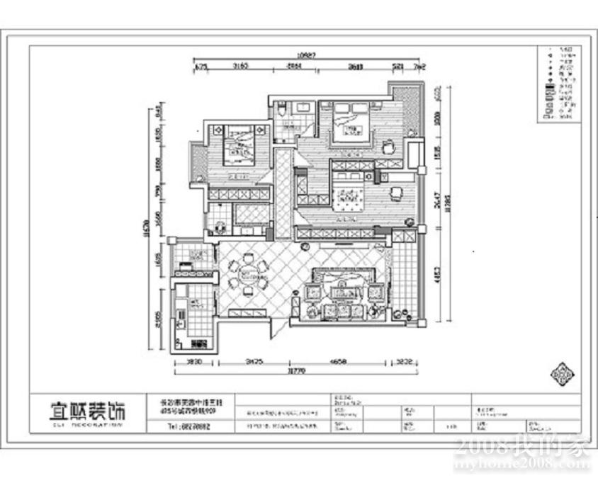
保利昙姐001-Model.jpg
沙发到电视剧柜的距离还有2722,短不短啊?
回复

使用道具 举报

您需要登录后才可以回帖 登录 | 立即注册

本版积分规则