QQ登录    

08我家网

2023兔年大吉

燕子的装修之旅   纠结中启程

[复制链接]
  • 所在城市:长沙
  • 所在小区:保利麓谷林语
  •  
  • 装修类型:新房装修
  • 装修户型:四房
  •  
  • 装修方式:清包
  • 装修风格:现代简约
  •  
  • 装修预算:10万—20万
  • 开工时间:2012-01-01
  • 前期设计
  • 主体拆装
  • 水电
  • 泥工
  • 木工
  • 油漆
  • 成品安装
  • 软装配饰
  • 毕业
已装修历时5045

83

帖子

0

原创值

61

金币

大三_装修里手

Rank: 3Rank: 3

积分
89

社区居民

发表于 2011-12-28 19:42:29 | 显示全部楼层 |阅读模式
   房子是2010年8月买的,陪朋友看房子,大热的天气看着售楼员忙上忙下,穿着高跟鞋带我们看完样板房又看工地,而朋友看完一直犹豫,售楼员的服务热情得让我们觉得不买一套回去都有点不好意思 ,(本人买衣服也是这样,往住试了几件衣服后,老板很热情的话,就是不是很喜欢,也得买一件,总觉得不好意思)结果当天我和老公就付了定金。当然还有一个原因就是很喜欢样板房的这套户型,小区的环境,配套和明德中学。
   今天12.28收房,早早就起了床,和老公一起兴致勃勃地去小区了。到了现场,服务人员递过来一杯热腾腾的姜汤,还有桌面上的水果,点心,感觉心里暖暖的,保利真的还是不错的。感觉和上次商铺的收房心情完全不一样,毕竟还是有一点点央企风范,呵呵!
   从去年买到这套房子起,我就一直学习装修,去了N次建材市场,家具市场,学习各大论坛的装修日记,在网上看完了08年到11年全集的交换空间的节目,去一期同户型正在装修的邻居家看了N次,周旋于各个工头,师傅和装修公司,设计师之间,在这段时间让我学会了淘宝,并且一发不可收拾,两个月时间,就升级到了黄金会员,学会了在08潜水,吸取前人的知识。认真学习了地雷,听雨,异异,听雨,单单……的装修日记,总知还是有收获的,感谢。从小白到现在小懂,上个月有一天我到小区正在装修的房子里看别人家师傅的手艺,和师傅交谈了下,临走,师傅问了句,“你不会是别家公司的设计师吧,怎么我们做的什么你这么清楚呢!一般的业主就只知道问,不懂的,” 我再次说明了我是隔壁栋的业主,是来看哪家工艺好,提前请人的。师傅还是将信将疑,我心里喜滋滋的,看来这一年的学习没有白费,呵呵,师傅都认为我是设计师了。感谢08
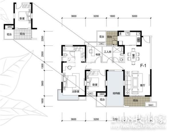
    我的户型图 户型图.jpg
户型图0.jpg


交房前的这段时间总能接到各个装修公司的电话 ,免费量房,出设计,预算,我是经不住策的人,答应了三个装修公司,分别有三个设计师来量房,出了预算,最终还是感觉MD的一个帅哥设计师蛮不错的,家博会那天被他们策到了现场,交了500定金,(没退的)拿到了三个方案的平面图和预算,其实是不想交的,但是没办法,谁叫这么心软呢,后来 两家的预算都差不多,除了公摊我的这套房子的得房面积120平方,半包价格是5W,全包8.5W。我拿着这个500元买的预算和别的公司对比了下,拿回家研究又研究,连晚上做梦都是房子装修的事,老公看着我的痴迷程度,咧开大嘴笑,他说我走火入魔了。呵呵!最终决定还是自己清包+散包。虽然累点,而且极有可能比装修公司的预算要高,但是值,用的材料也要真,因为工作比较自由,这次装修本人打算自己全程负责,自己买材料,装修开工后每天都泡在工地上。从小到大没独立操办过一件事,生活上不要操心任何事,同学好友们都说我是命好的糊涂虫,呵呵!为了这梦想的家,不管多累我会坚持下来的,为了我的幸福小家。
     明天电工师傅就会过来了,会开好材料单,一个在佛山古镇灯具厂当经理的好友答应我算好后,就给我发插板,开关,面板,筒灯等等这些DD来呢,免费的,好同学啊,第一套房子装修的灯具全是他免费送给我的。感谢!等着1月1号开工呢,现在等着刮风下雨天,看门窗有没有漏水现象,墙面,地面都就叫验房的朋友检查过了,房子质量还不错。
   前段时间纠结过两件事情,1  板材是在市场上买E0级的万象板材,还是买淘宝凤凰山的无甲醛实木指接板,
                        2   客餐厅是用格力的中央空调还是柜机,大家可以在户型图上看到如果放柜机,就是在沙发边,我喜欢 两人贵妃位  沙发,那个空调柜机占了我一个贵妃位的空间。  本来跟了谢赤那的格力风管机团的。5000元可以跟团搞定,
                            凤凰山的 那个板子真是贵啊,纠结了好几个晚上,老公笑我有一天晚上做梦都在说 到底买哪种板子喽,呵呵,最终在11月份凤凰山搞活动时付了500元定金(也是没退的),25号打算要他们发货了,2个立方,1.2*2.4的板子39张,共计约14000元。偏偏在前天晚上老公接到老家一个电话 ,家里有事要取2W元,哎,把我的板子和格力风管机预算打破了,不能买了,哎……再次应验了 人算不如天算啊!希望凤凰山的老板能把我的500退还给我,或还有哪位TX想要,我低价转让。这500元定金是长期有效的。想看报价单的,在隐藏里,尊重商家。 长沙 刘女士 价格清单2.jpg

      不知大家了解硅藻泥不,我是看一期交换空间有了初步认识的,上半年老公表姐家装修,我陪她买建材,在郁金香建材市场进一步了解了硅藻泥,大津的,环保,调湿,释放负离子,真的很好,不管是不是真的,但是我是死心踏地的信了,但是看了一下价格,也很好,平均200/平,让我望洋兴叹。 又不想放弃这么好的DD,回家打开电脑,大家不是都说还有万能的淘宝吗,输入硅藻泥,哇,好多,价格低多了,对比了很久,在正然干涂和樱花中做选择,最终选择了正然,一是因为他家产品销量第一,二是因为有个客服MM也是长沙的,服务好,她自家装修墙面就是用的这个产品,还介绍了一个长沙的客户用了正然产品的,我看了样板墙,觉得和大津的也不差。所以购了约8千的正然墙面材料,昨天已经发货了,现在等着收货呢,希望施工后,产品不要让我失望。
http://bangpai.taobao.com/group/thread/12022-2960978-1.htm 这个贴子我觉得很好,要装修的TX一定要看看,一贴搞定墙面知识。
      和很多时尚的80后MM一样,我也喜欢亮晶晶的,闪闪的DD,这次装修我一定要用到 亮闪闪的马赛克,时尚的水晶灯, 镜面墙。灯 同学会发过来,镜面墙本地买,马赛克 建材市场上超贵,因为淘宝上瘾了,所以又网购了,要装修了,心情很激动,还没要泥工师傅算好面积,自己昨天已经 淘了12个平方,我想肯定有剩,到时多了就贴飘窗上吧!昨天也已经发货了,而且这次我选了一家11 月分刚开的店,还没信誉的,希望发过来,产品不要让我失望,不要让我对淘宝失望。
              今年预备年前搞好水电,最好天气充许的话,把厨卫的瓷砖也贴了, 在08了解到了威乐的热水循环系统,家里一定要装一个,各路建材团一定要叫上我啊!   

161

帖子

0

原创值

242

金币

大三_装修里手

这年头什么人都成了专家与领导者

Rank: 3Rank: 3

积分
158

社区居民

发表于 2011-12-28 22:09:22 | 显示全部楼层
支持一下邻居。。。
回复

使用道具 举报

83

帖子

0

原创值

61

金币

大三_装修里手

Rank: 3Rank: 3

积分
89

社区居民

 楼主| 发表于 2011-12-29 08:33:05 | 显示全部楼层
谢谢啊,我第一个回复的TX,感动中……
回复

使用道具 举报

83

帖子

0

原创值

61

金币

大三_装修里手

Rank: 3Rank: 3

积分
89

社区居民

 楼主| 发表于 2011-12-29 08:45:24 | 显示全部楼层
有谁告诉 我,为什么我发的图片都不显示,只有自己才能看得到,谢谢
回复

使用道具 举报

32

帖子

0

原创值

3

金币

大二_装修学长

Rank: 2

积分
29
发表于 2011-12-29 11:29:31 | 显示全部楼层
不懂诶!!!!!
回复

使用道具 举报

83

帖子

0

原创值

61

金币

大三_装修里手

Rank: 3Rank: 3

积分
89

社区居民

 楼主| 发表于 2012-01-02 09:46:39 | 显示全部楼层
受打击啊,兴致勃勃地开始写装修日记,可是图片显示不了,
再传一次,
户型图.jpg
户型图0.jpg
回复

使用道具 举报

83

帖子

0

原创值

61

金币

大三_装修里手

Rank: 3Rank: 3

积分
89

社区居民

 楼主| 发表于 2012-01-02 09:54:42 | 显示全部楼层
户型图0.jpg
受打击啊,兴致勃勃开始我的装修日记,可是图片不能显示
再传一次
回复

使用道具 举报

4387

帖子

0

原创值

655

金币

装修大学_教授

Rank: 7Rank: 7Rank: 7

积分
4041

社区明星社区居民

发表于 2012-01-02 10:33:54 | 显示全部楼层
可能图片太大了
回复

使用道具 举报

29

帖子

0

原创值

0

金币

大二_装修学长

Rank: 2

积分
22
发表于 2012-01-02 16:38:32 | 显示全部楼层
每篇日记都看看了  写日记的不容易啊
回复

使用道具 举报

34

帖子

0

原创值

2

金币

大二_装修学长

Rank: 2

积分
28
发表于 2012-01-02 19:50:21 | 显示全部楼层
装修就是纠结啊  纠结
回复

使用道具 举报

您需要登录后才可以回帖 登录 | 立即注册

本版积分规则