QQ登录    

08我家网

2023兔年大吉

2012年到了,不管有木有船票,都要快乐装修(最后毕业照新鲜出炉,尽在904-907楼)

[复制链接]

18

帖子

0

原创值

7

金币

大一_装修新生

Rank: 1

积分
15
发表于 2012-04-23 18:33:12 | 显示全部楼层
恭喜lz完美收工。
效果不错,先说几个亮点:
1)客厅飘窗的光线和景观不错
2)衣柜实用漂亮
3)餐桌很艺术,厨房很方便
说说你心疼的沙发吧,确实是沙发尺寸买大了,rootcause是没有带着客厅尺寸去买家具哦,还是想办法换个沙发吧,或者把2人位的搬到主卧去用,另外买个款式协调的贵妃。或者移到飘窗那侧,飘窗的作用就是因为他存在,却很少有人爬上去,只要没遮住风景,放沙发挡住点没关系。书房的插座挡住了,是插座设计的问题,要先想好怎么放家具,再定插座的数量和位置。都是可以补救的小问题,没事的,be happy。
回复

使用道具 举报

888

帖子

0

原创值

206

金币

装修大学_研究生

Rank: 5Rank: 5

积分
822

社区居民

 楼主| 发表于 2012-04-23 18:39:13 | 显示全部楼层
(六十七)4月23日,厨房推拉门安装+雅祥布艺上门量尺
    昨天,爱家打电话说推拉门到了,今天中午来上门安装。之前还一直忐忑不安,想着1.4的宽度,两扇推拉门会不会惨不忍睹。没想到,比我想象的好许多,很满意。选的是最简单的款式。
推拉门.JPG
关门的样子。

推拉门2.JPG
开门之后,过道还剩下700宽,走人没问题,比想象要好看。

           下午,雅祥的向美女带着另外一美女上门量尺。希望能设计出物美价廉的款式!
  
回复

使用道具 举报

18

帖子

0

原创值

7

金币

大一_装修新生

Rank: 1

积分
15
发表于 2012-04-23 18:39:22 | 显示全部楼层
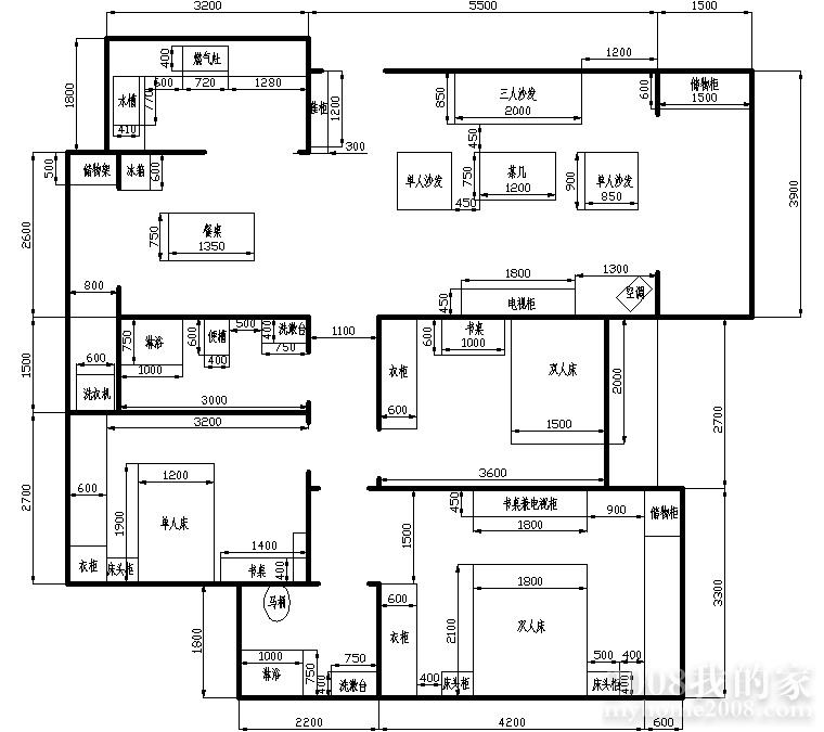
这是我装修前画的图,我就是靠这个买家具什么的,感觉很有帮助。要相信强大的工程师哦。
布局尺寸图.jpg
回复

使用道具 举报

18

帖子

0

原创值

7

金币

大一_装修新生

Rank: 1

积分
15
发表于 2012-04-23 18:53:11 | 显示全部楼层
推拉门可以,一般60cm是过人的要求,70合格了。觉得你的厨房最靓,像我这种好恰的人,觉得在自家厨房做饭吃占了家里幸福感的60%哦。你家沙发包裹感估计很好,看样子价格不菲。五一我回来看你们的新房子,有饭吃不?要你在自家厨房做的哦。
回复

使用道具 举报

18

帖子

0

原创值

7

金币

大一_装修新生

Rank: 1

积分
15
发表于 2012-04-23 18:54:31 | 显示全部楼层
看了你的装修历程,感动了。看来我也要写个什么《菜鸟低成本装修初探》,我现在不怎么玩游戏了,学会了灌水。
回复

使用道具 举报

169

帖子

0

原创值

30

金币

大三_装修里手

Rank: 3Rank: 3

积分
150

社区居民

发表于 2012-04-23 20:19:48 | 显示全部楼层
只有羡慕的份。
回复

使用道具 举报

169

帖子

0

原创值

30

金币

大三_装修里手

Rank: 3Rank: 3

积分
150

社区居民

发表于 2012-04-23 21:57:28 | 显示全部楼层
你不用羡慕我们哈,我把房子给你装就是了,熟门熟路。
请你当装修顾问,OK?
回复

使用道具 举报

195

帖子

0

原创值

185

金币

大三_装修里手

Rank: 3Rank: 3

积分
167

社区居民

发表于 2012-04-24 13:58:22 | 显示全部楼层
话说东方邦太的橱柜共计多少米米啊
回复

使用道具 举报

169

帖子

0

原创值

30

金币

大三_装修里手

Rank: 3Rank: 3

积分
150

社区居民

发表于 2012-04-24 22:09:56 | 显示全部楼层
顶下,东方邦太的橱柜,也短我下咯,我不晓得怎么短,也不晓得怎么收,试下,主要还是看下价格。
回复

使用道具 举报

169

帖子

0

原创值

30

金币

大三_装修里手

Rank: 3Rank: 3

积分
150

社区居民

发表于 2012-04-24 22:10:44 | 显示全部楼层
楼主,你家次卧进门的右边,是不是补平了??
回复

使用道具 举报

您需要登录后才可以回帖 登录 | 立即注册

本版积分规则