登录
|
立即注册
首页
装修交流
APP下载
微信公众号
搜索
搜索
本版
帖子
用户
装修学院
装修日记
装修交流
装修毕业照
建材团购
建材团购
二手转让
省钱情报
加入装修交流群
08我家网
»
装修交流
›
装修学院
›
装修交流
›
请大家帮我看看我的户型图设计
返回列表
[装修交流]
请大家帮我看看我的户型图设计
[复制链接]
sea1013snow
sea1013snow
当前离线
积分
118
133
帖子
0
原创值
91
金币
大三_装修里手
大三_装修里手, 积分 118, 距离下一级还需 82 积分
大三_装修里手, 积分 118, 距离下一级还需 82 积分
积分
118
关注
10
私信
发表于 2012-02-14 14:34:42
|
显示全部楼层
|
阅读模式
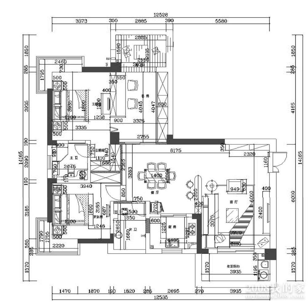
请大家帮我看看我的户型图设计,先上原始结构图
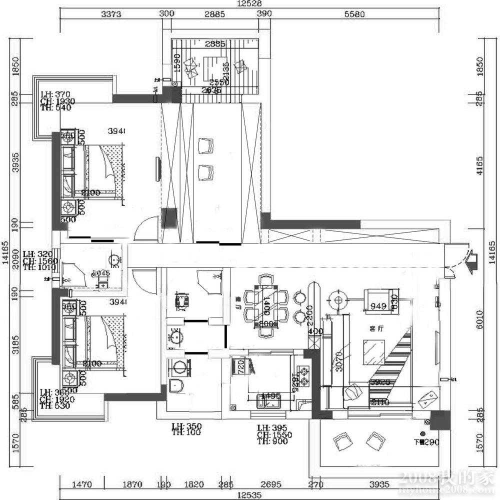
下面是我自己设计的图,请大家帮忙看看是否可行
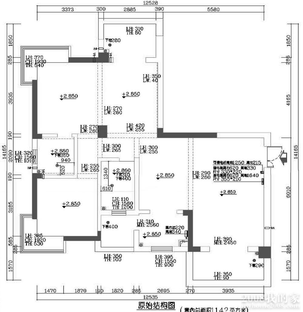
还有一个设计师帮我设计的
我觉得设计师的这个空间比较舒适比较大,但是有几点我不太满意的:
一是生活阳台没了,我只能到北客厅阳台晾晒,不方便
二是改动比较大,客卫的结构不好,一进去就是蹲坑
三是主卧从书房进去,我们父母都不在长沙,如果同时过来,住起来不太方便
希望有懂的朋友帮我看看,怎么设计比较合适
回复
使用道具
举报
提升卡
置顶卡
沉默卡
千斤顶
返回列表
高级模式
Smilies
您需要登录后才可以回帖
登录
|
立即注册
本版积分规则
发表回复
回帖后跳转到最后一页
浏览过的版块
二手交易淘
装修日记
往期团购
吃喝玩乐购
社区居民
拥有帐号并登录即可申请获得此勋章.