|
发表于 2012-02-26 12:40:07
|
显示全部楼层
引用第5楼原树于2012-02-26 00:15发表的 :
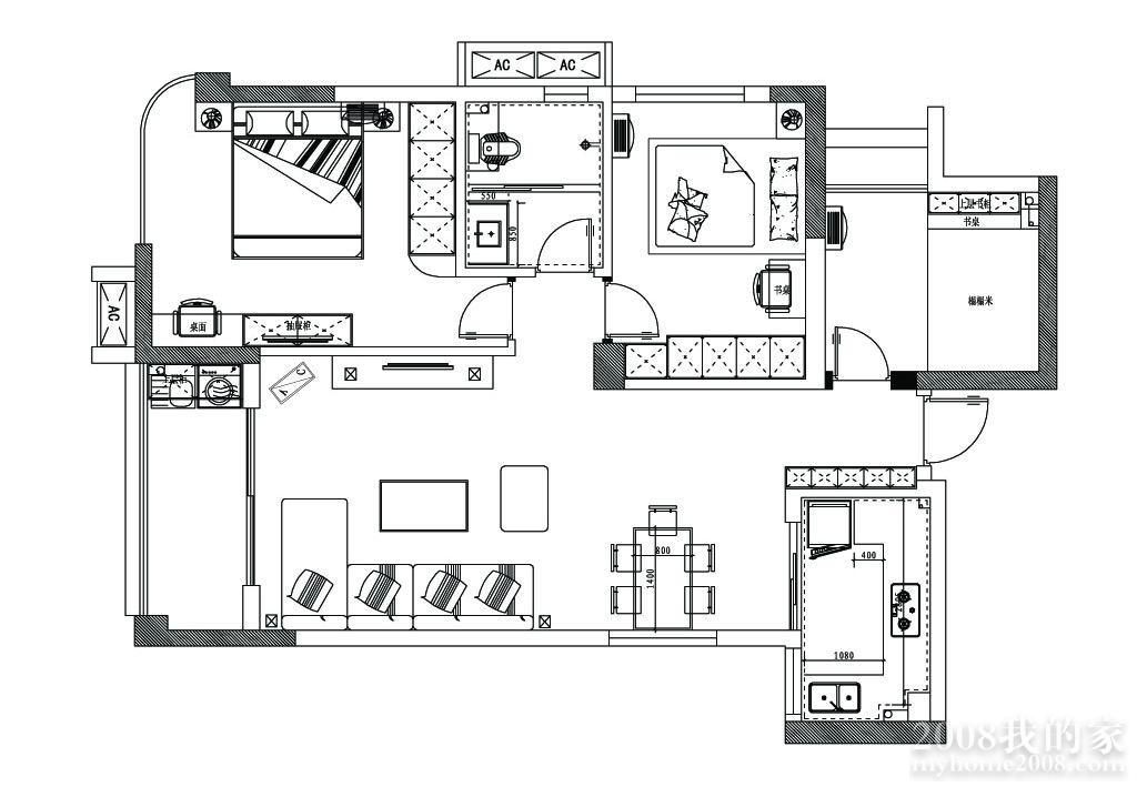
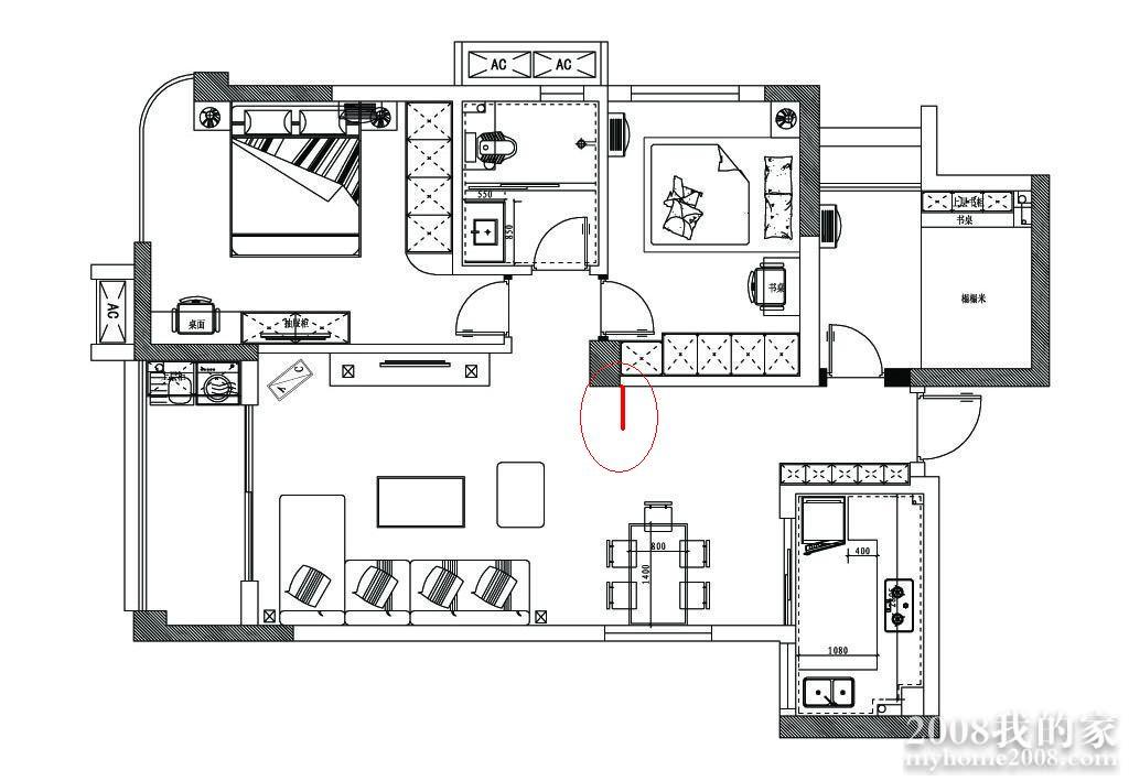
如果实在要加个玄关我这里有个建议,有优势和缺点,自己衡量一下,只做参考。缺点:1.会暂用一点次卧衣柜空间。2.踏踏米房间门往里面推。虽然使用功能上差不多,但会显得空间小了一点。3.鞋柜继续往里面推一点,厨房空间变动不大,但是鞋柜背板要处理好。优点:1.进门有个大大的入户门厅,玄关整个墙面的多边形做造型。显得整体大气。配上吊顶的灯,有点进入小豪宅的感觉。2.玄关后面可以连接一起做个很高的造型柜或造型酒柜,增大了储物功能。3.就是进门不会直视阳台看穿整个空间。 
我要表示,支持 原树的 方案。
柜子要多。没有储藏空间的家,都后面只会越来越乱,最终一切效果都是浮云。
次卧是小孩子房子吗? 如果是我家崽崽的床,我考虑靠墙也无妨。可以留出更大的空间给 小家伙 活动。 床放在卧室中间,3面剩下的就 只有过道了。感觉好看,却并不实用。。。。 靠墙未必就不好看了? 谁给种下的审美种子? 都是世俗的习惯,让人追求一些莫名的所谓合理。没有要。
|
|