QQ登录    

08我家网

2023兔年大吉

[装修交流]出了2个平面方案,请达人们给点意见

[复制链接]

387

帖子

0

原创值

542

金币

大四_装修达人

布布

Rank: 4

积分
411

社区居民

发表于 2012-03-11 19:32:23 | 显示全部楼层 |阅读模式
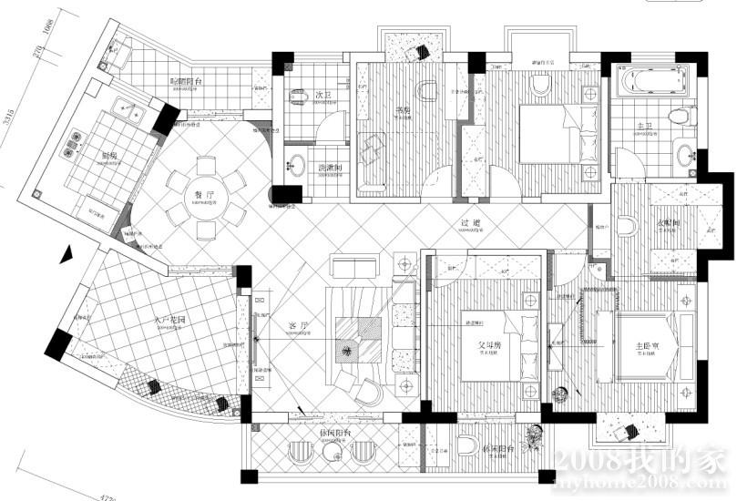
方案1.jpg


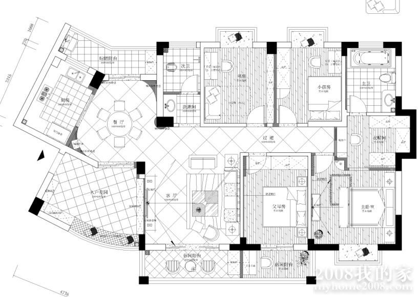
方案2.jpg

4387

帖子

0

原创值

655

金币

装修大学_教授

Rank: 7Rank: 7Rank: 7

积分
4041

社区明星社区居民

发表于 2012-03-11 23:43:58 | 显示全部楼层
我怎么觉得第二个方案的那个房间门和床重叠了,打得开吗?
回复

使用道具 举报

7878

帖子

0

原创值

3159

金币

荣誉版主

积分
7785

社区居民社区明星终身成就奖宣传大使奖优秀斑竹奖原创先锋奖忠实会员最爱沙发社区劳模原创达人

发表于 2012-03-12 22:14:52 | 显示全部楼层
只想说
有钱人
羡慕嫉妒恨
回复

使用道具 举报

7878

帖子

0

原创值

3159

金币

荣誉版主

积分
7785

社区居民社区明星终身成就奖宣传大使奖优秀斑竹奖原创先锋奖忠实会员最爱沙发社区劳模原创达人

发表于 2012-03-12 22:16:26 | 显示全部楼层
个人感觉书房不够大气
换个大书桌啊
另外浴缸不实用
绝对用的少
而且还要经常做卫生
回复

使用道具 举报

您需要登录后才可以回帖 登录 | 立即注册

本版积分规则