QQ登录    

08我家网

2023兔年大吉

[装修交流]橱柜平面图,请帮我看看吧

[复制链接]

387

帖子

0

原创值

542

金币

大四_装修达人

布布

Rank: 4

积分
411

社区居民

发表于 2012-03-15 15:42:15 | 显示全部楼层 |阅读模式
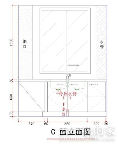
未命名.jpg
未命名1.jpg
未命名2.jpg
未命名3.jpg
未命名4.jpg
未命名5.jpg


请达人帮我看看咯,谢谢哒,我我觉得插座少了。。。。

7878

帖子

0

原创值

3159

金币

荣誉版主

积分
7785

社区居民社区明星终身成就奖宣传大使奖优秀斑竹奖原创先锋奖忠实会员最爱沙发社区劳模原创达人

发表于 2012-03-15 19:12:09 | 显示全部楼层
橱柜设计还是需要根据自己的生活习惯来设计吧
别人的意见只能作为参考啊
回复

使用道具 举报

236

帖子

0

原创值

146

金币

大三_装修里手

Rank: 3Rank: 3

积分
192

社区居民

发表于 2012-03-15 21:03:38 | 显示全部楼层
如果楼主做饭不多,或者消毒柜不经常用的话,可以加个开关来控制烟机和消毒柜。免得为节约用电把插头拔来拔去
回复

使用道具 举报

13

帖子

0

原创值

2

金币

大一_装修新生

Rank: 1

积分
11
发表于 2012-03-15 21:27:16 | 显示全部楼层
刚好要买橱柜,楼主能否把材质也填上做参考。
回复

使用道具 举报

920

帖子

0

原创值

446

金币

装修大学_研究生

Rank: 5Rank: 5

积分
1004

社区居民忠实会员

发表于 2012-03-15 21:59:40 | 显示全部楼层
你自己研究就研究出个插座少了的问题啊?插座是橱柜公司搞还是水电的搞啊?
回复

使用道具 举报

920

帖子

0

原创值

446

金币

装修大学_研究生

Rank: 5Rank: 5

积分
1004

社区居民忠实会员

发表于 2012-03-16 11:27:26 | 显示全部楼层
你反正比我早开工一点点,你就是我家的小白老鼠,呵呵。
回复

使用道具 举报

7878

帖子

0

原创值

3159

金币

荣誉版主

积分
7785

社区居民社区明星终身成就奖宣传大使奖优秀斑竹奖原创先锋奖忠实会员最爱沙发社区劳模原创达人

发表于 2012-03-16 12:39:41 | 显示全部楼层
插座问题
我的观点是在不影响美观的情况下
宜多不宜少
回复

使用道具 举报

299

帖子

0

原创值

196

金币

大四_装修达人

Rank: 4

积分
264

社区居民忠实会员

发表于 2012-03-16 14:13:52 | 显示全部楼层
见光面是啥意思?还要另算钱?送0.3个平方是啥子意思啊?
回复

使用道具 举报

18

帖子

0

原创值

3

金币

大一_装修新生

Rank: 1

积分
15
发表于 2012-03-16 16:44:45 | 显示全部楼层
消毒柜和油烟机电源应该在台面上留控制开关,操作台上面可以加一个灯线,切菜更亮点。感觉楼主家的柜门基本都在400以下,有点偏小了。另外操作台只有不到700,稍微短了些可以加长点。
回复

使用道具 举报

您需要登录后才可以回帖 登录 | 立即注册

本版积分规则