QQ登录    

08我家网

2023兔年大吉

[装修交流]准备进场装修啦,请高手帮忙审核装修公司的预算报价

[复制链接]

152

帖子

0

原创值

60

金币

大三_装修里手

Rank: 3Rank: 3

积分
149

社区居民

发表于 2012-04-23 16:58:50 | 显示全部楼层 |阅读模式
   准备进场装修了,请高手帮忙审核装修公司的预算报价。
   建筑面积:117
   使用面积:96
   半包价:4.5万(不含水电改造)
   户型改动不大,做了2组衣柜、1组鞋柜、阳台一组小吊柜。
    装修公司半包报价.xls (78 KB, 下载次数: 315)    后的半包价为原价的基础上85折。)
   
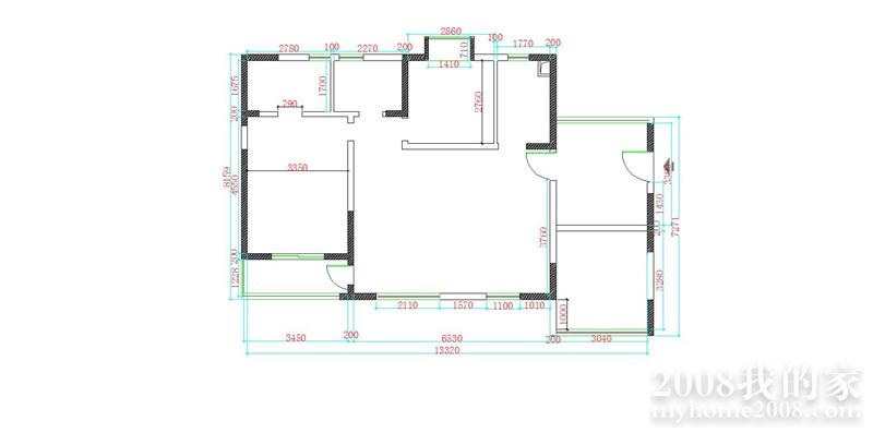
    原户型图:
108房子尺寸._副本_副本.jpg




   设计的结构图:
户型结构图.jpg



客厅效果图:
效果图1.jpg

1

帖子

0

原创值

9

金币

大一_装修新生

Rank: 1

积分
1
发表于 2012-04-23 20:29:00 | 显示全部楼层
    
回复

使用道具 举报

80

帖子

0

原创值

57

金币

大三_装修里手

Rank: 3Rank: 3

积分
62
发表于 2012-04-24 02:15:39 | 显示全部楼层
签的哪家装饰公司,半包价格已经是精算价了吧,
回复

使用道具 举报

152

帖子

0

原创值

60

金币

大三_装修里手

Rank: 3Rank: 3

积分
149

社区居民

 楼主| 发表于 2012-04-24 08:27:07 | 显示全部楼层

回 2楼(xiaoyuedai) 的帖子

群里貌似不能出现装修公司的名称,只能用简称呢。是广东的一家装修公司,叫HX品味装饰。
回复

使用道具 举报

164

帖子

0

原创值

70

金币

大三_装修里手

熊猫就是黑白灰http://www.myho

Rank: 3Rank: 3

积分
151

社区居民

发表于 2012-04-24 15:17:58 | 显示全部楼层
看着貌似价格不高哦,加上水电应该6w左右,差不多吧
回复

使用道具 举报

227

帖子

0

原创值

149

金币

大三_装修里手

Rank: 3Rank: 3

积分
192

社区居民

发表于 2012-07-08 22:16:59 | 显示全部楼层
我也来看看价格如何
回复

使用道具 举报

76

帖子

0

原创值

9

金币

大三_装修里手

Rank: 3Rank: 3

积分
68

社区居民

发表于 2013-03-08 12:10:48 | 显示全部楼层
正在看预算阿
回复

使用道具 举报

44

帖子

0

原创值

2

金币

大二_装修学长

Rank: 2

积分
40

社区居民

发表于 2013-03-09 23:17:36 | 显示全部楼层
你们的怎么这么便宜啊。我102平,点石的半包要9万多
回复

使用道具 举报

191

帖子

0

原创值

6

金币

大三_装修里手

Rank: 3Rank: 3

积分
177

社区居民

发表于 2013-03-12 13:15:33 | 显示全部楼层
    
回复

使用道具 举报

349

帖子

0

原创值

209

金币

大四_装修达人

Rank: 4

积分
307

社区居民忠实会员

发表于 2013-03-12 15:10:50 | 显示全部楼层
哎 我还是不能下载
回复

使用道具 举报

您需要登录后才可以回帖 登录 | 立即注册

本版积分规则