QQ登录    

08我家网

2023兔年大吉

[装修交流]俺家的房子平面设计图——请各位专家给点意见

[复制链接]

963

帖子

0

原创值

419

金币

装修大学_研究生

Rank: 5Rank: 5

积分
1013

社区居民新人进步奖忠实会员

发表于 2012-04-25 14:57:47 | 显示全部楼层 |阅读模式
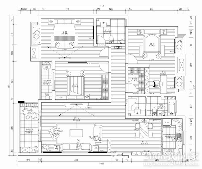
       朋友帮忙做了个设计,在开发商原设计图纸上做了些修改。有些地方改的不错,有的地方我没打算采纳。原图和设计图一桶传上来,请各位专家给点意见。谢谢!
        我对图纸的修改意见如下,请各位专家批评指正。
      
一、起居室
完全同意图纸的设计方案。在修改稿中要将暖气片的位置考虑进去。起居室一共是两组暖气片,规格为1600×600mm(长×高,下同);另外要考虑的就是电视背景墙和吊顶。阳台门准备做铝合金移门。
二、餐厅
家具摆放同意图纸中的安排,但是餐椅边(西侧靠墙)要装一组暖气片,规格是1200×600mm,另外就是要考虑吊顶以及起居室和餐厅的边界如何处理。
三、厨房
同意图纸上的设计方案。与餐厅的隔离采用铝合金推门,两侧和顶上用砖砌封一部分(厨房吊顶高2400mm,门楣应低于2400mm),左右两侧应将冰箱和橱柜的边板遮挡住。
四、主卧
保留开发商原设计方案,不打墙,卧室北侧做衣柜,边与卫生间门的墙取齐。(柜长大概2400mm),其他均按设计图。主卧卫生间的设计按图纸不变。一组暖气片,规格为1800×400mm,拟放在飘窗下位置(不知是否妥当)。
五、次卧(夹在起居室与主卧的那间)
取消衣帽间,保留原样(开发商设计的),门的位置也不变,进门处做一组衣柜(长2100mm左右),摆放双人大床,做卧室用。阳台门不敞开,做铝合金移门与阳台隔离,一组暖气片规格为1400×600mm,拟放置在床对面(西侧墙)。阳台做生活阳台之用,置晾衣服架,洗衣机亦拟放在该处。
六、客卧+书房
同意图纸中的改造方案,只不过想将写字台靠东侧墙放置,而沙发则放在房子中间。每个飘窗下放置一组暖气片,规格均为1400×400mm。
七、其他
除厨卫和阳台贴瓷砖外,其他地方均铺实木地板,飘窗铺贴人造大理石。厨卫做集成吊顶。
房子平面图.jpg

963

帖子

0

原创值

419

金币

装修大学_研究生

Rank: 5Rank: 5

积分
1013

社区居民新人进步奖忠实会员

 楼主| 发表于 2012-04-25 14:59:54 | 显示全部楼层
设计平面图
回复

使用道具 举报

963

帖子

0

原创值

419

金币

装修大学_研究生

Rank: 5Rank: 5

积分
1013

社区居民新人进步奖忠实会员

 楼主| 发表于 2012-04-25 15:06:36 | 显示全部楼层
重发平面图
家装-Model 拷贝.jpg
回复

使用道具 举报

387

帖子

0

原创值

542

金币

大四_装修达人

布布

Rank: 4

积分
411

社区居民

发表于 2012-04-26 12:55:45 | 显示全部楼层
我觉得卧室朝南会比较好。。。个人意见哈
貌似设计把主人房搬北面切哒?
回复

使用道具 举报

963

帖子

0

原创值

419

金币

装修大学_研究生

Rank: 5Rank: 5

积分
1013

社区居民新人进步奖忠实会员

 楼主| 发表于 2012-04-26 13:30:30 | 显示全部楼层
哦,该图右边是北向,所以主卧室是在南向。是我的图没有按照上北下南的规矩摆放。看丫丫妈妈还有别的好建议波。
回复

使用道具 举报

491

帖子

0

原创值

82

金币

大四_装修达人

Rank: 4

积分
447

社区居民

发表于 2012-06-25 10:06:39 | 显示全部楼层


你家的房子套型与我家基本一样,相似度80%。
一条长走廊,南边三空间:客厅及二个卧室,北边四空间:餐厅厨房卫生间及客卧。
区别:
我家只有121平方,三房二厅;你家150多平方,四房二厅。
回复

使用道具 举报

491

帖子

0

原创值

82

金币

大四_装修达人

Rank: 4

积分
447

社区居民

发表于 2012-06-25 10:08:16 | 显示全部楼层

回 2楼(疏影横斜) 的帖子

图太小,有大图不妨发我一张/
回复

使用道具 举报

963

帖子

0

原创值

419

金币

装修大学_研究生

Rank: 5Rank: 5

积分
1013

社区居民新人进步奖忠实会员

 楼主| 发表于 2012-06-25 10:18:03 | 显示全部楼层

回 5楼(岛主) 的帖子

确实很相似,只差了一点点。设计平面图也相似。
回复

使用道具 举报

963

帖子

0

原创值

419

金币

装修大学_研究生

Rank: 5Rank: 5

积分
1013

社区居民新人进步奖忠实会员

 楼主| 发表于 2012-06-25 10:22:51 | 显示全部楼层
看看,请给点修改建议。
2-Model(1).jpg
回复

使用道具 举报

47

帖子

0

原创值

10

金币

大二_装修学长

Rank: 2

积分
46

社区居民

发表于 2012-06-25 20:52:38 | 显示全部楼层
LZ家和我家房子结构相似度80%,同样四房二厅,同样南边两卧室,北面两卧室,我端午节为这个平面设计想了三天也没有一个较满意的方案。我把我家图传上来,还有朋友做的平面图,求LZ共同讨论。
户型图_cr.jpg
回复

使用道具 举报

您需要登录后才可以回帖 登录 | 立即注册

本版积分规则