|
发表于 2009-09-26 14:25:38
|
显示全部楼层
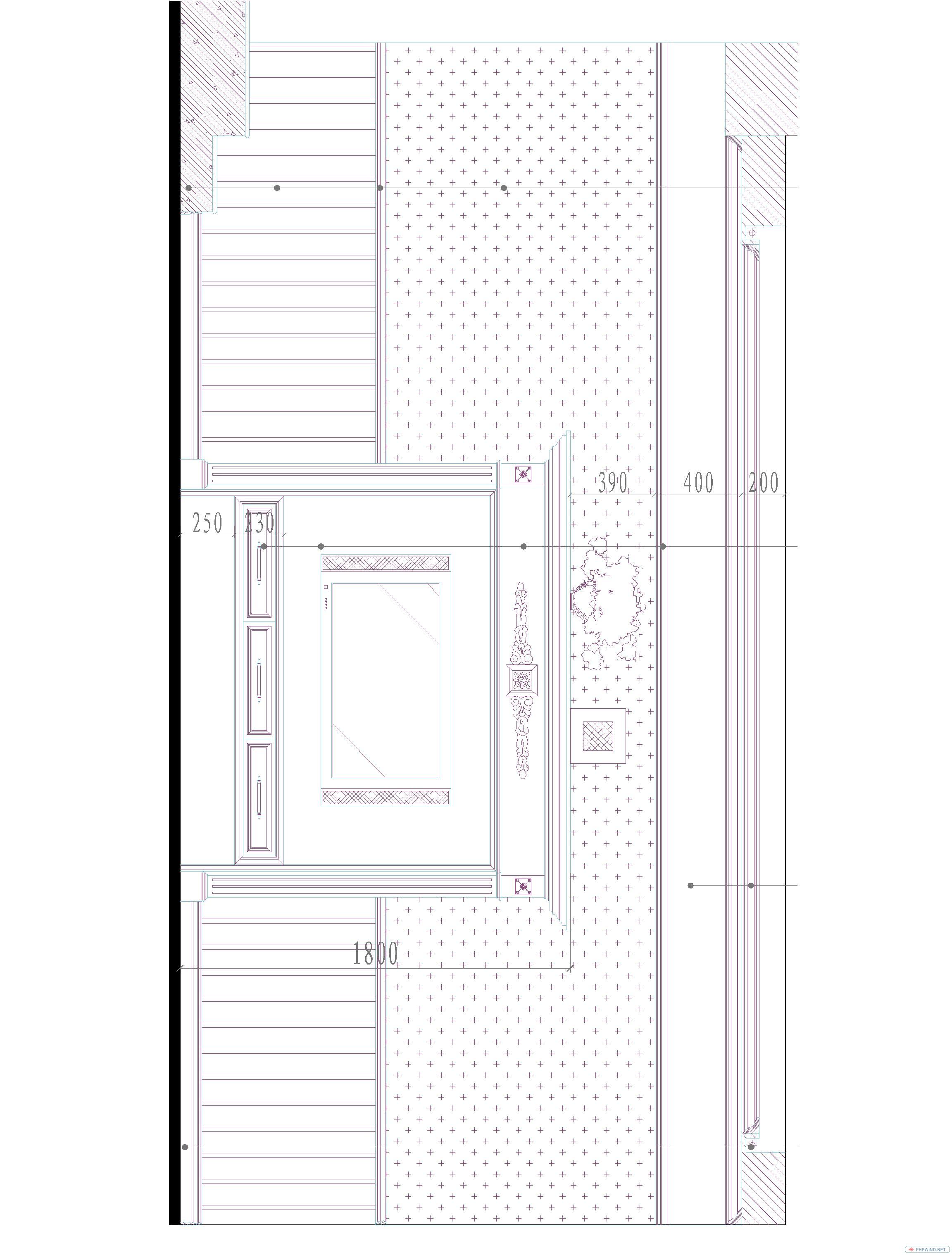
Re:关于我客厅的护墙板
引用第59楼啦啦妈妈于2009-09-24 12:47发表的 关于我客厅的护墙板 :
自从设计师在我家的客厅画上一圈护墙板(墙群)开始,我和老公就很犹豫,这东西会不会好看啊?在我的印象里,乡下的房子九十年代初期装修的时候就搞了这玩意儿,现在看上去真的是土得不行了……
跟设计师讨论了好多次,他都坚持做,说一定会好看!朋友们的意见不做的居多,也有要我们尊照原创的,真的好茅盾啊,做?不做?做?不做?我都快成为一个钟摆了……
有经验的DX指点指点啊,现在这个决定很快就要落实了!  有图没,投票决定…… |
|