QQ登录    

08我家网

2023兔年大吉

☆█一点低调&一点奢华█☆,妙妙的家(大量图片更新)

[复制链接]
  • 所在城市:
  • 所在小区:
  •  
  • 装修类型:新房装修
  • 装修户型:二房
  •  
  • 装修方式:半包
  • 装修风格:现代简约
  •  
  • 装修预算:10万—20万
  • 开工时间:
  • 前期设计
  • 主体拆装
  • 水电
  • 泥工
  • 木工
  • 油漆
  • 成品安装
  • 软装配饰
  • 毕业
已装修历时5848

65

帖子

0

原创值

13

金币

大三_装修里手

Rank: 3Rank: 3

积分
61
发表于 2009-10-16 17:50:10 | 显示全部楼层 |阅读模式
历时三个月的装修,硬装差不多结束了。

参加了群里很多的团购,对于我这个八零后来说,真的很受益,也很省钱

呵呵,所以一直嚷着要写日志回馈群里,结果还是拖到装完才开始,这样也好,有实质性的东西可说



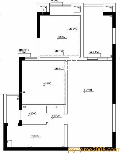
原户型:二室二厅一卫一厨两阳台     【面积】建筑84.9平方


原始户型图:

PM-01.jpg



因为是菜鸟,
所以在权衡了鸿扬,融和,点石了之后,选择了点石,

也不是说它就有多好,只不过就我自己的需求和经济能力来做的选择,

群里很火的融和,估计是我户型小,预算不多,又是八零后,在我登门拜访之后,再也没联系过我。



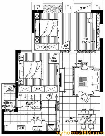
下面就放上来点石给我的基本格局设计:


PM-02.jpg

954

帖子

0

原创值

150

金币

装修大学_研究生

Rank: 5Rank: 5

积分
891

社区居民

发表于 2009-10-16 18:14:23 | 显示全部楼层
加油啊,期待……
回复

使用道具 举报

65

帖子

0

原创值

13

金币

大三_装修里手

Rank: 3Rank: 3

积分
61
 楼主| 发表于 2009-10-16 18:25:17 | 显示全部楼层
谢谢,你是第一个支持我的人哦

由于家里软装还没有结束,发点装修前我收集的照片吧
回复

使用道具 举报

65

帖子

0

原创值

13

金币

大三_装修里手

Rank: 3Rank: 3

积分
61
 楼主| 发表于 2009-10-16 18:37:32 | 显示全部楼层
是我比较欣赏的风格   


18210898.jpg



18731343.jpg



20090225_328d6ae02285fe1e2174317VXoCddM3k.jpg


220120102880.jpg
回复

使用道具 举报

954

帖子

0

原创值

150

金币

装修大学_研究生

Rank: 5Rank: 5

积分
891

社区居民

发表于 2009-10-16 18:47:40 | 显示全部楼层
哈哈,互相支持,等着你的漂亮片片
回复

使用道具 举报

65

帖子

0

原创值

13

金币

大三_装修里手

Rank: 3Rank: 3

积分
61
 楼主| 发表于 2009-10-16 18:54:31 | 显示全部楼层
不管有没有人顶贴,我都还是继续发点吧,呵,相信总有人会欣赏




4_18_92250d7f023dfde.jpg
  
  
  

172018.jpg
  


172453.jpg
  
  
  
回复

使用道具 举报

1135

帖子

0

原创值

6

金币

装修大学_研究生

Rank: 5Rank: 5

积分
1029
发表于 2009-10-16 19:06:21 | 显示全部楼层
挺漂亮的图片
回复

使用道具 举报

219

帖子

0

原创值

2

金币

大三_装修里手

Rank: 3Rank: 3

积分
196
发表于 2009-10-16 19:07:21 | 显示全部楼层
加油发贴啊
回复

使用道具 举报

65

帖子

0

原创值

13

金币

大三_装修里手

Rank: 3Rank: 3

积分
61
 楼主| 发表于 2009-10-16 19:29:49 | 显示全部楼层
哈哈,其实还有很多图片,我怕一次发出来吓到大家,下次再分享好了

开始切入正题吧,show毛坯房给大家看


进门视野
照片 221.jpg


半卖半送的空中花园
照片 224.jpg



主卧
照片 226.jpg



次卧
照片 227.jpg



干湿分区的卫生间
照片 230.jpg
回复

使用道具 举报

65

帖子

0

原创值

13

金币

大三_装修里手

Rank: 3Rank: 3

积分
61
 楼主| 发表于 2009-10-16 20:03:43 | 显示全部楼层
因为本身很喜欢在网上买东西,吃的,穿的,用的,

很多都选择网上买,不知不觉也练就了一双火眼金睛

到目前为止,关于家装在网上买了,餐椅,茶几,厨房挂件,抱枕,墙贴,华丽丽的所有的灯,,,,都让我很满意!

重要的是,价格很便宜,这让老骂我装修超支的妈妈都仍不住夸奖起我来,

下面show show我的宝贝们吧
回复

使用道具 举报

您需要登录后才可以回帖 登录 | 立即注册

本版积分规则