QQ登录    

08我家网

2023兔年大吉
12
返回列表 发新帖

用最低的价格装出最理想的效果··O(∩_∩)O哈哈~

[复制链接]

44

帖子

0

原创值

24

金币

大二_装修学长

Rank: 2

积分
44

社区居民

 楼主| 发表于 2012-08-31 17:48:27 | 显示全部楼层
7.jpg
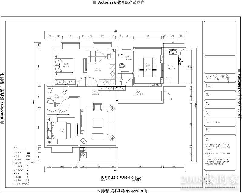
过道好长吧。
回复

使用道具 举报

44

帖子

0

原创值

24

金币

大二_装修学长

Rank: 2

积分
44

社区居民

 楼主| 发表于 2012-08-31 17:53:39 | 显示全部楼层
     我想想法改动可能有点大,首先进门右手边的生活阳台退掉,餐厅的面积就会加大很多啦视野也会比较宽阔 9.jpg

   再就是厨房两边的墙我也要求敲掉了,我想改成两个酒柜,推出来350的侯的酒柜这样餐厅的收纳空间就有啦,中间还是推拉门不变。
8.jpg
回复

使用道具 举报

44

帖子

0

原创值

24

金币

大二_装修学长

Rank: 2

积分
44

社区居民

 楼主| 发表于 2012-08-31 18:01:56 | 显示全部楼层
18.jpg
    本来打算把厕所移位的,但是没想到那个是主墙改不了,走廊不是很长吗,我在旁边坐个300宽的1米2高4米长的书柜,三层,两层书柜,下面做推拉门,用来放置一些不穿的鞋子,货物品。书柜上面时照片墙,。到时候给它造个型,接着就是两个卧室的柜子,书房我想的是做个L型的衣柜,放置棉被,然后连着书桌书桌上面三个柜子,用玻璃的面板,这样不容易落灰也比较美观呢。
回复

使用道具 举报

44

帖子

0

原创值

24

金币

大二_装修学长

Rank: 2

积分
44

社区居民

 楼主| 发表于 2012-08-31 18:09:25 | 显示全部楼层
     感觉工程有点小小的大啊,过道上面和餐厅的梁上面都做了弧形的造型, 吊顶.jpg
吊顶的设计,不知道TX们能不能看懂呀,

接下来我就要说价格了啊·,我是直接找的项目经理,是个比较知名的装饰公司的项目经理呀,半包
包了所有的辅材,水管是PPR管,电线是金杯的,还有就是油漆是华润的,三个房间的柜子,包括书柜和酒柜,还有吊顶,等,半包你们猜是多少。哈哈5.7万,找的熟人呢,还还了点价。
回复

使用道具 举报

44

帖子

0

原创值

24

金币

大二_装修学长

Rank: 2

积分
44

社区居民

 楼主| 发表于 2012-08-31 18:17:14 | 显示全部楼层
   速度啊,当天上午,去签合同,项目经理就带着水电和泥工来到家里,钱都还没有交,要拆的墙就敲掉了,速度,
   第二天去看家里就铺满了电线 14.jpg
5.jpg
8.jpg
10.jpg
12.jpg
跟着就催我定橱柜,买瓷砖,这周真的是很累呀,明天又周末啦,接下来我就上传我买的材料哦,今天要回家里,TX们有什么好的建议给我留言哦···哈哈
回复

使用道具 举报

420

帖子

0

原创值

504

金币

大四_装修达人

Rank: 4

积分
345

社区居民

发表于 2012-08-31 23:11:45 | 显示全部楼层
恭喜楼主开工哦~~~我们家也要开工了,大家一起加油咯~~~
回复

使用道具 举报

1万

帖子

0

原创值

9607

金币

论坛元老

掰子姐

Rank: 15Rank: 15Rank: 15Rank: 15Rank: 15

积分
11275

吃货社区居民社区明星忠实会员最爱沙发新人进步奖幽默大师奖贴图大师奖原创先锋奖金点子奖特殊贡献奖宣传大使奖优秀斑竹奖终身成就奖灌水天才奖社区劳模原创达人

发表于 2012-09-03 14:38:03 | 显示全部楼层
装修日记新锐赛开锣,快去报名参加吧!! http://www.08wojia.com/thread-33604-1-1.html
回复

使用道具 举报

7346

帖子

0

原创值

2807

金币

荣誉版主

积分
6084

社区居民忠实会员最爱沙发社区明星社区劳模灌水天才奖

发表于 2013-01-17 17:04:33 | 显示全部楼层
      般若过来围观,祝亲装修一切顺利...
回复

使用道具 举报

7346

帖子

0

原创值

2807

金币

荣誉版主

积分
6084

社区居民忠实会员最爱沙发社区明星社区劳模灌水天才奖

发表于 2013-01-17 17:05:14 | 显示全部楼层
也不知道亲现在装修到哪一步了?》。。。
回复

使用道具 举报

您需要登录后才可以回帖 登录 | 立即注册

本版积分规则