QQ登录    

08我家网

2023兔年大吉

小白来装修

[复制链接]
  • 所在城市:长沙
  • 所在小区:丽景香山
  •  
  • 装修类型:新房装修
  • 装修户型:三房
  •  
  • 装修方式:半包
  • 装修风格:现代简约
  •  
  • 装修预算:10万—20万
  • 开工时间:2012-09-22
  • 前期设计
  • 主体拆装
  • 水电
  • 泥工
  • 木工
  • 油漆
  • 成品安装
  • 软装配饰
  • 毕业
已装修历时4781

22

帖子

0

原创值

7

金币

大二_装修学长

Rank: 2

积分
25

社区居民

发表于 2012-09-17 17:56:25 | 显示全部楼层 |阅读模式
       装修~装修~让人头疼的装修~
        幸好无意中发现了08,在08看见了各位大师的事迹,学习无数个夜晚,发现我乃真小白也
        本着跟着前辈的脚步前进不会错的方针,通过不不美女、小贝美女的指引我找到了大名鼎鼎的Z,(懒人就知道拣现成的
         9月13日见面就约定了第二天量房,什么都没想,相信不不、相信小贝、相信Z——可不能让我失望啊忐忑~~~
         9月14日没想到设计师是个美女小妹陀(想起一个笑话哈:我熟知一切泡美眉的方法,可惜我就是一个美眉),接着就是量房,再接着奉上三千米米,约定一星期出图(我发现我够干脆哈)
         9月15日出初步的平面图,传上设计图,请大师们指点一二
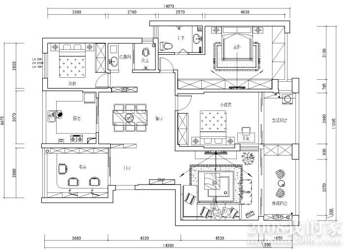
这是原户型图



}5}GHT3([7`)F)HTJ)MP287.jpg
这是设计后的

         

图是反的,户型图是我网上搜的

22

帖子

0

原创值

7

金币

大二_装修学长

Rank: 2

积分
25

社区居民

 楼主| 发表于 2012-09-17 17:58:52 | 显示全部楼层
自己沙发
回复

使用道具 举报

1373

帖子

0

原创值

1633

金币

装修大学_研究生

做人,品为先,才为次。

Rank: 5Rank: 5

积分
1226

社区居民社区明星新人进步奖忠实会员社区劳模最爱沙发

发表于 2012-09-17 22:19:51 | 显示全部楼层
   这个小区不错。我刚刚去过。
祝装修顺利。
回复

使用道具 举报

22

帖子

0

原创值

7

金币

大二_装修学长

Rank: 2

积分
25

社区居民

 楼主| 发表于 2012-09-19 14:01:17 | 显示全部楼层

回 2楼(阿吉) 的帖子

谢谢阿吉!还请多多指点
回复

使用道具 举报

22

帖子

0

原创值

7

金币

大二_装修学长

Rank: 2

积分
25

社区居民

 楼主| 发表于 2012-09-19 14:07:58 | 显示全部楼层
今天又到房子里看看,感受一下想象中的格局,发现书房那样做的话会比较挤 ,回家立即和小美女沟通。决定少放一张椅子,改放一张双人沙发,临窗的书桌取消。 大家给点意见啊
回复

使用道具 举报

3979

帖子

0

原创值

2435

金币

装修大学_教授

因为生活,所以设计!

Rank: 7Rank: 7Rank: 7

积分
3280

社区居民社区明星忠实会员

发表于 2012-09-19 14:30:47 | 显示全部楼层
啦啦啦~~~啦啦啦~~
小丸子抢到首页啦~~
回复

使用道具 举报

22

帖子

0

原创值

7

金币

大二_装修学长

Rank: 2

积分
25

社区居民

 楼主| 发表于 2012-09-24 09:12:57 | 显示全部楼层

回 5楼(hello_fancy) 的帖子

谢谢小丸子,祝中秋快乐
回复

使用道具 举报

您需要登录后才可以回帖 登录 | 立即注册

本版积分规则