QQ登录    

08我家网

2023兔年大吉

田园 北欧风~~清包~我强大的亲戚帮帮团~~~

[复制链接]

76

帖子

0

原创值

35

金币

大三_装修里手

Rank: 3Rank: 3

积分
68

社区居民

发表于 2012-12-18 21:50:03 | 显示全部楼层
回复

使用道具 举报

2251

帖子

0

原创值

3283

金币

装修大学_博士生

Rank: 6Rank: 6

积分
1648

社区居民忠实会员最爱沙发社区明星

发表于 2012-12-18 21:59:34 | 显示全部楼层
曾经一度很爱的北欧风,,,加油,
回复

使用道具 举报

7346

帖子

0

原创值

2807

金币

荣誉版主

积分
6084

社区居民忠实会员最爱沙发社区明星社区劳模灌水天才奖

发表于 2012-12-19 16:03:49 | 显示全部楼层
施工图还没出来????
回复

使用道具 举报

17

帖子

0

原创值

38

金币

大一_装修新生

Rank: 1

积分
10

社区居民

发表于 2012-12-19 18:43:34 | 显示全部楼层
期待亲的更新...
回复

使用道具 举报

227

帖子

0

原创值

70

金币

大四_装修达人

Rank: 4

积分
219

社区居民忠实会员

 楼主| 发表于 2013-03-18 20:17:51 | 显示全部楼层
我终于又卷土重来了,之前由于受了气,决定再也不进这个论坛了。但是我觉得个人的力量还是太小了,还是需要大家的力量才能把我这个装修搞起来~之前由于需要出差一个多月,所以装修就搁浅了,现在终于又开始动工了。但最近去看瓷板砖的时候很迷茫,真心不知道需要挑选那种板砖,价格差别太大了。
回复

使用道具 举报

227

帖子

0

原创值

70

金币

大四_装修达人

Rank: 4

积分
219

社区居民忠实会员

 楼主| 发表于 2013-03-18 20:44:29 | 显示全部楼层
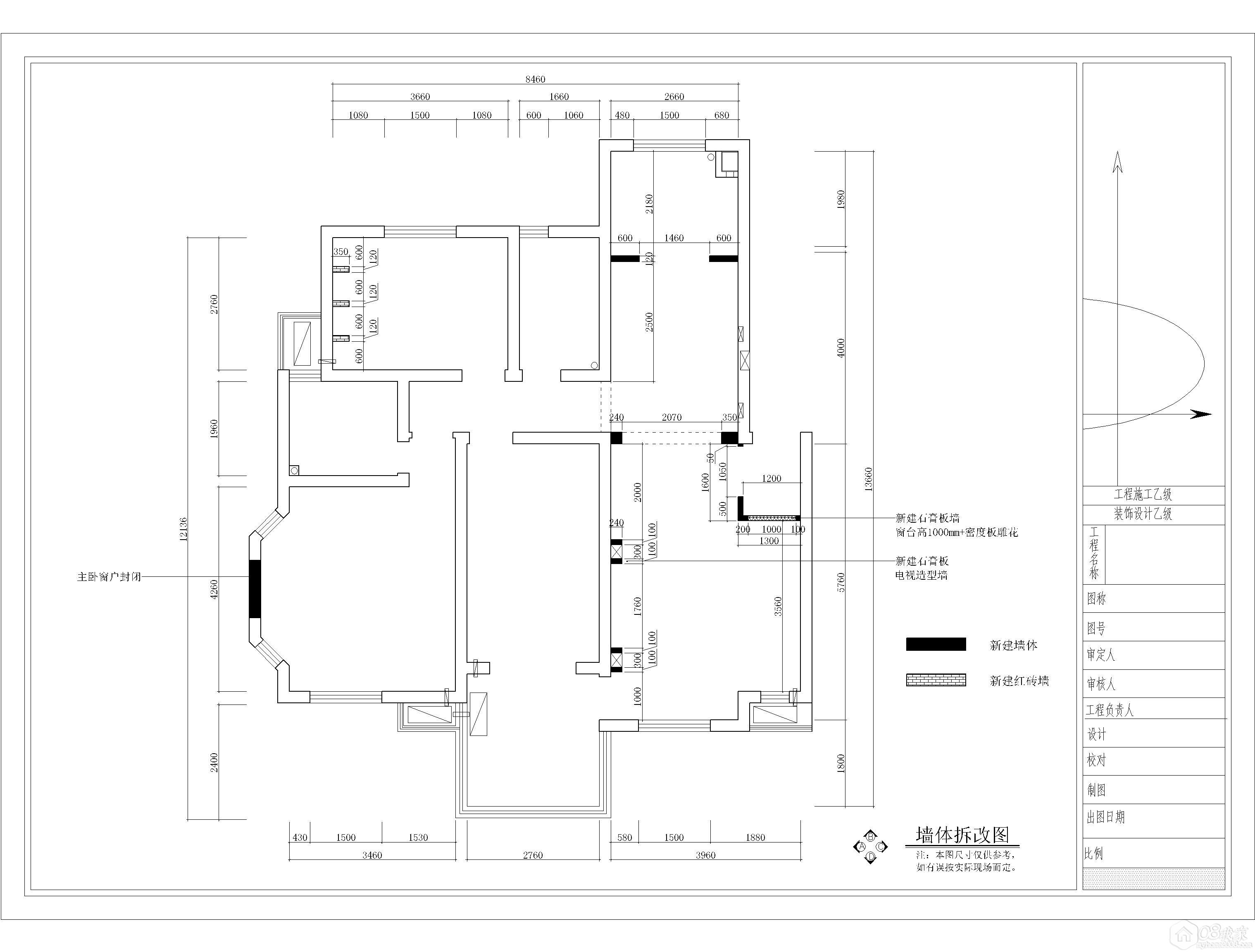
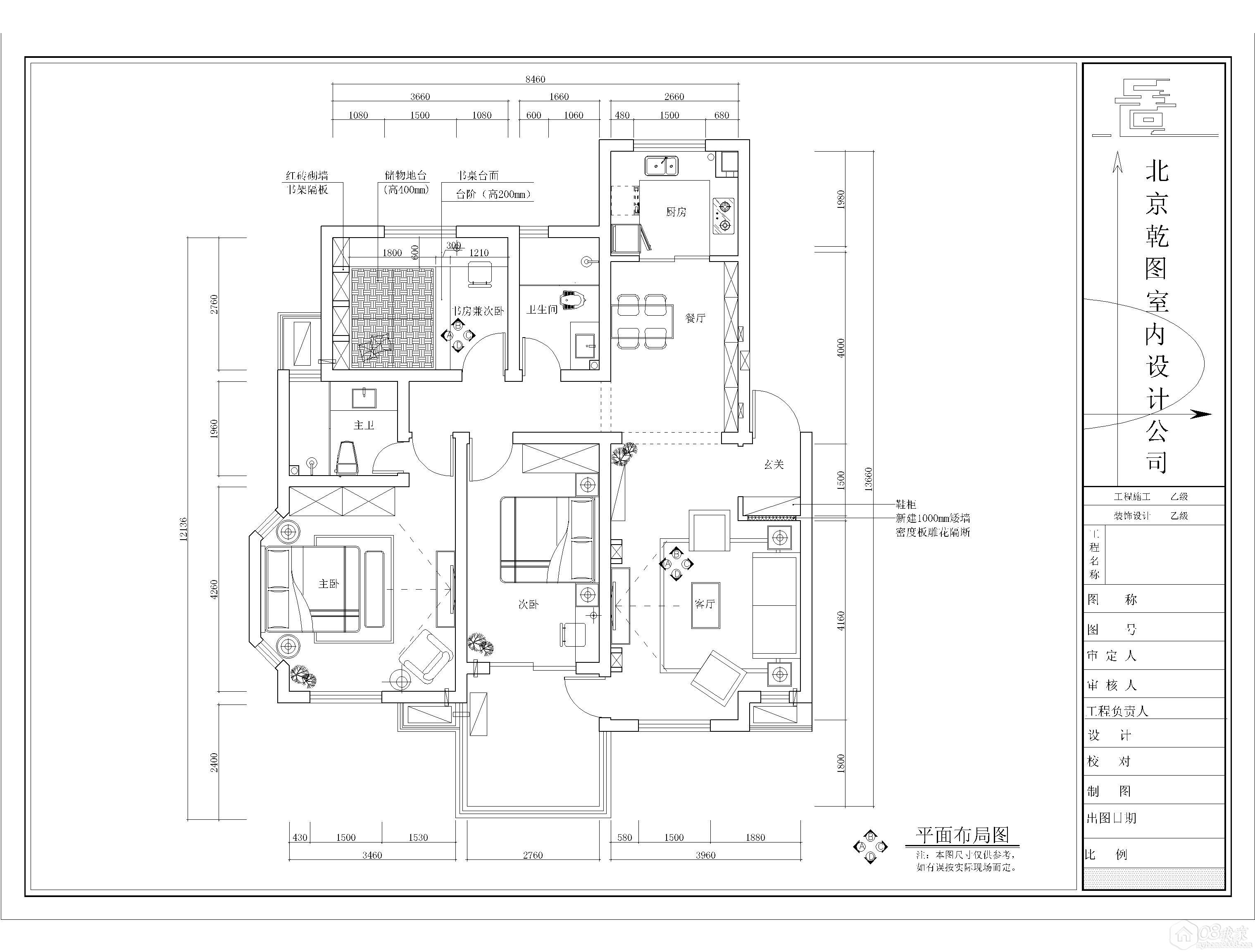
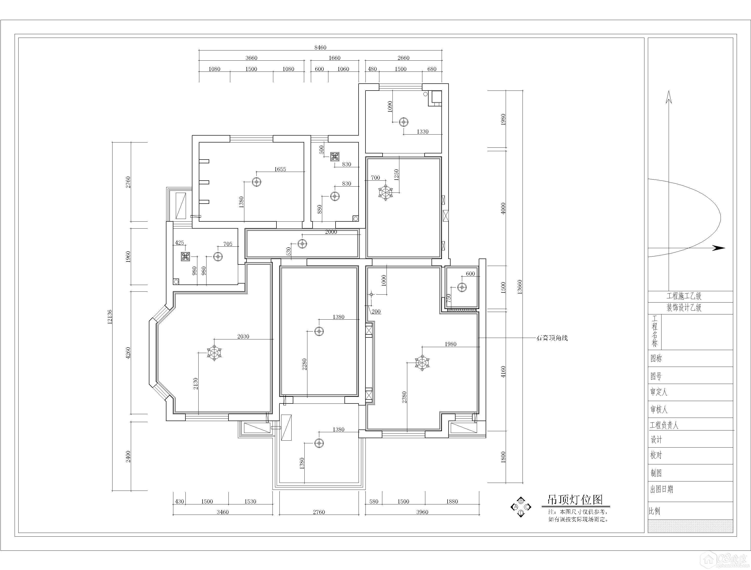
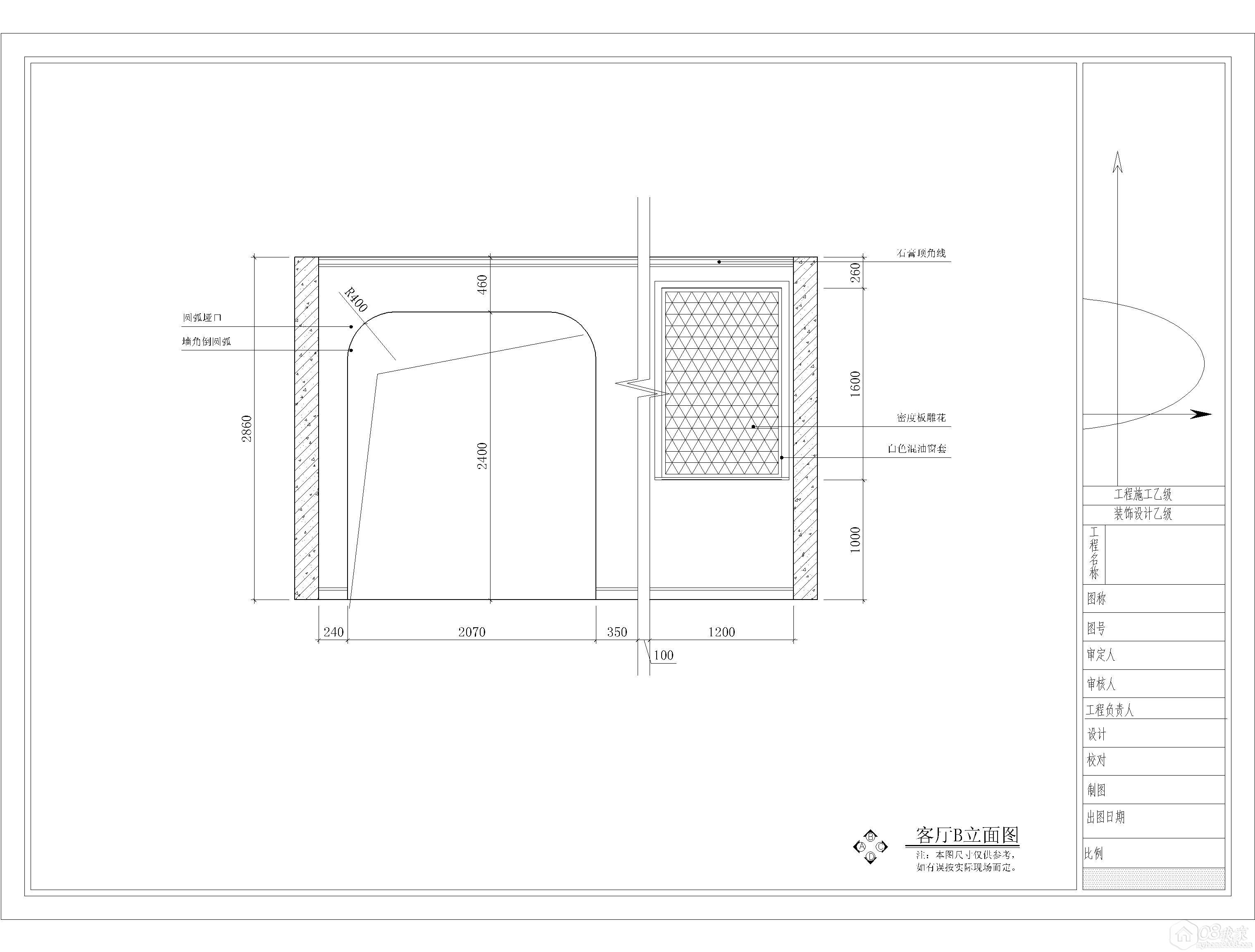
上施工图。我不知道写日记是不是这样一直回复帖子这样写啊~
1原始平面图.jpg
2墙体拆改图.jpg
3平面布局图.jpg
4吊顶灯位图.jpg
5开关控制图.jpg
6插座布置图.jpg
7地面铺装图.jpg
8客厅A立面图.jpg
9客厅B立面图.jpg
10书房B立面图.jpg
回复

使用道具 举报

227

帖子

0

原创值

70

金币

大四_装修达人

Rank: 4

积分
219

社区居民忠实会员

 楼主| 发表于 2013-03-19 23:28:53 | 显示全部楼层
今天什么都没有做。就接到一个噩耗~~居然要出差一个月!!!!!本来我的装修计划就搁浅了~~现在又要拖延~我到底要何年何月才能够住进我的新房!!!!!
回复

使用道具 举报

227

帖子

0

原创值

70

金币

大四_装修达人

Rank: 4

积分
219

社区居民忠实会员

 楼主| 发表于 2013-03-20 00:04:53 | 显示全部楼层
记录一下今天:虽然没有忙活什么,但是在群里面还是知道不少知识,至少我知道原来是要先订橱柜才能定水电哇~~我到底有多无知~~~~~~
回复

使用道具 举报

1344

帖子

0

原创值

1622

金币

装修大学_研究生

通用时代-董妞

Rank: 5Rank: 5

积分
1194

社区居民忠实会员社区劳模社区明星最爱沙发

发表于 2013-03-20 00:07:28 | 显示全部楼层
恭喜楼主复工!
回复

使用道具 举报

227

帖子

0

原创值

70

金币

大四_装修达人

Rank: 4

积分
219

社区居民忠实会员

 楼主| 发表于 2013-03-20 00:23:18 | 显示全部楼层

回 林藤月夜 的帖子

林藤月夜:恭喜楼主复工! (2013-03-20 00:07)
谢谢~~~不能再逃避了~~~~
回复

使用道具 举报

您需要登录后才可以回帖 登录 | 立即注册

本版积分规则