登录
|
立即注册
首页
装修交流
APP下载
微信公众号
搜索
搜索
本版
帖子
用户
装修学院
装修日记
装修交流
装修毕业照
建材团购
建材团购
二手转让
省钱情报
加入装修交流群
08我家网
»
装修交流
›
装修学院
›
装修日记
›
云#公馆A栋,小女人30平面单身温馨小窝,选对装修公司, ...
返回列表
云#公馆A栋,小女人30平面单身温馨小窝,选对装修公司,装修很简单
[复制链接]
所在城市:
长沙
所在小区:
云鼎公馆
装修类型:
新房装修
装修户型:
五房及以上
装修方式:
全包
装修风格:
美式
装修预算:
10万—20万
开工时间:
2012-08-26
前期设计
主体拆装
水电
泥工
木工
油漆
成品安装
软装配饰
毕业
已装修历时
4743
天
ci笑笑ci
ci笑笑ci
当前离线
积分
8
3
帖子
0
原创值
24
金币
大一_装修新生
大一_装修新生, 积分 8, 距离下一级还需 12 积分
大一_装修新生, 积分 8, 距离下一级还需 12 积分
积分
8
关注
2
私信
发表于 2012-10-25 14:39:47
|
显示全部楼层
|
阅读模式
我的小公寓装修基本完成了,下个月可以拎包入住了
,虽然还差几件小家电和一些软装搭配
,软装饰品要时间慢慢淘
·····看着温馨的小窝觉得这两个月的辛苦是值得的,公寓虽然小,只有一房一厅(30平米),但是每个空间都合理的利用了,所以放下这几年的家当还是很足够的了
。装修风格是自己喜欢的白色欧式风格,每一砖一瓦都是自己和设计师精心挑选的!要特别谢谢宜然装饰和章工的支持和帮助
。
欢迎大家来评论
好了,开始上图
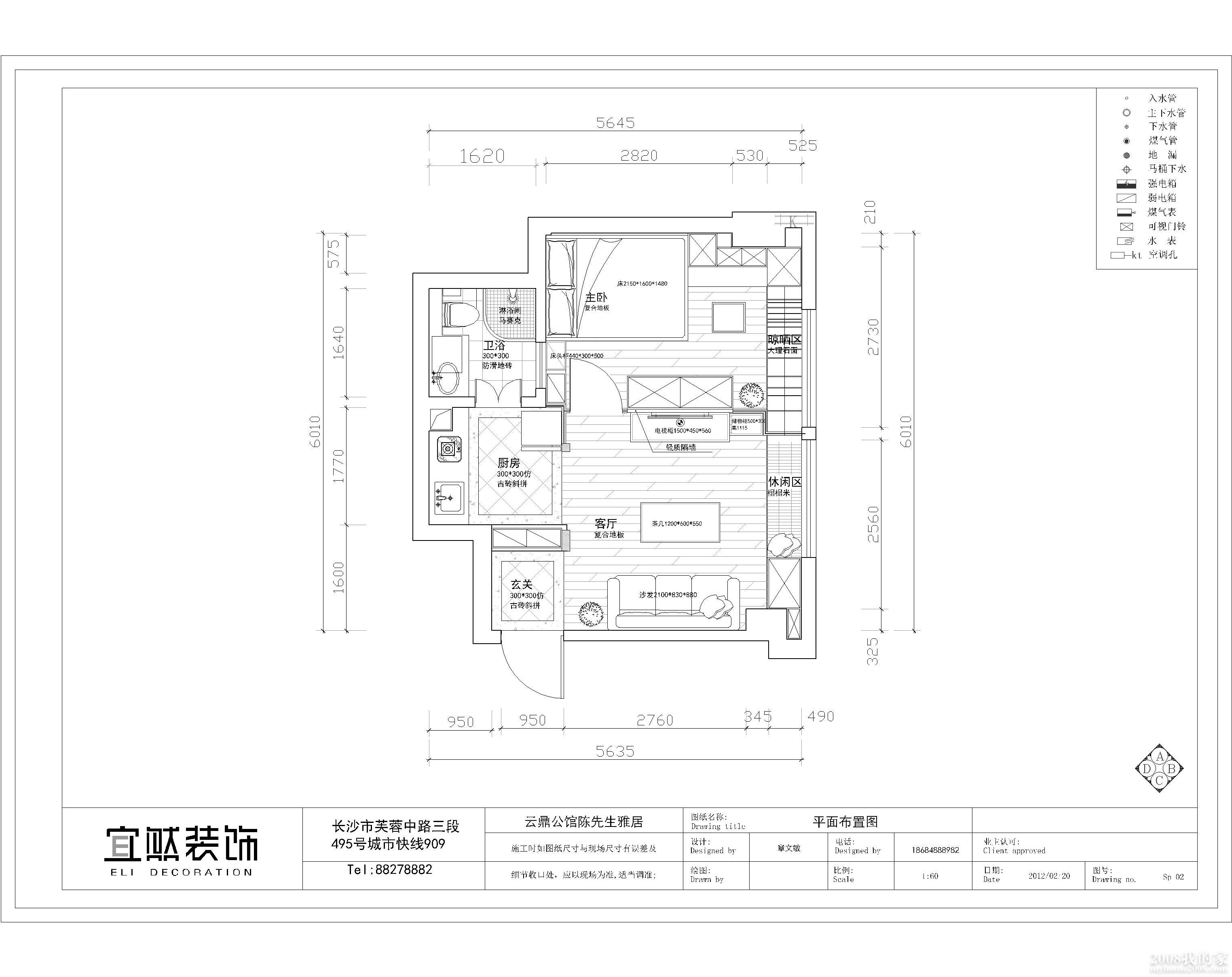
设计图
入户玄关,全墙马赛克,颜色很漂亮,是彩金色,设计师推销的,非常喜欢,准备在上面再挂上两幅装饰画,每天回家都感觉心情很好,可还没看到中意的画
··
鞋柜放些经常穿的鞋,基本上可以放上两个季度的鞋子,没有一点问题,(本女子鞋子比较多)上面还有一个白色镂空屏风,还在厂家定做中····
家里放些去甲醛的吊篮,空气会好狠多···
入门客厅,晚上看电影很舒服···茶镜的设计会显得客厅空间很大,又不失温馨,最重要的是划开了客厅和卧室的区域
因为房子面积很小,设计师用磨砂玻璃和茶镜做为划分动静区域的工具,可以节省空间(小户型有点伤不起),当时和设计师讨论的时候也是考虑到光线的问题
客厅大飘窗,视野不错,还定做的软软的榻榻米,来客人了可以坐在
上面喝茶打牌,晚上还可以当个小床铺,嘿嘿
谁说小户型就不能有春天,呵呵,楼主的这个吊顶不错吧,晚上开灯
家里感觉特别有调子,而且拉开了纵深感,特显空间
家具都都是白色的,喜欢这种宁静的感觉
把书先整理过来了···慢慢搬家··
回复
使用道具
举报
提升卡
置顶卡
沉默卡
千斤顶
weiyong0613
weiyong0613
当前离线
积分
69
78
帖子
0
原创值
64
金币
大三_装修里手
大三_装修里手, 积分 69, 距离下一级还需 131 积分
大三_装修里手, 积分 69, 距离下一级还需 131 积分
积分
69
关注
1
私信
发表于 2012-10-28 11:53:08
|
显示全部楼层
回复
使用道具
举报
weiyong0613
weiyong0613
当前离线
积分
69
78
帖子
0
原创值
64
金币
大三_装修里手
大三_装修里手, 积分 69, 距离下一级还需 131 积分
大三_装修里手, 积分 69, 距离下一级还需 131 积分
积分
69
关注
1
私信
发表于 2012-10-28 11:53:37
|
显示全部楼层
回复
使用道具
举报
weiyong0613
weiyong0613
当前离线
积分
69
78
帖子
0
原创值
64
金币
大三_装修里手
大三_装修里手, 积分 69, 距离下一级还需 131 积分
大三_装修里手, 积分 69, 距离下一级还需 131 积分
积分
69
关注
1
私信
发表于 2012-10-28 11:54:05
|
显示全部楼层
新手上路请多指教
回复
使用道具
举报
返回列表
高级模式
Smilies
您需要登录后才可以回帖
登录
|
立即注册
本版积分规则
发表回复
回帖后跳转到最后一页
浏览过的版块
往期团购
谈天说地
装修口碑推荐
每日签到
二手交易淘
我想团
我来晒奖
装修交流
我家观光团
社区居民
拥有帐号并登录即可申请获得此勋章.