QQ登录    

08我家网

2023兔年大吉

【2013参赛日记】(六月进度追踪勤快奖)旧房翻新~

[复制链接]

149

帖子

0

原创值

124

金币

大三_装修里手

Rank: 3Rank: 3

积分
116

社区居民最爱沙发

发表于 2013-02-26 23:35:00 | 显示全部楼层
清包和散步要求业主熟悉各种施工工艺和验收标准哦。楼主任重而道远啊。关注中,因为我也是复式,也清包的打算。
回复

使用道具 举报

149

帖子

0

原创值

124

金币

大三_装修里手

Rank: 3Rank: 3

积分
116

社区居民最爱沙发

发表于 2013-02-26 23:35:48 | 显示全部楼层
我觉得不是清包,而是叫项目化外包。把装修拆成几个独立的过程,分别外包出去。
回复

使用道具 举报

490

帖子

0

原创值

469

金币

大四_装修达人

Rank: 4

积分
475

社区居民忠实会员社区明星

 楼主| 发表于 2013-02-27 10:05:16 | 显示全部楼层

回 应公子 的帖子

应公子:清包和散步要求业主熟悉各种施工工艺和验收标准哦。楼主任重而道远啊。关注中,因为我也是复式,也清包的打算。 (2013-02-26 23:35) 
公子分析得好呀,小女子受教了~
你家准备什么时候搞啊,河东还是河西的?
回复

使用道具 举报

490

帖子

0

原创值

469

金币

大四_装修达人

Rank: 4

积分
475

社区居民忠实会员社区明星

 楼主| 发表于 2013-02-27 10:26:07 | 显示全部楼层
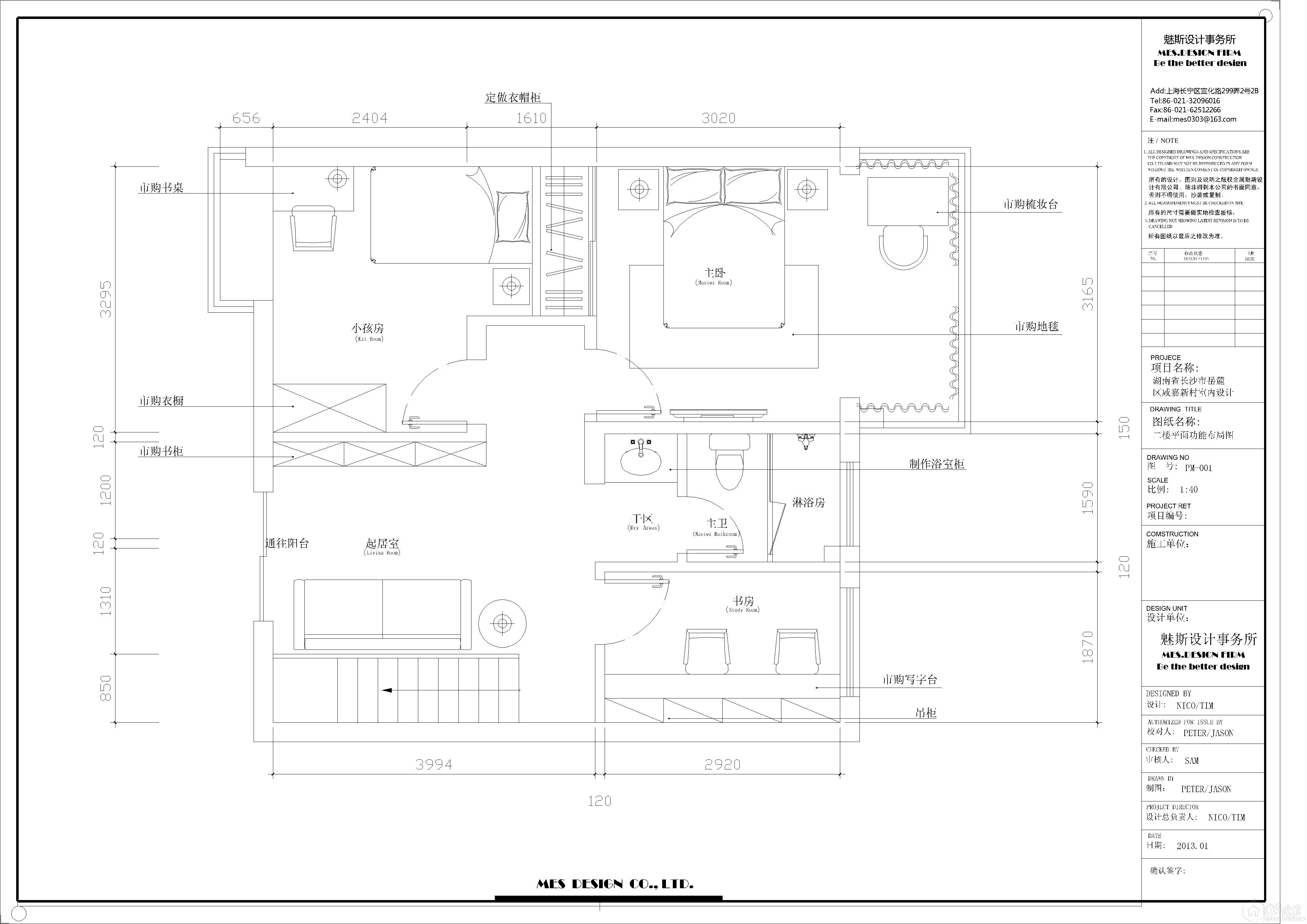
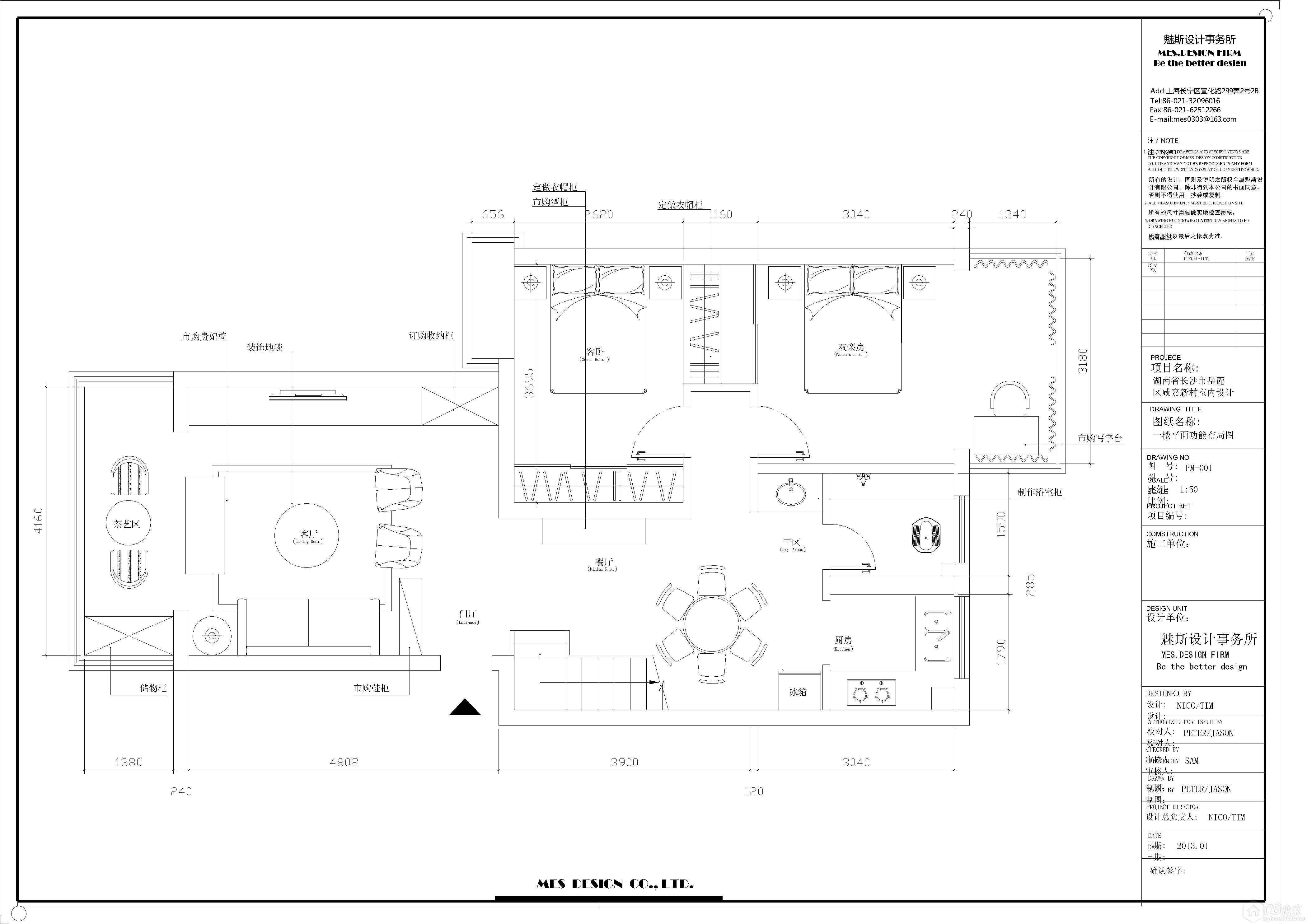
今天拿到最终的平面图,请大家鉴定   学会了隐藏,只想看看我发的东东到底有木有人看。。。。
一楼平面布局图-Model20130226.jpg

二楼平面布局图-Model20130227.jpg
回复

使用道具 举报

149

帖子

0

原创值

124

金币

大三_装修里手

Rank: 3Rank: 3

积分
116

社区居民最爱沙发

发表于 2013-02-27 11:01:16 | 显示全部楼层
我在南边,估计要10月份才装修。打算前期先把材料选好,楼主材料准备怎么样了。记得做个详细记录,到时候给我参考一下。
回复

使用道具 举报

490

帖子

0

原创值

469

金币

大四_装修达人

Rank: 4

积分
475

社区居民忠实会员社区明星

 楼主| 发表于 2013-02-27 11:03:03 | 显示全部楼层

回 应公子 的帖子

应公子:我在南边,估计要10月份才装修。打算前期先把材料选好,楼主材料准备怎么样了。记得做个详细记录,到时候给我参考一下。 (2013-02-27 11:01) 
好,我会一一记录滴,我准备这个周末去逛
回复

使用道具 举报

468

帖子

0

原创值

497

金币

大四_装修达人

Rank: 4

积分
313

社区居民

发表于 2013-02-27 11:18:20 | 显示全部楼层
散包和清包都累人啊。


房子快要交房了,还没决定哪样装修啊。
回复

使用道具 举报

102

帖子

0

原创值

96

金币

大三_装修里手

Rank: 3Rank: 3

积分
69

社区居民

发表于 2013-02-27 11:21:41 | 显示全部楼层
    
回复

使用道具 举报

141

帖子

0

原创值

248

金币

大三_装修里手

Rank: 3Rank: 3

积分
131

社区居民

发表于 2013-02-27 13:01:25 | 显示全部楼层
看下设计图。预备4月下水,正在找设计师
回复

使用道具 举报

251

帖子

0

原创值

530

金币

大三_装修里手

Rank: 3Rank: 3

积分
152

社区居民

发表于 2013-02-27 14:12:51 | 显示全部楼层
我也打算下水了,过几天收完房就找设计了~
回复

使用道具 举报

您需要登录后才可以回帖 登录 | 立即注册

本版积分规则