QQ登录    

08我家网

2023兔年大吉

【半包】——新中式、轻时尚!——

[复制链接]
  • 所在城市:长沙
  • 所在小区:雨花区
  •  
  • 装修类型:新房装修
  • 装修户型:四房
  •  
  • 装修方式:半包
  • 装修风格:现代简约
  •  
  • 装修预算:20万—30万
  • 开工时间:2013-01-31
  • 前期设计
  • 主体拆装
  • 水电
  • 泥工
  • 木工
  • 油漆
  • 成品安装
  • 软装配饰
  • 毕业
已装修历时4645

34

帖子

0

原创值

19

金币

大二_装修学长

Rank: 2

积分
31

社区居民

发表于 2013-01-31 16:02:09 | 显示全部楼层 |阅读模式
面积:137坪

34

帖子

0

原创值

19

金币

大二_装修学长

Rank: 2

积分
31

社区居民

 楼主| 发表于 2013-01-31 16:07:46 | 显示全部楼层
回复

使用道具 举报

34

帖子

0

原创值

19

金币

大二_装修学长

Rank: 2

积分
31

社区居民

 楼主| 发表于 2013-01-31 16:12:19 | 显示全部楼层
买房就不另外啰嗦了吧,有点小后悔这个楼盘,开发商品质没上去,交通有点小问题。选来选去最后还是没完全满意,但是欢迎别的同学一起探讨楼盘、户型。这套房子主要是父母住,经历过多次上水下水,游击队和独立设计师和装修公司都做过。和鸿扬合作过两次,感觉还不错,这几年也对对别的公司有过很多次了解,这次没悬念还是这家。


先上个开发商户型图
QQ截图20121230121753.png
回复

使用道具 举报

34

帖子

0

原创值

19

金币

大二_装修学长

Rank: 2

积分
31

社区居民

 楼主| 发表于 2013-01-31 16:18:16 | 显示全部楼层
风格真的不知道定什么好,不喜欢复杂,所以地中海、美式、田园均不考虑,中式和欧式也比较烧钱,预算不够,简欧、现代、简约大家做的大多。所以刚开始时是真的无感,上一套房子时就喜欢一位叫“陈禹”的设计师的风格,这次还是中意清新混现代加点点中式吧,哈哈。 CE5A^,EsB 先发套中意的作品吧
1102010023b08c86fc48a5c0f3.jpg
1102010055c9e4f37ad7acf6e4.jpg
1102011303e7d457edd3e4f4cf.jpg
1102011315bb4e2bd620cc7491.jpg
1102012118d9e3a863b035711a.jpg
1102012120c2063bea841f2042.jpg
1102012142eec07ed691b10158.jpg
1102081631eb0e0d9812144e52.jpg
1102091747b76fc436ea21a14e.jpg
110201213366152775d0d694b0.jpg
1102041625642e5946e974dde9.jpg
回复

使用道具 举报

496

帖子

0

原创值

956

金币

大四_装修达人

只要努力,尽力,就是最好的自己

Rank: 4

积分
447

社区居民忠实会员最爱沙发

发表于 2013-01-31 16:21:20 | 显示全部楼层
恭喜恭喜,大家一起下水哈!
回复

使用道具 举报

34

帖子

0

原创值

19

金币

大二_装修学长

Rank: 2

积分
31

社区居民

 楼主| 发表于 2013-01-31 16:21:38 | 显示全部楼层
占楼,也许以后有用
回复

使用道具 举报

34

帖子

0

原创值

19

金币

大二_装修学长

Rank: 2

积分
31

社区居民

 楼主| 发表于 2013-01-31 16:29:14 | 显示全部楼层
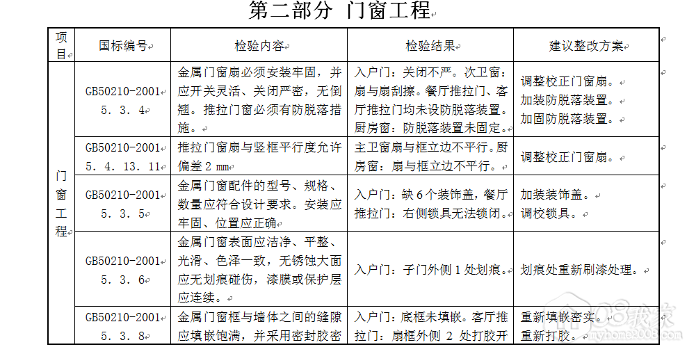
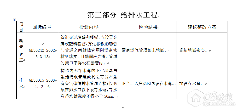
下面我准备帖下验房报告,也好曝光这个极品的开发商,哈哈。验房公司是三川,之前订的星石,结果邻居告知二期的时候开发商推荐过,所以果断换了三川,验房过程还可以,但是报告出来有些数据的错误,还是不够严谨吧!印象最深的是三川客服晚上6点了还态度很好,而且立即联系好验房师给我确定时间回复电话,效率很高。星石的客服就比较懒散,同时感觉不怎么规范。我认为第一次电话和客服人员的接触就可以看出一个公司的管理水平。

1.png
2.png
3.png
4.png
回复

使用道具 举报

34

帖子

0

原创值

19

金币

大二_装修学长

Rank: 2

积分
31

社区居民

 楼主| 发表于 2013-01-31 16:59:23 | 显示全部楼层
平面设计,别的公司的邻居家的,呵呵 未命名.jpg
回复

使用道具 举报

34

帖子

0

原创值

19

金币

大二_装修学长

Rank: 2

积分
31

社区居民

 楼主| 发表于 2013-01-31 17:03:47 | 显示全部楼层
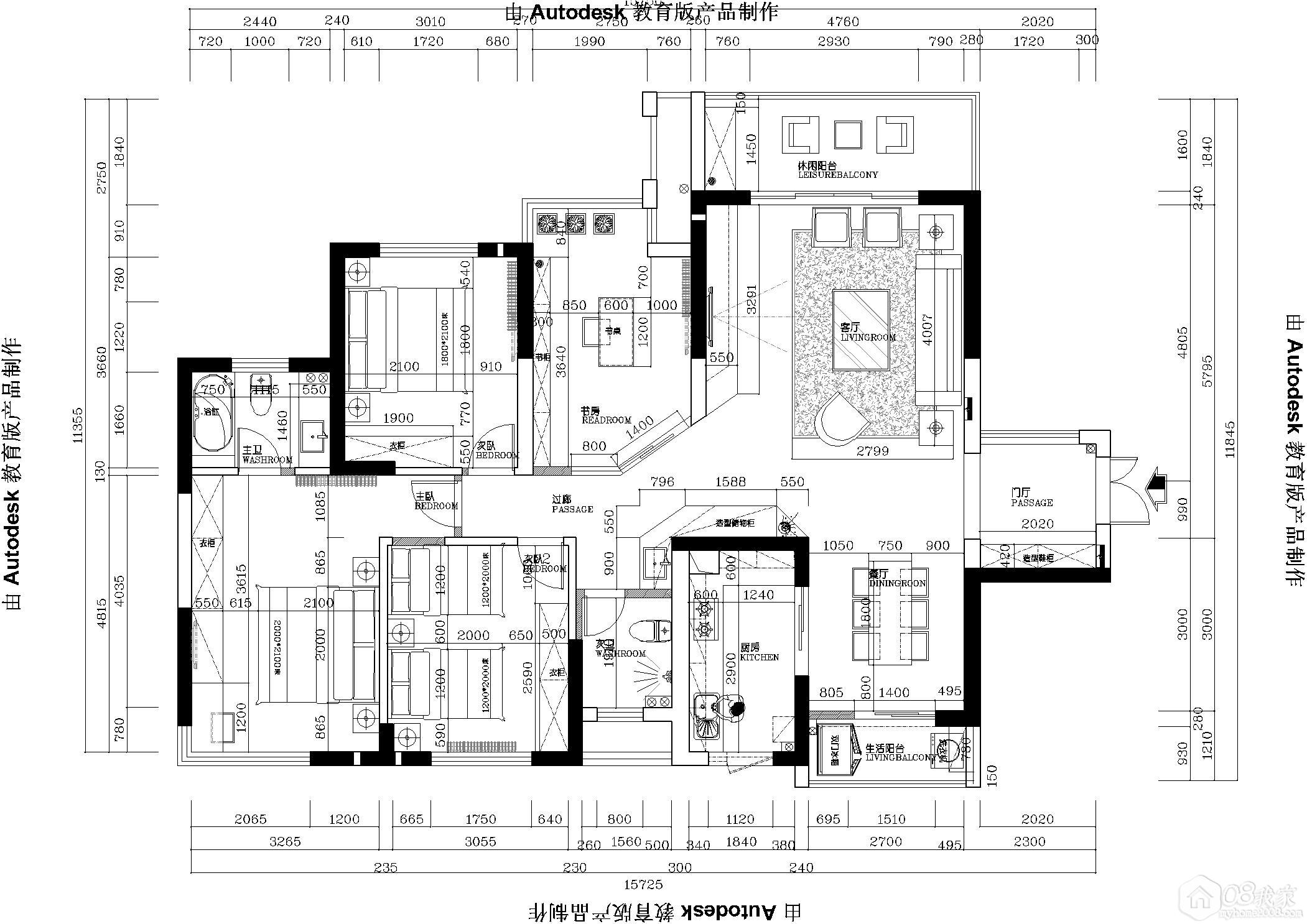
上我家的平面设计图罗,还没最后确定,欢迎大家帮我指出优缺点啊,麻烦了。。。。

一号

一号

一号




二号


二号

二号






回复

使用道具 举报

308

帖子

0

原创值

212

金币

大四_装修达人

Rank: 4

积分
287

社区居民最爱沙发新人进步奖

发表于 2013-01-31 17:16:07 | 显示全部楼层
       下水了 恭喜
回复

使用道具 举报

您需要登录后才可以回帖 登录 | 立即注册

本版积分规则