QQ登录    

08我家网

2023兔年大吉

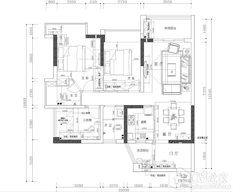
[装修交流]102平的三房两厅半包,9万1千多,到底贵不贵?

[复制链接]

44

帖子

0

原创值

2

金币

大二_装修学长

Rank: 2

积分
40

社区居民

发表于 2013-03-09 23:03:42 | 显示全部楼层 |阅读模式
我这是通用时代102的户型,三房两厅。1月份我一同事准备找点石城南店装修,我也就跟他一起去看看,当时我也没多想,相信同事的眼光,也相信点石是家大公司,就拿出户型图请他们看。大概1个月后,他们在贺龙体育馆搞活动,我也去了,当时说平面图出来了,我看了后提出一些不太满意的地方希望他们改。当时点石要我先交3800的设计费,说到时满6W就可以把这3800减出来,对于设计不满意的地方后期再改。我也就没犹豫就当场刷卡了。
接下来就是与设计师沟通修改平面设计,他们也给出了第一份报价。说到报价,我想多说几句:他们的报价很复杂,有10多页,我一看就头晕,根本不像有的装修公司那样会列出哪个柜子的预算是多少钱,点石的是算到一起,当时给我的报价半包是6.9万的样子。而且报价不能带走,也不能给份电子版的给我,只能是我在点石看,我又不是专业搞这行的,我怎么看得出价格合不合理?估计最多就是看看这预算在不在自己的心里价位之内。
后来我又提出希望改个衣柜、小书桌、主卧电话机柜、梳妆台,还有进门的鞋柜做到墙顶,上周我再去看报价,半包居然要9万多了,当场我就懵了。
装修用的材料也是些点石推荐的很大众化的材料:例如万象天冠板、华润五合一净味漆。
照这样装修报价,我是要全部搞下来,这不要20W出头了?我认为很不值。我这就是个简单装修,敲了点墙,做了几个柜子,这也是很多家庭装修都要做的啊。
大家可能对装修研究了很多,也会有一些装修公司或项目经理。你们帮我看看这个半包到底要多少钱才合理。
这段时间我也在找其他的装修公司或项目经理,希望能找到做工较好,价格较合理的。

平面图

平面图

若有兴趣的,可以把贵公司、项目经理的报价及联系方式留下,较合理的我会与您联系。

44

帖子

0

原创值

2

金币

大二_装修学长

Rank: 2

积分
40

社区居民

 楼主| 发表于 2013-03-09 23:10:21 | 显示全部楼层
沙发我自己坐:
我现在做的家俱有:1、到顶的鞋柜;2餐边柜;3阳台一个柜子;4、客卧到顶的一面柜子;5、主卧有个1.7米左右的衣柜、电视柜、梳妆台、1米左右的小书桌、书桌上面两块木板镶在墙上放书用、还有个小衣柜、6、小孩房里有个榻榻米、一个小衣柜、一个转角书桌带书架。就这么多。
回复

使用道具 举报

44

帖子

0

原创值

2

金币

大二_装修学长

Rank: 2

积分
40

社区居民

 楼主| 发表于 2013-03-10 09:03:31 | 显示全部楼层
怎么看来看去,就我这价格是最贵的啊
回复

使用道具 举报

44

帖子

0

原创值

2

金币

大二_装修学长

Rank: 2

积分
40

社区居民

 楼主| 发表于 2013-03-10 19:40:06 | 显示全部楼层
这两天拿着图纸去问了好多个不同公司的项目经理,他们给我报的价基本上是6W-6.8W之间。而点石给我报的9.2万,可想而知,这装修公司的利润有多高。
回复

使用道具 举报

7878

帖子

0

原创值

3159

金币

荣誉版主

积分
7785

社区居民社区明星终身成就奖宣传大使奖优秀斑竹奖原创先锋奖忠实会员最爱沙发社区劳模原创达人

发表于 2013-03-10 20:11:48 | 显示全部楼层
之前nick考察装饰公司
nick拿出的是130的户型
美迪装饰估算报价8.2w半包
不过项目没有你这么多
仅供参考
点石的报价还没有出来
届时再做汇报

另外万象天冠和华润的油漆
现在装饰公司一般都是这个配置了
要用进口油漆
估计就不是这个价格了
不过这个配置的材料完全够了
回复

使用道具 举报

44

帖子

0

原创值

2

金币

大二_装修学长

Rank: 2

积分
40

社区居民

 楼主| 发表于 2013-03-10 23:21:53 | 显示全部楼层
谢谢nick的回复,您能回复我的贴,我已经很感荣幸了。
到时我关注您的有关点石的报价。
您这130平,还只要8.2W。我这才102平,居然要9.2W。我这项目无非也就是多做了点柜子啊,其他的都是很普通的。
回复

使用道具 举报

7878

帖子

0

原创值

3159

金币

荣誉版主

积分
7785

社区居民社区明星终身成就奖宣传大使奖优秀斑竹奖原创先锋奖忠实会员最爱沙发社区劳模原创达人

发表于 2013-03-11 00:13:37 | 显示全部楼层

回 精白沙 的帖子

精白沙:谢谢nick的回复,您能回复我的贴,我已经很感荣幸了。
到时我关注您的有关点石的报价。
您这130平,还只要8.2W。我这才102平,居然要9.2W。我这项目无非也就是多做了点柜子啊,其他的都是很普通的。
(2013-03-10 23:21)
欢迎多来装修交流版块
交流装修心得
分享装修经验
回复

使用道具 举报

219

帖子

0

原创值

131

金币

大三_装修里手

Rank: 3Rank: 3

积分
196

社区居民新人进步奖最爱沙发

发表于 2013-03-11 00:33:44 | 显示全部楼层
找装修公司做柜子,特别是大的装修公司,他们的柜子价格是很高的
绝对超过你在外面定制的价格
你做的木工多,所以你的价格就高了
如果你拿掉这些木工或者少做些,价格立马就下来了
回复

使用道具 举报

76

帖子

0

原创值

9

金币

大三_装修里手

Rank: 3Rank: 3

积分
68

社区居民

发表于 2013-03-11 09:00:56 | 显示全部楼层
102平 9.1W
回复

使用道具 举报

13

帖子

0

原创值

13

金币

大一_装修新生

南陈嗲

Rank: 1

积分
16

社区居民忠实会员

发表于 2013-03-11 22:54:02 | 显示全部楼层
额的神,900/平,可以啊。我这准备装修的人心都碎了一地
回复

使用道具 举报

您需要登录后才可以回帖 登录 | 立即注册

本版积分规则