QQ登录    

08我家网

2023兔年大吉

叮叮当当现代简约小三房三月植树动土了

[复制链接]

115

帖子

0

原创值

43

金币

大四_装修达人

Rank: 4

积分
427

社区居民

 楼主| 发表于 2013-03-17 13:03:34 | 显示全部楼层
呵呵,呆了十年最后赌气88了。该死的装修队放我鸽子还要过几天来,今天三湘家美淘货去,雨有点大呵!
回复

使用道具 举报

115

帖子

0

原创值

43

金币

大四_装修达人

Rank: 4

积分
427

社区居民

 楼主| 发表于 2013-03-17 23:44:40 | 显示全部楼层
今天雨虽然大,想着能节约些银子所以还是义无反顾跑去了三湘,小有收获,买了老板的8305的顶吸式烟机和一款不锈钢面的灶一共花了4688,有款新的黑色侧吸式的,店员反复强调说侧吸的不如那款顶吸的,我已经晕了,所以先下了单,不过说了有可能换,回来上网查查哪款效果反应好些。
    本科说是九牧的老板弟弟做的,忽悠下又买了款特价的淋浴套装,799元,最后到楼上的一家放着08装修日记水牌的荣泰建材,看见有几位团友在里面,三分钟也没细问,就随便订了款小城故事,折后100一平的12个厚的仿实木地板,店员小余人还不错,说08团友都是订的实木的让我考虑可以换,还给了我南湖他哥灯饰店的号码,说进价给我买灯。
  看来08还是给我省了一些银子呵。图片上不了,数据线丢了,下次补上
回复

使用道具 举报

115

帖子

0

原创值

43

金币

大四_装修达人

Rank: 4

积分
427

社区居民

 楼主| 发表于 2013-03-17 23:51:42 | 显示全部楼层
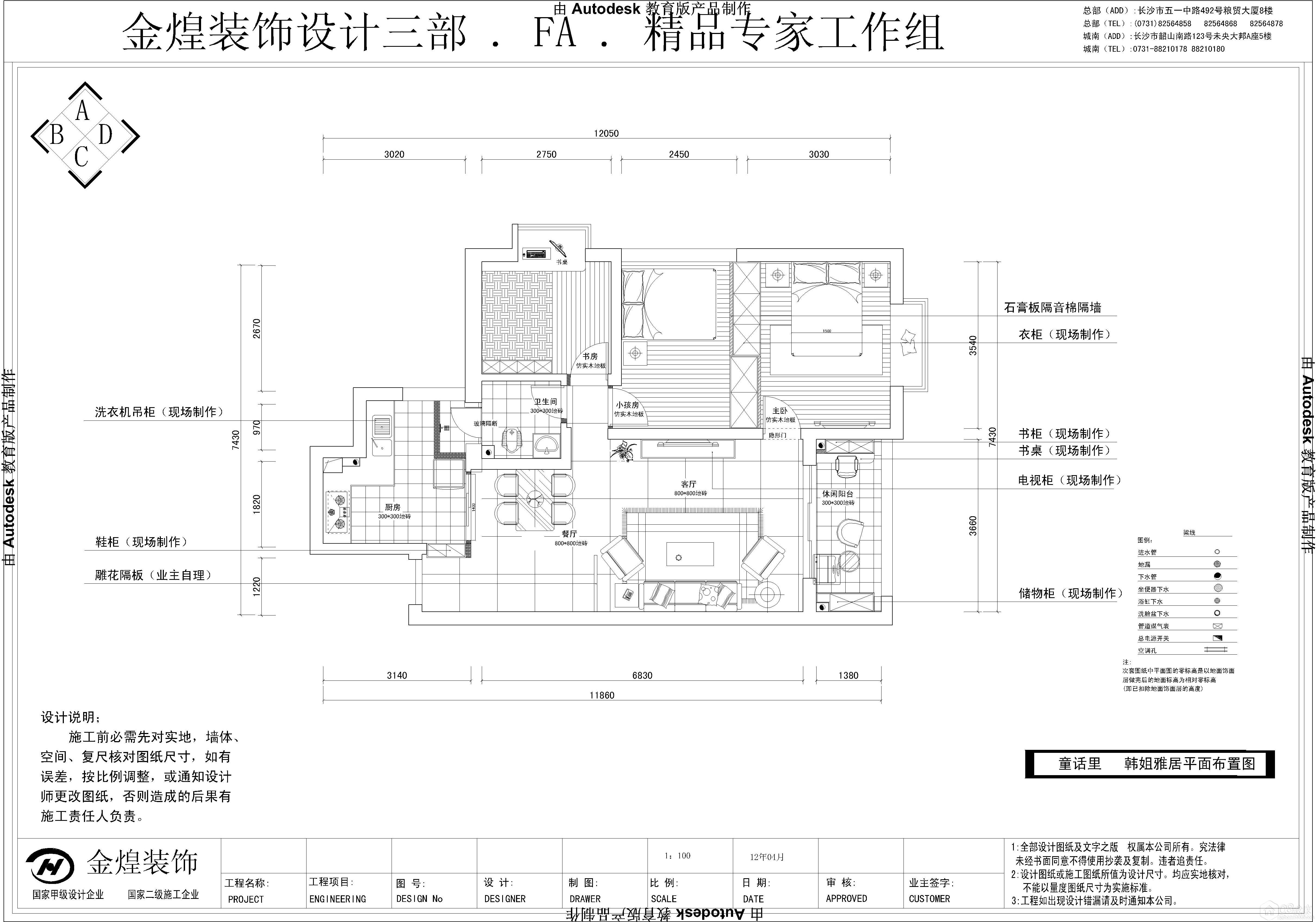
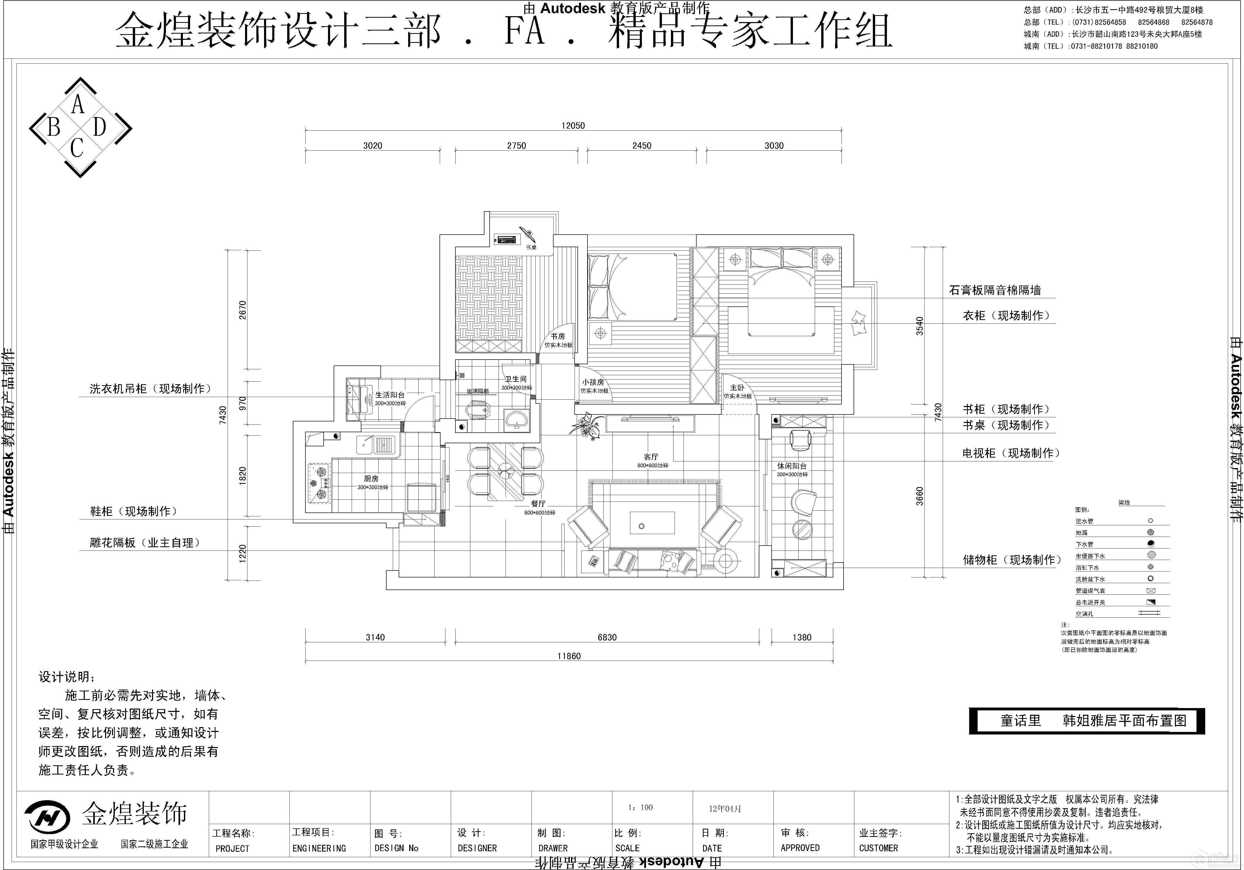
有些小纠结,今天在朋友家吃饭碰到一个做设计师的,顺便给他看了设计图,他给提了些意见,有哪位高手给我看看,厨房边的生活阳台要不要分到厨房和卫生间呵。 童话里韩姐2.25方案二.jpg
童话里韩姐2.2修改后.jpg
,两种方案各有千秋,取消生活阳台的好处是,餐厅面积大了,卫生间淋浴房位置有了,缺点是北面晾衣服的空间没了,直接挂在南向阳台影响美观。要做决定了,后天要进场了,方案还没定,有高手出点主意呵
回复

使用道具 举报

115

帖子

0

原创值

43

金币

大四_装修达人

Rank: 4

积分
427

社区居民

 楼主| 发表于 2013-03-17 23:54:54 | 显示全部楼层
今天在三湘看到衣柜移门有些做特价的,TX们要是尺寸合适的还是可以选的,质量挺好,208一平方,可惜他们每款只有两扇,我要三扇的。
回复

使用道具 举报

7346

帖子

0

原创值

2807

金币

荣誉版主

积分
6084

社区居民忠实会员最爱沙发社区明星社区劳模灌水天才奖

发表于 2013-03-19 10:13:34 | 显示全部楼层

回 俏家居 的帖子

俏家居:呵呵,小编就回帖啦,感动得唏里哗啦,给自己打下气,希望能坚持每日更新下去,万里长征路开始啦 (2013-03-15 23:10) 
嘿嘿,般若会一直过来的,亲亲加油!!
回复

使用道具 举报

7346

帖子

0

原创值

2807

金币

荣誉版主

积分
6084

社区居民忠实会员最爱沙发社区明星社区劳模灌水天才奖

发表于 2013-03-19 10:14:15 | 显示全部楼层

回 俏家居 的帖子

俏家居:今天雨虽然大,想着能节约些银子所以还是义无反顾跑去了三湘,小有收获,买了老板的8305的顶吸式烟机和一款不锈钢面的灶一共花了4688,有款新的黑色侧吸式的,店员反复强调说侧吸的不如那款顶吸的,我已经晕了,所以先下了单,不过说了有可能换,回来上网查查哪款效果反应好些。
& .. (2013-03-17 23:44) 
亲亲,你学着搭个电梯嘛,方便同学们阅读呢...
回复

使用道具 举报

7346

帖子

0

原创值

2807

金币

荣誉版主

积分
6084

社区居民忠实会员最爱沙发社区明星社区劳模灌水天才奖

发表于 2013-03-19 10:15:47 | 显示全部楼层

回 俏家居 的帖子

俏家居:有些小纠结,今天在朋友家吃饭碰到一个做设计师的,顺便给他看了设计图,他给提了些意见,有哪位高手给我看看,厨房边的生活阳台要不要分到厨房和卫生间呵。,两种方案各有千秋,取消生活阳台的好处是,餐厅面积大了,卫生间淋浴房位置有了 .. (2013-03-17 23:51) 
呜呜,般若不懂,只围观,不分析.....
回复

使用道具 举报

7346

帖子

0

原创值

2807

金币

荣誉版主

积分
6084

社区居民忠实会员最爱沙发社区明星社区劳模灌水天才奖

发表于 2013-03-19 10:16:09 | 显示全部楼层

回 俏家居 的帖子

俏家居:今天在三湘看到衣柜移门有些做特价的,TX们要是尺寸合适的还是可以选的,质量挺好,208一平方,可惜他们每款只有两扇,我要三扇的。 (2013-03-17 23:54) 
亲,是哪个牌子的衣柜啊...
回复

使用道具 举报

141

帖子

0

原创值

164

金币

大三_装修里手

Rank: 3Rank: 3

积分
115

社区居民

发表于 2013-03-19 13:09:04 | 显示全部楼层
祝装修顺利   
回复

使用道具 举报

115

帖子

0

原创值

43

金币

大四_装修达人

Rank: 4

积分
427

社区居民

 楼主| 发表于 2013-03-19 15:08:59 | 显示全部楼层

回 乐哈哈 的帖子

乐哈哈:祝装修顺利     (2013-03-19 13:09) 
呵呵,同是菜鸟级,赶紧下水呵!
回复

使用道具 举报

您需要登录后才可以回帖 登录 | 立即注册

本版积分规则