QQ登录    

08我家网

2023兔年大吉

大宝再战装修,速度围观切砖神器。

[复制链接]

191

帖子

0

原创值

127

金币

大三_装修里手

Rank: 3Rank: 3

积分
160

社区居民

发表于 2013-05-04 15:11:48 | 显示全部楼层
此贴必火!先占个位!
回复

使用道具 举报

257

帖子

0

原创值

289

金币

大四_装修达人

Rank: 4

积分
223

社区居民忠实会员

 楼主| 发表于 2013-05-07 11:04:03 | 显示全部楼层
表哥家的图纸终于出来了。一同欣赏吧!暂时只发三张,有需要的TX可以站里短我,留下QQ邮箱,整套图纸我这里都有。
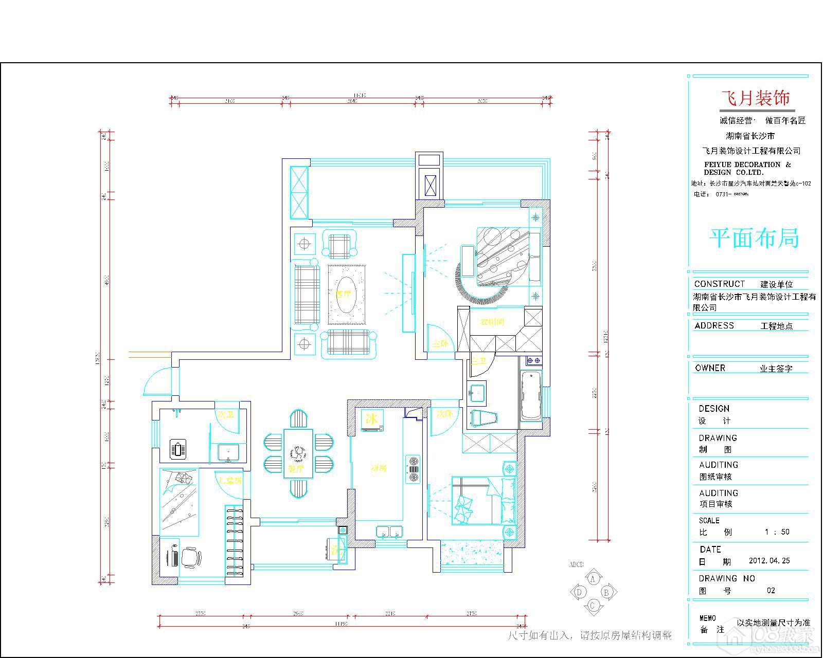
碧桂园平面布局.jpg
碧桂园衣帽间.jpg
碧桂园电视墙.jpg


这个就是最终的平面方案了,还是得到了我和表哥的认可。在几乎不敲墙,减少支出的情况下,考虑到主卧实在有够长那为何不加个衣帽间。于是图纸上表现出来,还是很满意的。基本上这个设计从风水和经济方面来说,算是比较普遍的设计了,接下来就看关于瓷砖和电视背景的选择和制作。
回复

使用道具 举报

325

帖子

0

原创值

309

金币

大四_装修达人

Rank: 4

积分
273

社区居民忠实会员

发表于 2013-05-07 22:13:11 | 显示全部楼层
来占个座
回复

使用道具 举报

257

帖子

0

原创值

289

金币

大四_装修达人

Rank: 4

积分
223

社区居民忠实会员

 楼主| 发表于 2013-06-19 15:39:18 | 显示全部楼层
真心的对不起大家,本人由于太懒落下了很多功课,特此道歉,希望各位原谅。  

工地在5月份就已经进场了,目前已经基本接近尾声就剩下门,扣板吊顶,和橱柜安装了。

废话不多说先交作业吧!

水电篇

水电安装的话由于万恶的开发商总闸开关只安装了一个空开所以工程量就大了,还好小袁师傅的手艺之前就了解过,比较放心。

关于电路改造,个人还是满意的,墙上的线横平竖直,没有多走线。

关于水电的心得以下为个人总结:

•水电改之前,最好先确定要买的厨房电器的样式,家里插座开关的的大概位置,家具电器的大概摆放位置,这样,水电的大概走向,心里会有个数,不至于到时候被水电工牵着鼻子走,当然,水电工的意见并不是完全不能听取,取其精华去其糟粕。
•插座其实我觉得并不是装得越多越好,虽然后期可能会出现你木有想到,但是会需要用到的地方,但是这并不代表一定要尽可能多的装。我觉得厨房可以适当多几个,书房也可以适当多几个,客厅电视那边可以多考虑一两个,其他地方,只要有比较常用的就可以了,别小看这些开关,算下来搞不好大几百就木有了。
•水管要不然做到冷热分开,要不然就全部用热的PPR管,因为冷水管不耐热,时间长了容易裂。线管要用UPVC阻燃管,一般常用的是16A,20A,16的可以穿三根线,20的可以穿5-6根线。
•水电路的走向并非所有都是横平竖直才最好,就我个人了解到的,水电改造,墙上开槽要做到横平竖直,地上就可以走点对点的,这样既节省材料,也节省费用。但是装修公司肯定不愿意,因为会减少他们的收入,毕竟水电改是他们赚钱的大头。

1,水路验收:水改完毕,用软管连接已改造冷热水管,保证是整个室内管道的冷热水管同时打压;安装好打压器,打压器充满水,管内空气放掉,使整个回路里面全是水;关闭水表及外面闸阀(一定要做好保护)。然后开始打压,8公斤的水打压30分钟不渗不漏,掉压不超过0。05MP为合格

2、强电验收:采用500V绝缘电阻表测试各回路绝缘电阻值,同时可考验所用电线质量,不达标的电线可能会被击穿;

3、弱电采用专用工具测试:专用网络测试工具测试网络8芯信号是否畅通;载波器铜轴电缆测试工具,万用表等完全测试合格后再进行下一步施工工作。

P1040882.JPG

P1040883.JPG

P1040884.JPG

P1040885.JPG

P1040886.JPG

P1040887.JPG

P1040888.JPG

P1040903.JPG

P1040904.JPG

P1040905.JPG

P1040906.JPG

P1040907.JPG

P1040908.JPG

P1040909.JPG

P1040910.JPG

P1040911.JPG

P1040912.JPG
回复

使用道具 举报

1753

帖子

0

原创值

504

金币

装修大学_博士生

Rank: 6Rank: 6

积分
1586

社区居民忠实会员社区劳模最爱沙发社区明星

发表于 2013-06-19 16:09:00 | 显示全部楼层
   已装修为乐的牛人    佩服佩服
回复

使用道具 举报

2

帖子

0

原创值

2

金币

大一_装修新生

Rank: 1

积分
2

社区居民

发表于 2013-06-19 17:25:47 | 显示全部楼层
持续关注,学习,
回复

使用道具 举报

2

帖子

0

原创值

7

金币

大一_装修新生

Rank: 1

积分
2

社区居民

发表于 2013-06-19 17:29:37 | 显示全部楼层
看这个老手的东西 还是学到蛮多的
回复

使用道具 举报

2

帖子

0

原创值

7

金币

大一_装修新生

Rank: 1

积分
2

社区居民

发表于 2013-06-19 17:29:57 | 显示全部楼层
顶起  持续关注
回复

使用道具 举报

1449

帖子

0

原创值

2298

金币

装修大学_研究生

Rank: 5Rank: 5

积分
1194

社区居民忠实会员社区劳模

发表于 2013-06-19 17:31:26 | 显示全部楼层
     过来学习一下!
回复

使用道具 举报

1

帖子

0

原创值

2

金币

大一_装修新生

Rank: 1

积分
1

社区居民

发表于 2013-06-19 17:42:36 | 显示全部楼层
马上就要装修了  终于找到了学习的好地方!!
回复

使用道具 举报

您需要登录后才可以回帖 登录 | 立即注册

本版积分规则