QQ登录    

08我家网

2023兔年大吉

简约风格装修

[复制链接]

1774

帖子

0

原创值

4171

金币

装修大学_研究生

Rank: 5Rank: 5

积分
1248

社区居民忠实会员社区明星

发表于 2010-01-23 17:31:27 | 显示全部楼层 |阅读模式
完全没有准备的情况下,我的装修已经进场了。一个小女子啊,我可怎么办啦。只好混进08群,靠大家指点喽

1774

帖子

0

原创值

4171

金币

装修大学_研究生

Rank: 5Rank: 5

积分
1248

社区居民忠实会员社区明星

 楼主| 发表于 2010-01-23 20:59:37 | 显示全部楼层
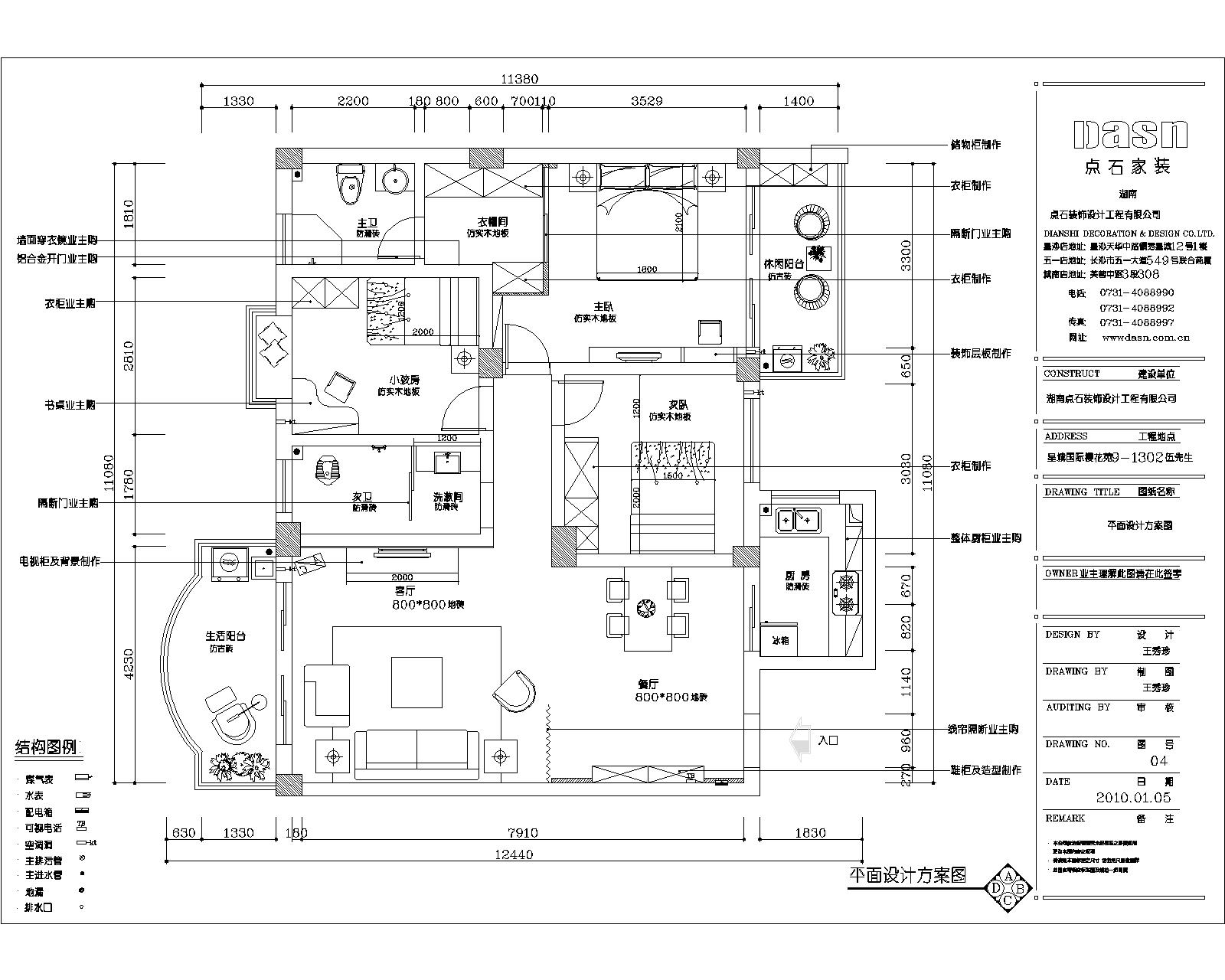
首先附上平面图
-Model.jpg
回复

使用道具 举报

3933

帖子

0

原创值

91

金币

装修大学_教授

本人,男性。

Rank: 7Rank: 7Rank: 7

积分
3508

社区明星

发表于 2010-01-23 21:52:30 | 显示全部楼层
呵呵,楼主将帖子转到装修日记版块去吧。
回复

使用道具 举报

5854

帖子

0

原创值

1707

金币

装修大学_教授

Rank: 7Rank: 7Rank: 7

积分
5878

社区居民社区明星认证团长最爱沙发宣传大使奖特殊贡献奖

发表于 2010-01-23 23:49:18 | 显示全部楼层
是呵,每天记日记,留作纪念~~
回复

使用道具 举报

您需要登录后才可以回帖 登录 | 立即注册

本版积分规则