QQ登录    

08我家网

2023兔年大吉

【156㎡】旧房改造装修日记 (进场施工中。。。)

[复制链接]
  • 所在城市:长沙
  • 所在小区:莱茵城对面宿舍
  •  
  • 装修类型:新房装修
  • 装修户型:四房
  •  
  • 装修方式:半包
  • 装修风格:现代简约
  •  
  • 装修预算:10万—20万
  • 开工时间:2013-04-13
  • 前期设计
  • 主体拆装
  • 水电
  • 泥工
  • 木工
  • 油漆
  • 成品安装
  • 软装配饰
  • 毕业
已装修历时4581

20

帖子

0

原创值

27

金币

大一_装修新生

Rank: 1

积分
19

社区居民

发表于 2013-04-06 13:47:06 | 显示全部楼层 |阅读模式
[mp3=0]http://www.eoezone.com/update/2012/MUSIC/201204/Carly_Rae_Jepsen_Call_Me_Maybe.mp3[/mp3]
房型:四室两厅一厨两卫
面积:156㎡
色调:白色
风格:现代简约
装修公司:艺千装饰
装修工程款:5-6W(半包)
装修工期:75天
由于是90年代的旧房,虽然当时装修时是全实木装修,毕竟有十多年的历史,而且一直是出租出去   已经面目全非   SO..老婆和我一致决定重新装修
一直纠结是否要找游击队,但毕竟是老房,问题比较多,而且经验不足,还是找装修公司靠得住,对比了苹果公司的泥巴公社和艺千等几个装修公司的设计图和预算后,还是决定找艺千装饰
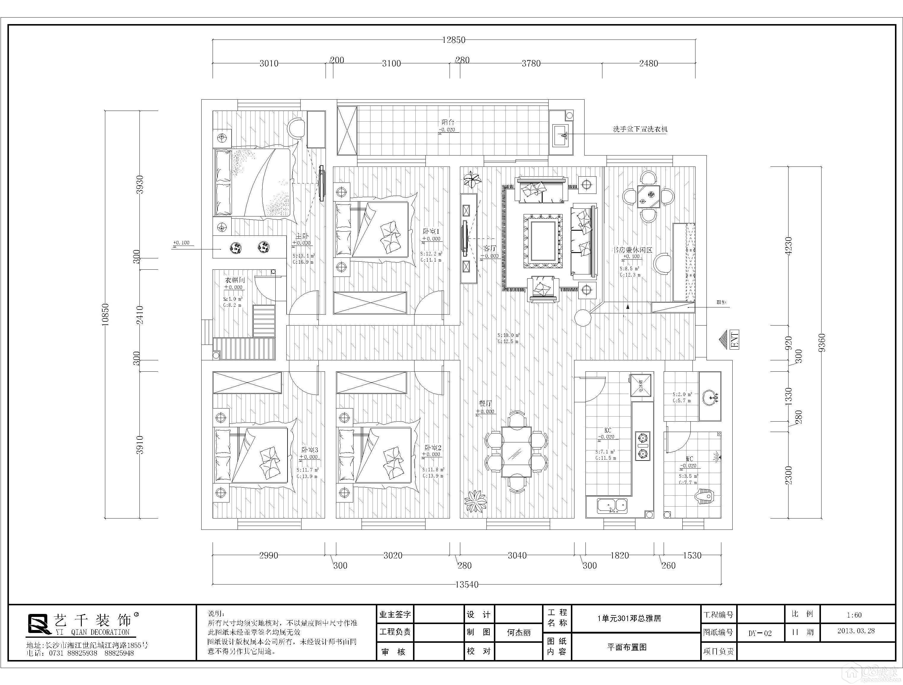
主要改造项目是客厅、餐厅、卫生间、厨房、主卧室、水电改造
装修平面图:
邓总1-Model.jpg




先上几张旧房图片
主卫

旧房2.jpg


客厅
旧房5.jpg


餐厅天花
旧房8.jpg


厨房
旧房6.jpg


过道
旧房4.jpg



洗漱区
旧房7.jpg


主卧室 旧房3.jpg


艺千出的客厅和餐厅效果图

设计图2.jpg


由于客餐厅面积比较大,面积达到了50㎡  所以将客厅后半隔成了一个独立的休闲区   总算圆了老婆大大的榻榻米的愿望
设计图1.jpg

20

帖子

0

原创值

27

金币

大一_装修新生

Rank: 1

积分
19

社区居民

 楼主| 发表于 2013-04-06 13:47:49 | 显示全部楼层
经过反复的对比价格,装修第一件主材今天总算到货了,装修战役拉开帷幕。。。。 艾肯.jpg
回复

使用道具 举报

20

帖子

0

原创值

27

金币

大一_装修新生

Rank: 1

积分
19

社区居民

 楼主| 发表于 2013-04-06 14:01:41 | 显示全部楼层
4月2日  跟着糖水泡泡一起到捷西看橱柜 ,咨询了价格还算公道直接决定参加活动
老婆大大相中了这套   
18MM露水河基材E1柜体,宝马烤漆门板,捷西石英石台面(压铸),奥地利百隆标配铰链,捷西三节轨抽屉三个、银拉丝金属扫脚线,ABS地脚,铝拉手,防尘角,孔位塞,金属吊码,台面边型,台面上、下挡水。 OWT5Bjl  
水槽部分柜体免费升级为多层实木防水柜体
捷西橱柜.jpg

昨天联系店长交定金500  等待量尺寸~~~~
回复

使用道具 举报

20

帖子

0

原创值

27

金币

大一_装修新生

Rank: 1

积分
19

社区居民

 楼主| 发表于 2013-04-06 14:05:47 | 显示全部楼层
将网购进行到底。。。。京东家装节。
卫浴一直很头痛, 登勒卫浴  网络口碑还不错
全铜花洒、洗衣机龙头、面盆龙头、2*角阀、浴室柜、浴室盆一起2500元,实际支付2400元
京东链接:
花洒:http://item.jd.com/1004561921.html

花洒.jpg

单冷洗衣机龙头:http://item.jd.com/1002844944.html
洗衣机龙头.jpg

龙头.jpg



面盆龙头:http://item.jd.com/1002448223.html

角阀:http://item.jd.com/1003075264.html
三角阀.jpg


洗脸盆、浴室柜:http://item.jd.com/1006074094.html
洗脸盆.jpg
回复

使用道具 举报

1344

帖子

0

原创值

1622

金币

装修大学_研究生

通用时代-董妞

Rank: 5Rank: 5

积分
1194

社区居民忠实会员社区劳模社区明星最爱沙发

发表于 2013-04-06 14:09:04 | 显示全部楼层
恭喜楼主下水~旧房改造也很辛苦的!
回复

使用道具 举报

20

帖子

0

原创值

27

金币

大一_装修新生

Rank: 1

积分
19

社区居民

 楼主| 发表于 2013-04-06 14:32:40 | 显示全部楼层
咨询过设计师后决定购买   德洛特  的灯饰   
餐厅灯:http://item.jd.com/1003430224.html
餐厅灯.jpg


客厅灯:http://item.jd.com/1004193199.html
客厅灯.jpg


卧室灯:http://item.jd.com/635332.html
飞利浦顶灯.jpg
回复

使用道具 举报

20

帖子

0

原创值

27

金币

大一_装修新生

Rank: 1

积分
19

社区居民

 楼主| 发表于 2013-04-06 15:15:17 | 显示全部楼层
4月13日  听装修公司的谭总监说是一个好日子,上午9:00装修公司如约进场,在客厅的中间放了鞭炮,呛死我了~~照都没拍  失策塞 ~~                          装修公司总监说这是公司的规定,图吉利吗!
本来今天想去工地补拍几张,结果一进去里面已经一片狼藉,全部的装修基本都拆完了,不由感叹装修师傅的效率啊~~~~~
DSC_0123.jpg
DSC_0124.jpg
DSC_0125.jpg
DSC_0126.GIF
回复

使用道具 举报

20

帖子

0

原创值

27

金币

大一_装修新生

Rank: 1

积分
19

社区居民

 楼主| 发表于 2013-04-06 15:15:41 | 显示全部楼层
4月13日  开工大吉   (陆续更新。。。)
回复

使用道具 举报

20

帖子

0

原创值

27

金币

大一_装修新生

Rank: 1

积分
19

社区居民

 楼主| 发表于 2013-04-06 15:28:39 | 显示全部楼层
挖坑  挖坑   挖坑   挖坑   挖坑   4月13日开工大吉
回复

使用道具 举报

20

帖子

0

原创值

27

金币

大一_装修新生

Rank: 1

积分
19

社区居民

 楼主| 发表于 2013-04-06 15:33:41 | 显示全部楼层
继续挖坑   陆续更新中。。。。
回复

使用道具 举报

您需要登录后才可以回帖 登录 | 立即注册

本版积分规则