QQ登录    

08我家网

2023兔年大吉

2013年保利麓谷林语 远程 清包  硬装基本上完了,超14W了……

  [复制链接]

266

帖子

0

原创值

101

金币

大四_装修达人

Rank: 4

积分
240

社区居民忠实会员

 楼主| 发表于 2013-05-10 23:01:36 | 显示全部楼层
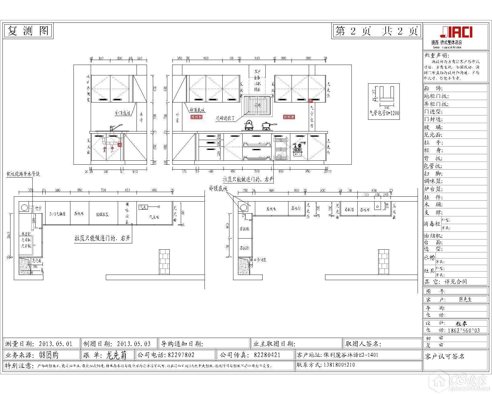
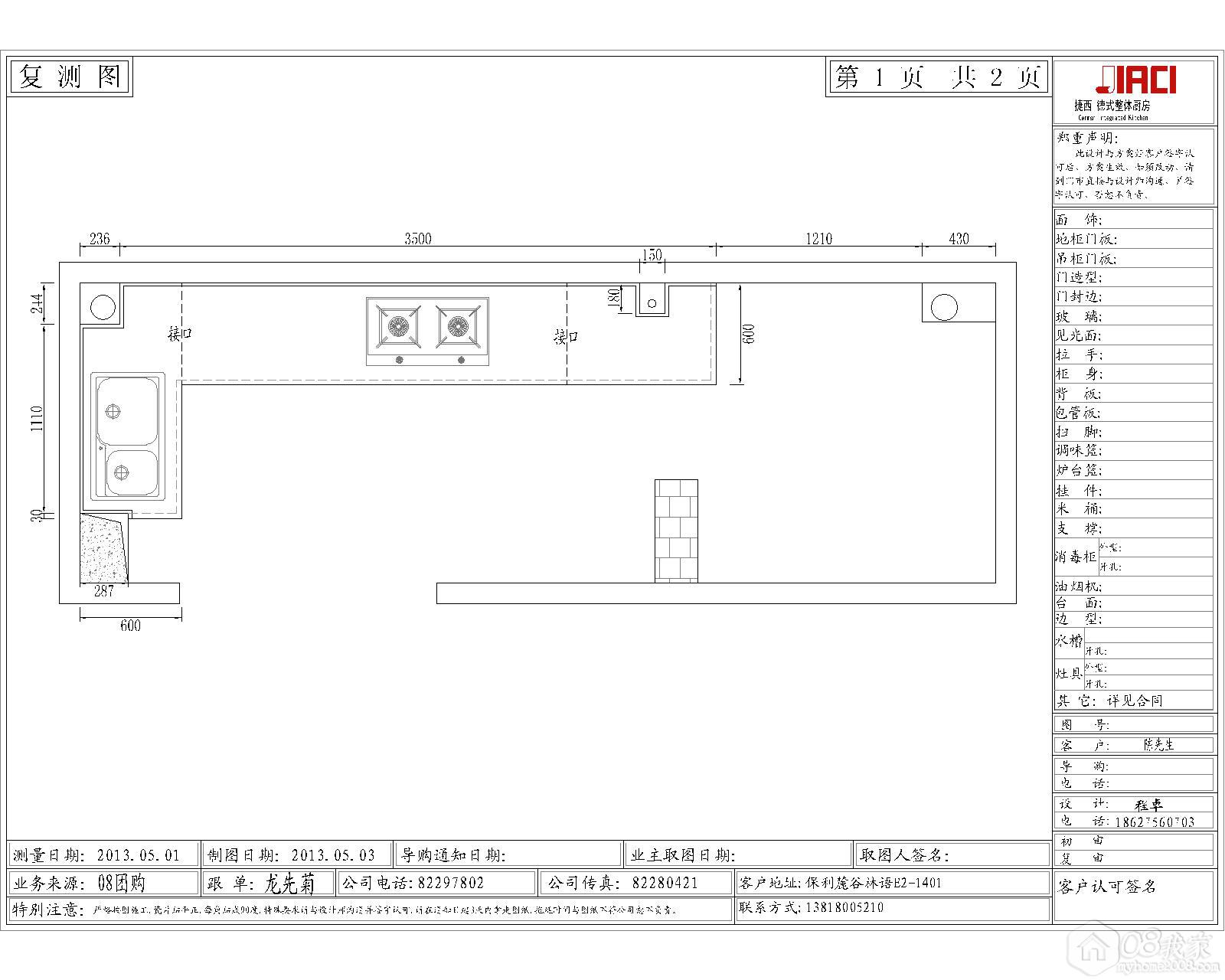
8,捷西橱柜篇

     在我想要订橱柜的时候,刚好糖水泡泡团长开了捷西橱柜的团,加上自己清明节回去,其实团是4/15-4/16日开团的,我提前下单了,所以大家参团时的抽奖和赠品都与我无缘.  http://www.08wojia.com/thread-41584-1-1.html(此团)

         很久以前就就有在上海去看过欧派的橱柜,觉得细节很好,档次都很不错,颜色也不错,然后五金配件也很合我心意,只是价格有点小贵!在上海遇到打折或做活动我家做4.6延米的话,可能在1.2万做到.但这是在上海感觉在长沙,报价更贵,动不动3K-4K一延米,算下来,就贵多了.

         后来在08团上看到经常有人说东方邦太的橱柜,以为至少比欧派的要便宜点不,后来看到朋友贴的价格,也还是觉得贵了,超过我的预算蛮多.
         再后来就看到捷西要开团了,但是糖水泡泡没有把价格报出来.后来我就订了这款(套餐二、18MM露水河基材E1柜体,韩国瓦栏双饰面门板,捷西石英石台面(压铸),奥地利百隆标配铰链,捷西三节轨抽屉三个、银拉丝金属扫脚线,ABS地脚,铝拉手,防尘角,孔位塞,金属吊码,台面边型,台面上、下挡水。 水槽部分柜体免费升级为多层实木防水柜体。)想省钱的孩子都不敢选高档的了.觉得自己够用就行了.

附上橱柜图纸:


   
保利麓谷林语E2-1401-Model.jpg1.jpg
保利麓谷林语E2-1401-Model.jpg
回复

使用道具 举报

266

帖子

0

原创值

101

金币

大四_装修达人

Rank: 4

积分
240

社区居民忠实会员

 楼主| 发表于 2013-05-10 23:07:40 | 显示全部楼层
9 ,1200元的普乐美水槽,和橱柜一起订的!

         在捷西橱柜店下订单的时候, 老公看上了普乐美的一款水槽.1200大洋.  那时团里有艾肯的水槽才799,老公还是要下这款普乐美的单.
水槽没省到钱,要打老公屁屁!

        订橱柜可以免费做一个台下盆,就一起订了,还送沥水篮什么的。后面回家了,在网上查了一下,官网上也要1188元,还不算亏太多!
T2uiNBXnhNXXXXXXXX_!!642950229[1].jpg

店内拍的水槽图

店内拍的水槽图
回复

使用道具 举报

382

帖子

0

原创值

292

金币

大四_装修达人

Rank: 4

积分
355

社区居民忠实会员社区劳模

发表于 2013-05-10 23:08:24 | 显示全部楼层

回 每文 的帖子

每文:感觉怎么样呢? (2013-05-10 22:24) 
你多大的房子,全房改造吗?
回复

使用道具 举报

266

帖子

0

原创值

101

金币

大四_装修达人

Rank: 4

积分
240

社区居民忠实会员

 楼主| 发表于 2013-05-10 23:12:04 | 显示全部楼层

回 猫即 的帖子

猫即:你多大的房子,全房改造吗? (2013-05-10 23:08)
没有全房改造,但是有个房间是结构板,开发商送的,里面什么都没有的,没有线,连开关线都没走的.
房子套内还有125平左右!
回复

使用道具 举报

266

帖子

0

原创值

101

金币

大四_装修达人

Rank: 4

积分
240

社区居民忠实会员

 楼主| 发表于 2013-05-10 23:47:43 | 显示全部楼层
10   我家捷西橱柜出价格了!

金刚石台面:4.52米, 地柜:4.21米,吊柜3.59米,见光面1.35米,包管0.6米,调味篮*1赠送,双层碗拉蓝*1个
图为我家的台面颜色和柜体颜色,手机拍的,不清楚,大家凑和着看吧,呵呵!

总计:6887元

台面颜色

台面颜色

柜体咖啡色

柜体咖啡色
回复

使用道具 举报

266

帖子

0

原创值

101

金币

大四_装修达人

Rank: 4

积分
240

社区居民忠实会员

 楼主| 发表于 2013-05-11 00:07:51 | 显示全部楼层
11。4/25日,我家少量木工吊顶,家具都定制的,后面再说。
        我家客厅和餐厅需要吊顶,还有入户花园和主卧玄关处,几处吊顶,卧室和房间也不装石膏线。
木工师傅是我定制衣柜的美女介绍的,手艺还不错,做工也快。
       我家吊顶,加上我公公,我公公也是木工的帮忙,一起结了800元工资给师傅。

木工郭师傅:15874180602
DSC01396.JPG
DSC01397.JPG
DSC01398.JPG
DSC01399.JPG
DSC01404.JPG
DSC01405.JPG
DSC01406.JPG
DSC01418.JPG
回复

使用道具 举报

266

帖子

0

原创值

101

金币

大四_装修达人

Rank: 4

积分
240

社区居民忠实会员

 楼主| 发表于 2013-05-11 10:21:06 | 显示全部楼层
烦死了,台式电脑莫名其妙开不了机了,好多资料都弄不出来,
我是用我老公的QQ号注册的08团,大家不要误会,一个男的,怎么这样。。。。。
回复

使用道具 举报

1万

帖子

628

原创值

1万

金币

荣誉版主

积分
8155

社区居民忠实会员社区劳模最爱沙发社区明星

发表于 2013-05-12 10:34:33 | 显示全部楼层
     原来是个美女
回复

使用道具 举报

266

帖子

0

原创值

101

金币

大四_装修达人

Rank: 4

积分
240

社区居民忠实会员

 楼主| 发表于 2013-05-13 16:50:39 | 显示全部楼层
我写的贴子没有技术含量哦,没有人气,呵呵,那就当作自己的记录,记录下自己买的一些东西吧!呵呵!也确实不是很省钱!现在硬装估计得接近13万了!没有控制好预算,然后自己不在工地,有些地方还真是不好操作,想省的地方也省不了,现在我家已经进入油漆阶段了。我泥工的图都还没弄好!没有回去,泥工有几个地方,也没给我弄好。看来远程装修,还是不行呀,自己的思想传达不到位,给工人说了,却不按业主的方法做,真是头痛!
回复

使用道具 举报

2707

帖子

0

原创值

2656

金币

装修大学_博士生

Rank: 6Rank: 6

积分
2577

社区居民忠实会员社区劳模最爱沙发社区明星

发表于 2013-05-14 12:21:58 | 显示全部楼层

回 每文 的帖子

每文:我写的贴子没有技术含量哦,没有人气,呵呵,那就当作自己的记录,记录下自己买的一些东西吧!呵呵!也确实不是很省钱!现在硬装估计得接近13万了!没有控制好预算,然后自己不在工地,有些地方还真是不好操作,想省的地方也省不了,现在我家已经进入油漆阶段了。我泥工的图都还没 .. (2013-05-13 16:50)
LZ才是厉害银,远程控制装修好需要胆识和操控能力的
我也要开工了。一起加油!
回复

使用道具 举报

您需要登录后才可以回帖 登录 | 立即注册

本版积分规则