QQ登录    

08我家网

2023兔年大吉

新人报道,装修在即,请多光照!!!

[复制链接]

77

帖子

0

原创值

0

金币

大三_装修里手

Rank: 3Rank: 3

积分
61
发表于 2010-02-24 15:00:09 | 显示全部楼层 |阅读模式
一头雾水的我,仍然硬着头皮在网上看着日记、网页和图片,在市场上看材料、看家具。 我默默的祈祷着能有一天豁然开朗,为自己装出一个最温暖、最可爱的家!    
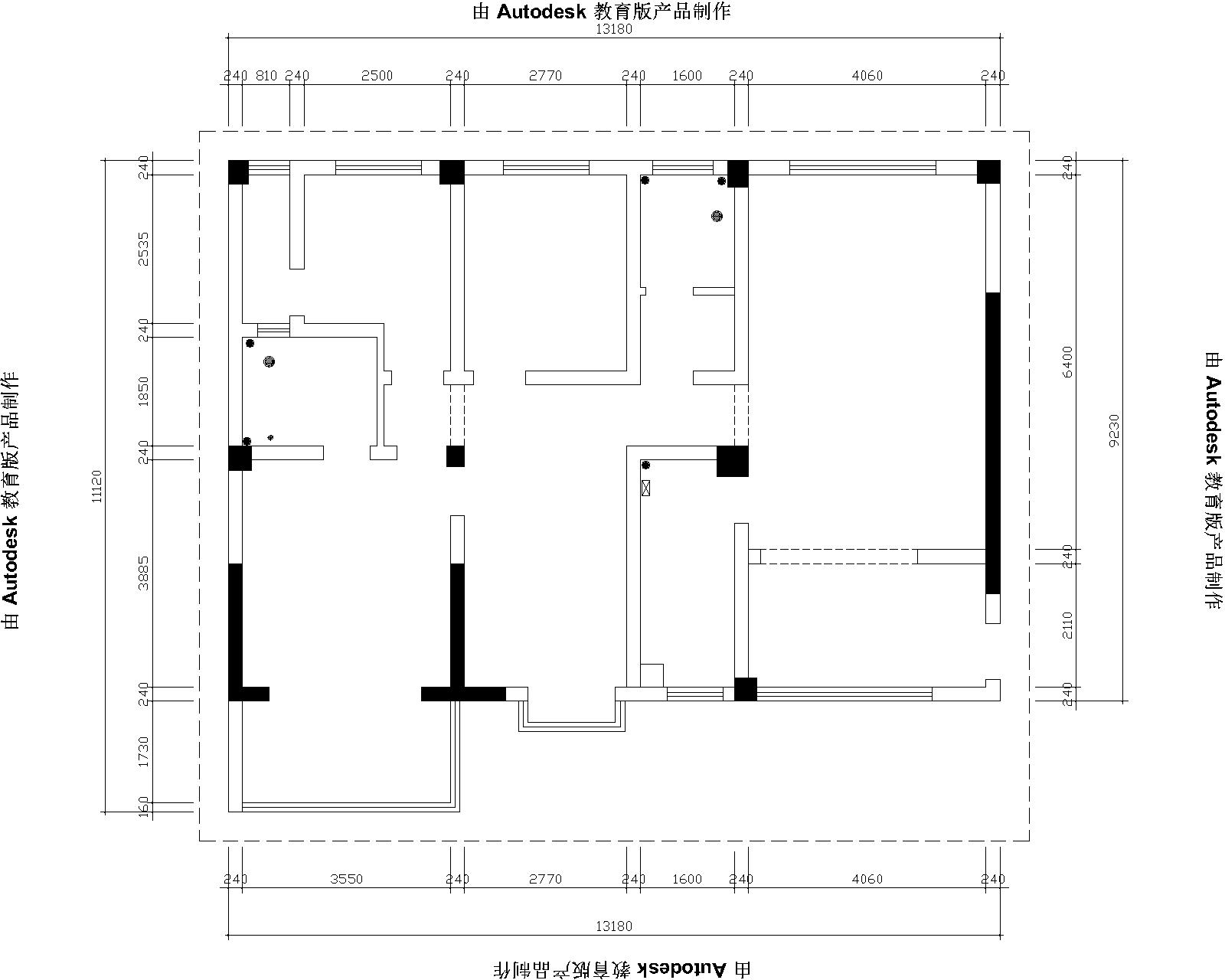
这是偶家户型图,想改成三室两厅两卫,请大家出点主意 平面图1.jpg

5854

帖子

0

原创值

1707

金币

装修大学_教授

Rank: 7Rank: 7Rank: 7

积分
5878

社区居民社区明星认证团长最爱沙发宣传大使奖特殊贡献奖

发表于 2010-02-24 19:13:28 | 显示全部楼层
欢迎,

多关注装修日记板块,里面有很多心得,要靠自己慢慢领悟

快乐团购=现场团购,有的团购是需要现场付定金,请不要盲目跟团
各种现场团购,可根据自己需要,随时关注

网络板块=非现场团购,无家不成团,抱团打天下

一起期待你的毕业照~~~
回复

使用道具 举报

161

帖子

0

原创值

1

金币

大三_装修里手

Rank: 3Rank: 3

积分
134
发表于 2010-02-28 14:05:32 | 显示全部楼层
期待你的毕业照
回复

使用道具 举报

23

帖子

0

原创值

0

金币

大一_装修新生

Rank: 1

积分
16
发表于 2010-02-28 20:04:47 | 显示全部楼层
呵呵、、、多多交流。。
回复

使用道具 举报

77

帖子

0

原创值

0

金币

大三_装修里手

Rank: 3Rank: 3

积分
61
 楼主| 发表于 2010-03-01 14:50:52 | 显示全部楼层

回 1楼(益虫) 的帖子

O(∩_∩)O谢谢版主的鼓励,我是第一次装修,什么都不懂,还希望大家多多指导!
回复

使用道具 举报

77

帖子

0

原创值

0

金币

大三_装修里手

Rank: 3Rank: 3

积分
61
 楼主| 发表于 2010-03-01 14:52:05 | 显示全部楼层

回 3楼(小盘子) 的帖子

那是一定的!
回复

使用道具 举报

77

帖子

0

原创值

0

金币

大三_装修里手

Rank: 3Rank: 3

积分
61
 楼主| 发表于 2010-03-01 15:00:19 | 显示全部楼层

回 2楼(贝璐丹迪) 的帖子

O(∩_∩)O谢谢支持!
回复

使用道具 举报

23

帖子

0

原创值

0

金币

大一_装修新生

Rank: 1

积分
16
发表于 2010-03-01 15:07:05 | 显示全部楼层
   每天来“巡逻”一下,看LZ装修进展如何。。。
回复

使用道具 举报

您需要登录后才可以回帖 登录 | 立即注册

本版积分规则