QQ登录    

08我家网

2023兔年大吉

即将完工,等待验收

[复制链接]
  • 所在城市:
  • 所在小区:星城国际
  •  
  • 装修类型:新房装修
  • 装修户型:三房
  •  
  • 装修方式:半包
  • 装修风格:现代简约
  •  
  • 装修预算:10万—20万
  • 开工时间:2010-01-18
  • 前期设计
  • 主体拆装
  • 水电
  • 泥工
  • 木工
  • 油漆
  • 成品安装
  • 软装配饰
  • 毕业
已装修历时5705

1774

帖子

0

原创值

4171

金币

装修大学_研究生

Rank: 5Rank: 5

积分
1248

社区居民忠实会员社区明星

发表于 2010-03-07 20:10:01 | 显示全部楼层 |阅读模式
   下水已经很久了。对我来说下水其实是很迷茫,很糊涂的。就因为朋友说要通货膨胀了,还不装怕要贵一两万哦。那就装吧!没米米怎么装?借呗!就这样,设计,出图,预算,进场.........
    首先介绍一下我们的巢吧!
    楼盘名称:星城国际
    户型:三室两厅两卫
    装修风格:现代简约
    预计费用:硬装10W
    装修公司:点石家装
    设计师:王秀珍
    预算师:王海燕
    项目经理:胡海洋
    水电:胡师傅
    泥工:彭师傅
    木工:胡师傅(胡师傅多才多艺,水电可以做,木工活也不赖,很喜欢K歌,经常听他一个要在那哼)
    开工时间:2010.1.18

210

帖子

0

原创值

2

金币

大三_装修里手

Rank: 3Rank: 3

积分
179
发表于 2010-03-07 20:11:39 | 显示全部楼层
开头了哦 加油写 大力支持
回复

使用道具 举报

90

帖子

0

原创值

5

金币

大三_装修里手

测试一下测试一下

Rank: 3Rank: 3

积分
83
发表于 2010-03-07 20:15:40 | 显示全部楼层
春节停工了哦
加油!
回复

使用道具 举报

1774

帖子

0

原创值

4171

金币

装修大学_研究生

Rank: 5Rank: 5

积分
1248

社区居民忠实会员社区明星

 楼主| 发表于 2010-03-07 20:20:47 | 显示全部楼层

回 2楼(面条) 的帖子

是的。春节从24停工,正月十二就通知开工了。我自己一直到十五才去看。等我去的时候衣柜都做好了。
回复

使用道具 举报

1774

帖子

0

原创值

4171

金币

装修大学_研究生

Rank: 5Rank: 5

积分
1248

社区居民忠实会员社区明星

 楼主| 发表于 2010-03-07 20:21:08 | 显示全部楼层

回 1楼(么么茶1001) 的帖子

谢谢捧场哦
回复

使用道具 举报

1774

帖子

0

原创值

4171

金币

装修大学_研究生

Rank: 5Rank: 5

积分
1248

社区居民忠实会员社区明星

 楼主| 发表于 2010-03-07 20:21:33 | 显示全部楼层
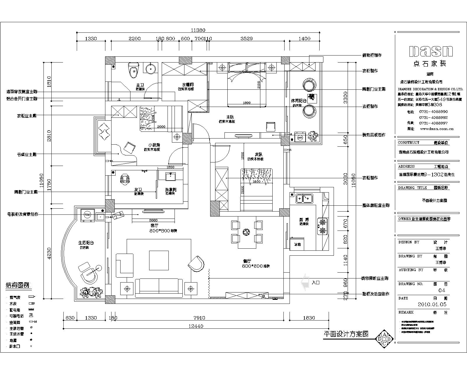
先上平面图吧
星城国际樱花苑9-1302.jpg
回复

使用道具 举报

1774

帖子

0

原创值

4171

金币

装修大学_研究生

Rank: 5Rank: 5

积分
1248

社区居民忠实会员社区明星

 楼主| 发表于 2010-03-07 20:25:46 | 显示全部楼层
前面也说了,下水时是很糊涂的。完全没有概念,现在明白了一点皮毛。对于设计,也没有多少了解。现在一看主卧的衣帽间让空间小了很多,而且一推门就是衣帽间的柜背板,让人感觉很不爽。我一度想改,拆了。但是项目经理和设计师都告诉我,已经做好了,改不了了。
回复

使用道具 举报

1774

帖子

0

原创值

4171

金币

装修大学_研究生

Rank: 5Rank: 5

积分
1248

社区居民忠实会员社区明星

 楼主| 发表于 2010-03-07 21:00:29 | 显示全部楼层
水电验收前,特意去照了几张照片。因为自己实在不懂,还特意请了搞水电的同学帮忙验收。很郁闷,前面怎么没有想起他呢?水电包给他多好啊。

这个水管子从主卧穿到卫生间的时候破了。师傅说没事,监理来的时候我要求换了。

这个水管子从主卧穿到卫生间的时候破了。师傅说没事,监理来的时候我要求换了。
IMG_0651.JPG
IMG_0650.JPG
IMG_0648.JPG
IMG_0644.JPG
IMG_0643.JPG
IMG_0639.JPG
IMG_0637.JPG
IMG_0636.JPG
IMG_0635.JPG
IMG_0634.JPG
IMG_0633.JPG
IMG_0632.JPG
IMG_0632.JPG
IMG_0631.JPG
IMG_0629.JPG
IMG_0628.JPG
IMG_0625.JPG
回复

使用道具 举报

1774

帖子

0

原创值

4171

金币

装修大学_研究生

Rank: 5Rank: 5

积分
1248

社区居民忠实会员社区明星

 楼主| 发表于 2010-03-07 21:02:17 | 显示全部楼层
水电之后就是防水。
IMG_0659.JPG
IMG_0667.JPG
回复

使用道具 举报

1774

帖子

0

原创值

4171

金币

装修大学_研究生

Rank: 5Rank: 5

积分
1248

社区居民忠实会员社区明星

 楼主| 发表于 2010-03-07 21:05:27 | 显示全部楼层
过完年去看。衣柜都已经做好了。
IMG_0656.JPG
IMG_0658.JPG
IMG_0664.JPG
IMG_0666.JPG
IMG_0668.JPG
IMG_0669.JPG

推开主卧门所看到的。郁闷啊,苍天啊。

推开主卧门所看到的。郁闷啊,苍天啊。
回复

使用道具 举报

您需要登录后才可以回帖 登录 | 立即注册

本版积分规则