QQ登录    

08我家网

2023兔年大吉

◆◇ 哈蜊油的流水账 ◇◆流水一样花钱,流水一样记账~~~是时候say goodbye了

[复制链接]

1407

帖子

0

原创值

193

金币

装修大学_研究生

Rank: 5Rank: 5

积分
1275

社区居民

 楼主| 发表于 2010-07-26 21:05:24 | 显示全部楼层
我破碎的浴缸梦。。。。。。。。。。。。。。。。


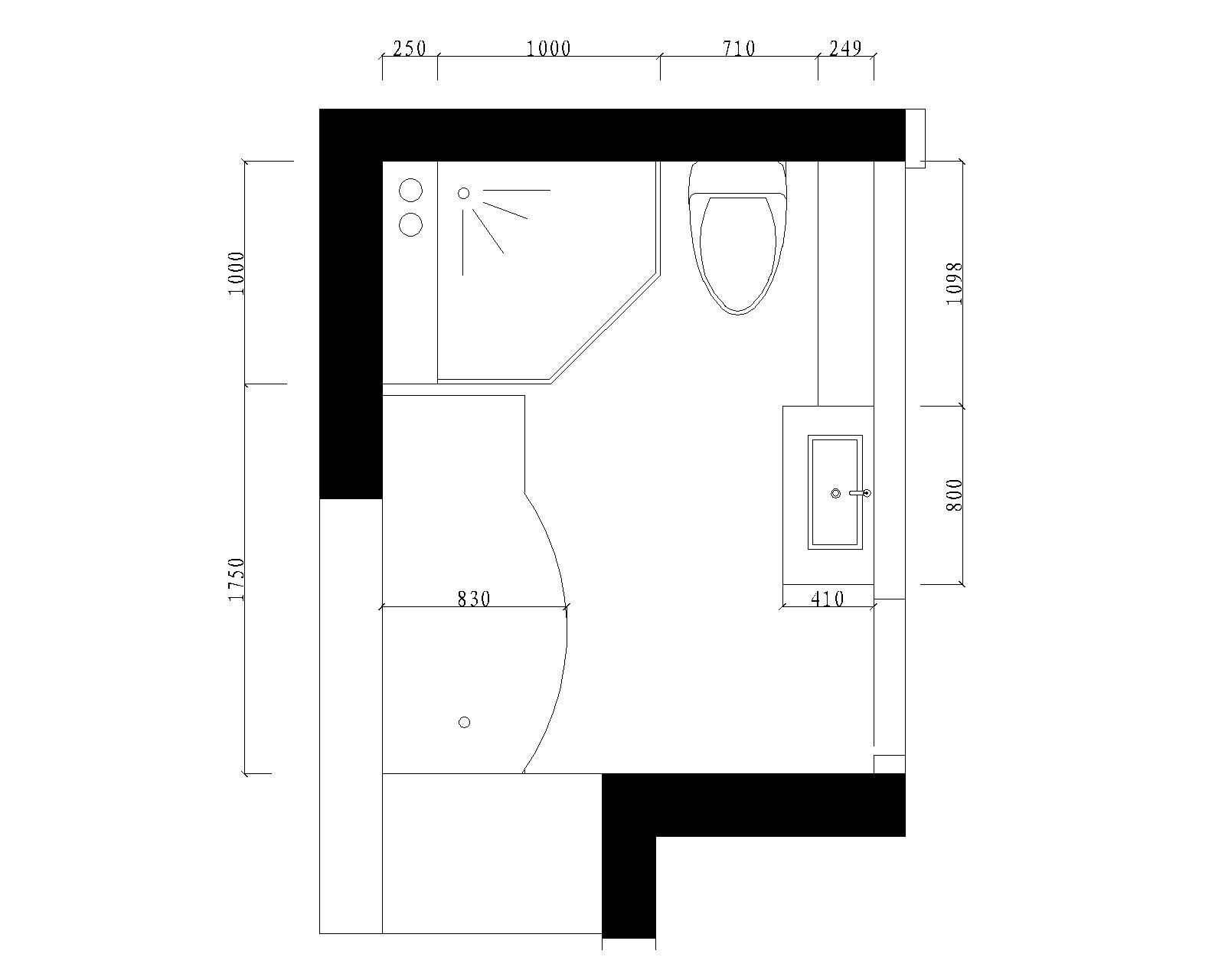
一直想在主卫安装一个浴缸,又不想站在浴缸里洗淋浴。。。。but,俺的卫生间,要同时摆下马桶、淋浴间、座便器和浴缸,貌似是一个不可能的任务。

昨天去工地,工人师傅们还没有回来。跟项目经理交流了一下,粗略地估算,如果把座便器放在最右边的角上的话,勉勉强强还是摆下一个1.5米的浴缸的。为了加快确定尺寸,我立刻去了WJL,在几个品种中看了很久。比如惠达、阿波罗、法恩莎、浪琼、金牌等,最后在金牌看中了一个1.5米的特价浴缸,2380元。不贵啊,下定。同时又买了一个特价的拖把池428元。

金牌 RF1208B浴缸.jpg


回家一细想,还是觉得比较挤,可能如厕和洗浴都不是很舒服,后悔一时的冲动。家里电脑没有CAD,无法精确地确定尺寸。在qq上呼唤设计师,等到23点,跟设计师沟通了半天,请他对几个洁具进行了摆放,结论是:比较挤,可能使用起来不是很舒适。

早晨起来,觉得昨天也许过于冲动了。不过,一大早就去退货,商家可能会不高兴的。so,先去工地,喊项目经理过来,再仔细核对了尺寸。

回到办公室,自己又拿cad,进行了模拟摆放。主要是主卫的下水管和进水管比较讨厌。又不好移位,要包管的话,占去了很多空间。

打电话给设计师,他们装饰公司一般都是休星期一的。没办法,想请他过来,商量一下。

跟设计师约了,下午与项目经理等一起到现场。商量了半天,讨论了几个摆放的方案。唉,还是不怎么好。罢罢罢。。。算大,我还是去退掉得了。

快下班的时候跑到WJL,金牌很爽快地给俺退了单。

唉,俺破碎的浴缸梦啊。呵呵

卫生间摆放0.jpg
回复

使用道具 举报

1407

帖子

0

原创值

193

金币

装修大学_研究生

Rank: 5Rank: 5

积分
1275

社区居民

 楼主| 发表于 2010-07-26 21:07:29 | 显示全部楼层
工人们陆陆续续回来。我们家的电工回来了。泥工也来了,今天下午在拆那个防火门,准备安装新买的防盗门。明后天水电基本就要搞完,进行验收。

工地进展会加快的。
回复

使用道具 举报

752

帖子

0

原创值

87

金币

装修大学_研究生

Rank: 5Rank: 5

积分
676

社区居民

发表于 2010-07-26 21:07:46 | 显示全部楼层
哈达好专业,还学习CAD
小资产阶级情调要取缔
回复

使用道具 举报

1407

帖子

0

原创值

193

金币

装修大学_研究生

Rank: 5Rank: 5

积分
1275

社区居民

 楼主| 发表于 2010-07-26 21:09:14 | 显示全部楼层
学习CAD?俺使用CAD都好几十年了。不过最近没怎么用,最近用SolidWorks。呵呵
回复

使用道具 举报

752

帖子

0

原创值

87

金币

装修大学_研究生

Rank: 5Rank: 5

积分
676

社区居民

发表于 2010-07-26 21:10:38 | 显示全部楼层
我都不晓得恩南瓜是搞么子滴大,我印象你是个文人来
回复

使用道具 举报

1407

帖子

0

原创值

193

金币

装修大学_研究生

Rank: 5Rank: 5

积分
1275

社区居民

 楼主| 发表于 2010-07-26 21:14:26 | 显示全部楼层
总而言之,俺就是打工的噻。呵呵

回复

使用道具 举报

647

帖子

0

原创值

1271

金币

装修大学_研究生

Rank: 5Rank: 5

积分
505

社区居民

发表于 2010-07-26 21:29:51 | 显示全部楼层
哎。。

家里只有一个灰常灰常小的卫生间,从来就没有考虑过浴缸的人飘过。。。
回复

使用道具 举报

752

帖子

0

原创值

87

金币

装修大学_研究生

Rank: 5Rank: 5

积分
676

社区居民

发表于 2010-07-26 21:33:25 | 显示全部楼层
90%搞了浴缸最后不是放鱼就是放杂物落灰,哈达不必悲哀
回复

使用道具 举报

1407

帖子

0

原创值

193

金币

装修大学_研究生

Rank: 5Rank: 5

积分
1275

社区居民

 楼主| 发表于 2010-07-26 21:47:22 | 显示全部楼层
我准备带孙子,给他洗澡。。。:)
回复

使用道具 举报

3562

帖子

0

原创值

177

金币

装修大学_教授

团购有风险,参团须谨慎。参团自

Rank: 7Rank: 7Rank: 7

积分
3411

社区明星

发表于 2010-07-26 21:51:55 | 显示全部楼层
我如果有下套房子,我也要有浴缸,淋浴房,最好卫生间有我现在的主卧那么大,最好还可以放个木桶。。。。。。
一边幻想,一边飘过
回复

使用道具 举报

您需要登录后才可以回帖 登录 | 立即注册

本版积分规则