QQ登录    

08我家网

2023兔年大吉

[装修交流]最难户型我来搞活动入围户型公布,欢迎各位设计师前来揭榜领赏!(加大奖励力度,获奖设计师展示自己作品集的专贴加亮置顶时间延长为30天!)

[复制链接]

7878

帖子

0

原创值

3159

金币

荣誉版主

积分
7785

社区居民社区明星终身成就奖宣传大使奖优秀斑竹奖原创先锋奖忠实会员最爱沙发社区劳模原创达人

发表于 2013-05-13 08:53:02 | 显示全部楼层 |阅读模式
       通过一周的报名征集,很多网友都积极贴出了自家坑爹的户型图,我们悬赏的户型也从最开始的一户升级为三户。根据户型图实际情况以及业主对户型设计的要求陈述详尽情况,我们先确定了入围悬赏区的三户户型图,欢迎各位设计师任选其中一户或者几户,针对业主提出的设计需求,妙手将这些坑爹的户型化腐朽为神奇,彰显你高超的设计水平。有能力的你,赶紧来揭榜领赏吧!


设计师揭榜流程:在装修交流版块发布主题帖
1、主题帖标题统一如下:【最难户型我来搞】n号户型我之见(n为悬赏户型图编号,同时针对多个户型图进行解答的,n可多选)
2、主题帖格式统一如下:
设计平面图:
设计说明:

温馨提示:任何设计师或者公司禁止在帖子中出现任何形式的联系方式!业主需要同参赛设计师联系的,可以通过站内消息的形式主动联系设计师。

揭榜奖励:
      设计师在装修交流版块开专帖贴出自己的精品作品图片,充分展示其设计功底,同时供广大业主提出各种设计问题,设计师及时解答各位网友的各种问题。该专贴将在装修交流版块加亮、置顶30天。


7878

帖子

0

原创值

3159

金币

荣誉版主

积分
7785

社区居民社区明星终身成就奖宣传大使奖优秀斑竹奖原创先锋奖忠实会员最爱沙发社区劳模原创达人

 楼主| 发表于 2013-05-13 08:53:35 | 显示全部楼层
悬赏户型图1号

业主:小咩
户型图:






在这张图基础上,挖出房屋框架。

其中褐色的圆斑是下水管与烟道,蓝色的是煤气,绿色的是排污孔,红色的是地漏(入户那儿还有个地漏没标记)


业主需求:


房屋基本情况

整栋房屋30来层,位于中间楼层,套内估计120左右,内空层高2.73-2.77,客厅朝北,主卧朝南。

未来入住情况:

夫妻俩,宝宝,2位老人家,有老有小房间安排很头大。

设计要求

1、合理配置卧房安排,处理好老人与小孩的健康需求;

2、房屋格局可变化之处可能在客厅跟主卧,希望能更合理利用空间,流畅自然;

3、基本希望,安全环保>实用功能>美观造型;

4、希望不要太花哨

觉得棘手的一些问题:

问题一:采光

图上看算是南北通透,但实际为板塔结合结构,南边被2边塔型楼部分挡住不少,主卧与另一间南向卧室采光还倒需要北面支持;

问题二:入户门

入户门朝内开,其实外面是个走道蛮空旷的,改还是不改?(站在入户花园可跟对面主卧阳台的朋友SAY HELLO哦,其实算是个小阳台);

问题三:餐厅

在过道上餐桌毫无安全感,何去何从?相信这样的情况朋友们都经常碰到;

问题四:客厅

这个纵向的长度真让人纠结,隔出来利用不知隔哪头好,尤其客厅阳台那么霸气长存的超大推拉门;不隔吧,6米的长该得要多大的电视。。。

问题五:走道

这个问题不容易发现,在房屋中间,其实走道贯穿了整个房间的,当主卧门打开,在客厅的墙边这一眼看过去,这个景深啊要不要这么给力啊。。。

问题六:下水

这个问题要拆成好几个部分。。。

a、这洗衣机该放哪儿呢?客厅阳台无地漏,主卧阳台地漏一半安墙里了。。次卫也无地漏,主卫太小,总不可能扔到入户花园吧。。。

b、次卫的下水管道,华丽丽的横在窗边,这个。。。

C、有老人有小孩,次卫想要装个马桶,但是吧,这样洗澡就是个问题了,水木有地方去啊。

D、主卫太小,里面下水位置要找个实景图来看看才好说话。

问题七:主卧

其实主卧面积不小的,可是吧,这个门啊,阳台什么的,让这个床不知道安哪儿合适呀,另外一间房要不要套进来也是个问题。


嗯,大概有这么些问题,怎么处理比较好呢?希望得到大家支招,尤其是设计大师们。
回复

使用道具 举报

7878

帖子

0

原创值

3159

金币

荣誉版主

积分
7785

社区居民社区明星终身成就奖宣传大使奖优秀斑竹奖原创先锋奖忠实会员最爱沙发社区劳模原创达人

 楼主| 发表于 2013-05-13 08:53:44 | 显示全部楼层
悬赏户型图2号


业主:米粒儿
户型图:








业主需求:


图1为开发商提供的框架图,图2是实际测量图。房子建筑面积180平方,在10层楼的6楼,看着房子大,但实际一点不好用。家里现在常住人口是4人,一家3口加一个保姆,孩子还小,才9个月大,所以父母有时候会过来小住,有时是把小孩放父母家。
现在的问题是:
1、几间房如何安排?
   我俩是电脑一族,书房是肯定要的,而且很重要。原打算卧室2作为小孩房,优点是够大,缺点是离主卧有点远;如果将阳台2打通,书房做小孩房,总觉得还是不够大。
2、需要一个保姆房
   原打算将卧室1分出一小间做保姆房,如何分?或者保姆房安排在什么位置?
3、书房的门开在什么地方?
4、冰箱放在什么位置?
   家里面积大,但厨房的使用面积感觉好小,本打算用双门冰箱,现在估计不行,冰箱摆在什么位置?
5、入户过道长
   入户花园小,入户过道长。让人一进门感觉好小气,视野一点都不开阔。本来想做开发式厨房的,进门一线吧台那样,可以看到整个厨房和客厅,但还是担心油烟问题。
6、衣帽间和主卫
   每次进主卫都要经过衣帽间,这是什么设计?哎,感觉从主卧上厕所,要经过无数张门~~~
7、两个卫生间与厨房的距离都很远
   这个直接导致的就是能源的浪费,是装电热水器还是燃气热水器?估计大部分都会安排一电一气,有没更好的法子?
8、地暖
   同样面临装水暖还是电暖的问题。都说我家这么大面积适合装水暖,但水暖的锅炉装哪?按我家使用情况,虽然孩子现在小,但2年后就会去上幼儿园,我们又是上班族,在家的时间并不多,孩子大了也不打算请阿姨啦,所以我又有点倾向电地暖。。。

   

   最后,俺家是户型很多斜角,想做点圆形或者弧线冲淡斜角的感觉,不知能否实现。
   

   各种纠结,请有经验的大虾们帮帮忙,帮我搞定这奇怪又坑爹的户型。。。
回复

使用道具 举报

7878

帖子

0

原创值

3159

金币

荣誉版主

积分
7785

社区居民社区明星终身成就奖宣传大使奖优秀斑竹奖原创先锋奖忠实会员最爱沙发社区劳模原创达人

 楼主| 发表于 2013-05-13 08:53:57 | 显示全部楼层
悬赏户型图3号


业主:lele123


户型图:










业主需求:


第一幅图为实际图,尺寸基本差不多,第二幅图为楼书宣传图,差别在生活阳台的长度

实际情况是楼书上厨房安灶的地方侧面就是煤气管和煤气表,次卫进门左手边的墙上有两根下水管

因还有一个月的时间才能交房,物业处不能提供图纸,所以不能确定承重墙的标注是否正确(厨房在生活阳台的那个拐角应该是承重墙,第一幅图标注有误),现有的尺寸图是同户型的邻居量的,自己测量了一些内空尺寸,基本上类似


房子建面158.96,但是处处透出小气。目前非物业提供的图纸来看到处都是承重墙

缺陷如下:

1、入户门小,进口处小,鞋柜如何安放

2、餐厅处也小,换鞋区和餐厅区可否能有分隔

3、主卧也小,布局难以符合常规。主卧南墙有个窗户,窗户宽度为1.14米(不是图纸上的70厘米),有衣帽间,但觉得主卧收纳空间严重不够。

一些需求:

1、家中常住5口人,两老两中一小。

2、功能分布:北边次卧室做老人房,老人房需要电视,飘窗可打掉,考虑有个看书写字的地方;北边次卧旁边小房间作为书房兼客房,不要榻榻米;主卧不需要电视,飘窗可打掉,考虑有个看书写字的地方;南向小房间做小孩房,要有卧室区域和学习区域。主卫不要浴缸,主卫次卫均考虑安放坐便器

3、风格考虑实用易打理为主,简约风格
回复

使用道具 举报

267

帖子

0

原创值

82

金币

大四_装修达人

Rank: 4

积分
235

社区居民忠实会员

发表于 2013-05-13 11:10:07 | 显示全部楼层
哈哈,偶的户型上榜啦
嗯,真不知道是高兴还是悲催,呵呵。
待会我处理一下,搞一张清楚点的图纸上来,希望各位大师多多指导
回复

使用道具 举报

506

帖子

0

原创值

387

金币

大四_装修达人

Rank: 4

积分
467

社区居民终身成就奖忠实会员社区劳模最爱沙发

发表于 2013-05-13 13:51:38 | 显示全部楼层
  感谢~~~
期待得到路过的大师指点,有需要可以再补充实景图以及详细尺寸说明。
回复

使用道具 举报

1万

帖子

0

原创值

9609

金币

论坛元老

掰子姐

Rank: 15Rank: 15Rank: 15Rank: 15Rank: 15

积分
11275

吃货社区居民社区明星忠实会员最爱沙发新人进步奖幽默大师奖贴图大师奖原创先锋奖金点子奖特殊贡献奖宣传大使奖优秀斑竹奖终身成就奖灌水天才奖社区劳模原创达人

发表于 2013-05-14 11:54:36 | 显示全部楼层
那个平行四边行的户型,感觉很奇葩呀~期待高手出现~
回复

使用道具 举报

1373

帖子

0

原创值

1633

金币

装修大学_研究生

做人,品为先,才为次。

Rank: 5Rank: 5

积分
1226

社区居民社区明星新人进步奖忠实会员社区劳模最爱沙发

发表于 2013-05-14 13:03:45 | 显示全部楼层
   这个活动好啊。支持一个
回复

使用道具 举报

267

帖子

0

原创值

82

金币

大四_装修达人

Rank: 4

积分
235

社区居民忠实会员

发表于 2013-05-14 23:51:54 | 显示全部楼层

回 叽歪 的帖子

叽歪:
那个平行四边行的户型,感觉很奇葩呀~期待高手出现~  
吼吼,谢谢大版版的支持
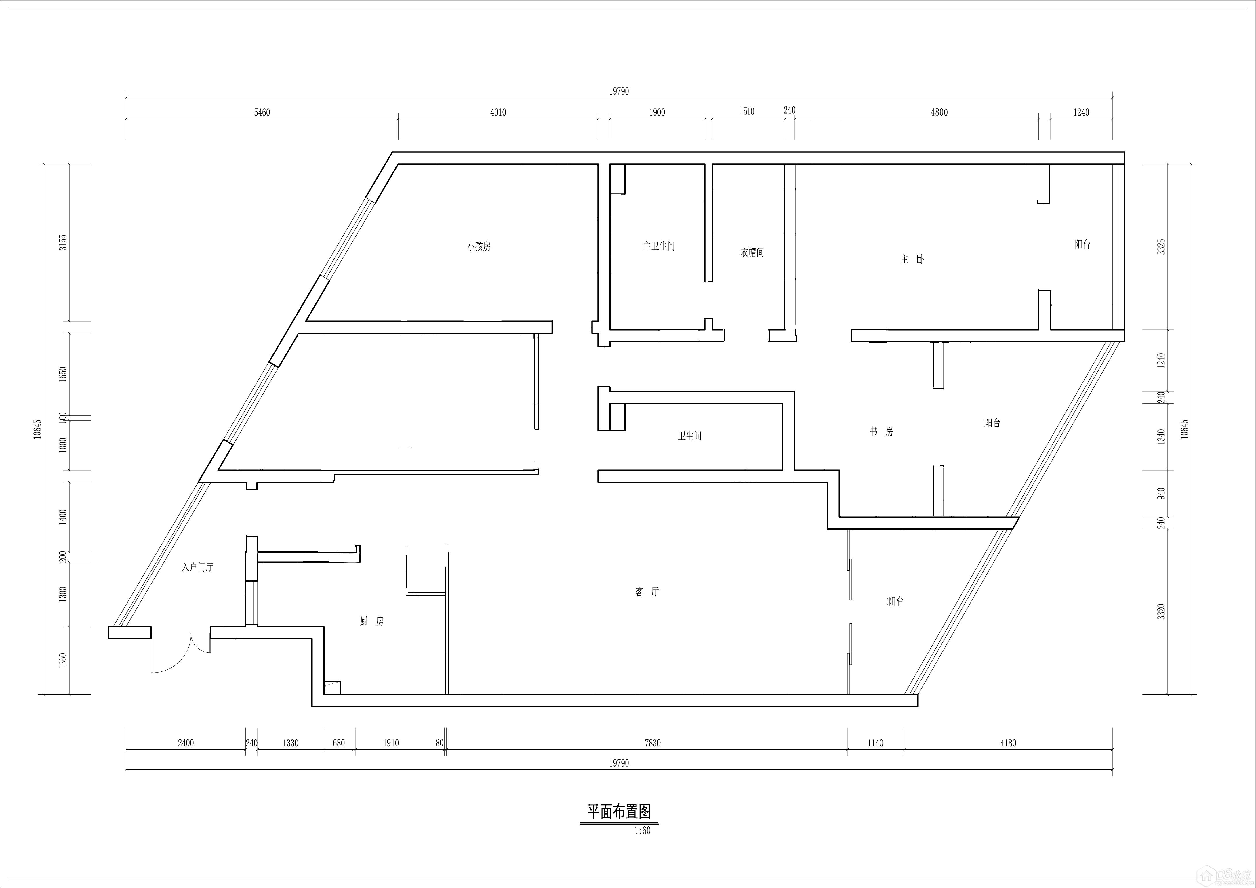
再上张清晰点的测量图纸吧

测量图

测量图
回复

使用道具 举报

1753

帖子

0

原创值

504

金币

装修大学_博士生

Rank: 6Rank: 6

积分
1586

社区居民忠实会员社区劳模最爱沙发社区明星

发表于 2013-05-15 09:26:11 | 显示全部楼层

回 米粒儿 的帖子

米粒儿:吼吼,谢谢大版版的支持
再上张清晰点的测量图纸吧
 (2013-05-14 23:51) 
好好奇这个是哪个小区哦

这个户型真的需要设计师的出现了
回复

使用道具 举报

您需要登录后才可以回帖 登录 | 立即注册

本版积分规则